
|
住慣城市的人就像回老家感受感受鄉村美景,現在如果你在農村還有塊宅基地那簡直讓人羨慕不已啊。不要在想著建傳統歐式的啦,現在流行的可是現代風,再加上周邊自然環境的點綴,那才是真正的千金不換呢。小編今天就給大家帶來了四款農村現代三層別墅,每一個細節都是恰到好處的美,這樣的房子蓋在農村那肯定吸引無數目光啊。 款式一:現代三層別墅設計圖紙,造價25萬左右圖紙介紹:本戶型現代風格,時尚前衛,簡約大氣,住上去非常舒適;外形美觀,關鍵是它的室內布局非常的實用,深受年輕朋友的喜愛。占地不大,造價經濟,難得的好戶型。
占地面積:11.02m*9.67m,100平方米左右; 建筑層高:三層; 建筑高度:8.9米(含屋頂); 設計功能: 一層戶型:玄關、客廳、花池、餐廳、廚房、臥室、衛生間; 二層戶型:起居室、書房、臥室x2、衛生間、陽臺; 三層戶型:娛樂廳、茶座、露臺;
款式二:現代三層農村房屋設計圖,帶全套CAD建筑圖圖紙介紹:本戶型三層都有落地窗,一層客廳落地窗極大增強采光,二三層落地窗的設計,讓戶主早上醒來就能看到陽光。落地窗整體看上去顯得別墅寬敞。
占地面積:8.8m*10.8m,95平方米; 建筑層高:三層; 建筑高度:12.7米(含屋頂); 設計功能: 一層戶型:廚房,餐廳,公衛,客廳,主臥; 二層戶型:次臥X2,次衛X2,主臥(帶主衛),露臺; 三層戶型:次臥(帶次衛),主臥(帶主衛),儲藏室,露臺;
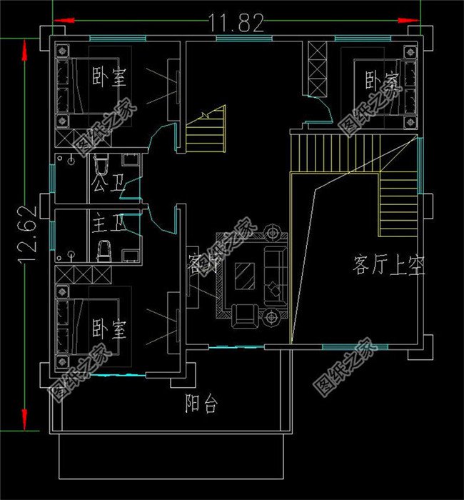
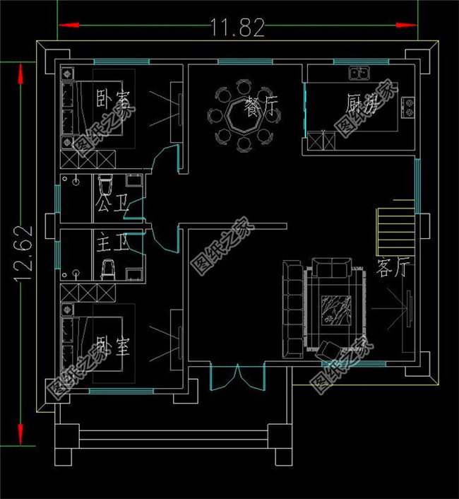
款式三:讓人百看不厭的三層平頂現代風別墅,簡約時尚圖紙介紹:這款戶型簡直讓人百看不厭,外觀布局非常驚艷。整體簡約時尚,充滿現代氣息,非常符合年輕人的審美,讓人一眼就愛上。
占地面積:11.82m*12.62m,125.142平方米左右; 建筑層高:三層; 建筑高度:11.2米(含屋頂); 設計功能: 一層戶型:客廳、餐廳、廚房、臥室(帶衛生間)、臥室、衛生間; 二層戶型:客廳上空、小客廳、臥室(帶衛生間)、臥室x2、衛生間、陽臺; 三層戶型:臥室x2、衛生間、露臺、涼亭(帶頂);
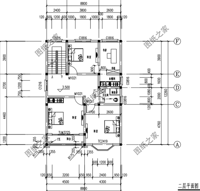
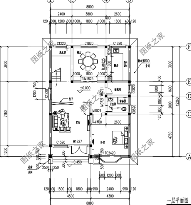
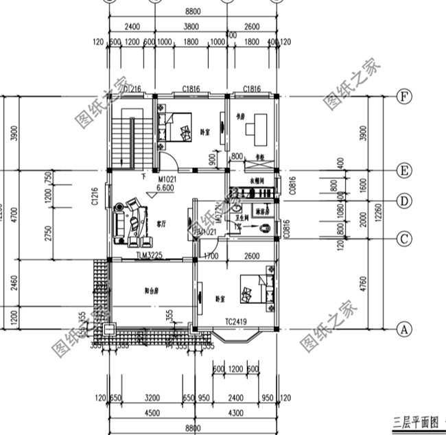
款式五:新農村現代別墅,簡約時尚,占地100平米左右圖紙介紹:本戶型外觀簡約大方,遠遠望去整齊有序,給人一種非常舒適的感覺;室內布局合理,功能齊全,滿足現代人們的生活需求;三層還配有陽光房。
占地面積:8.8m*12.26m,107平方米; 建筑層高:二層; 建筑高度:12.16米(含屋頂); 設計功能: 一層戶型:客廳,臥室(帶衛生間),儲藏間,洗衣房,廚房,餐廳; 二層戶型:臥室X2,陽臺,衛生間,主臥(帶書房和衣帽間); 三層戶型:陽臺房,客廳,臥室,衛生間,主臥(帶書房和衣帽間);
這幾款現代別墅沒有歐式風格那樣豪華,但是簡約時尚的美也讓人忍不住愛上,快快收藏圖紙吧。
圖紙之家-專注農村別墅/自建房設計18年,集合國內200余位經驗豐富的設計師,被評為口碑最好的農村建筑設計公司! |

210平米新農村自建二層施工圖紙,預留電梯位,美觀大氣舒適實用
占地:208.5平方米
160平方米三層帶大露臺的復式別墅設計圖紙
占地:155平方米
農村2開間三層經濟別墅設計圖,9.6米面寬,實用布局
占地:127.68平方米
300平四層別墅房屋設計圖,含外觀效果圖,大面積、多臥室
占地:261平方米
四開間二層別墅設計圖,造型精美經典舒適,火爆全村的戶型
占地:150.882平方米
農村簡易二層樓設計圖,外觀簡單漂亮,經典時尚
占地:140平方米
新中式帶露臺30萬左右農村三層別墅,客廳中空
占地:110平方米
帶柴火房農村一層自建房設計圖,戶型布局接地氣
占地:126.29平方米
時尚一層別墅圖,一層這樣蓋房最漂亮
占地:160平方米
7字型一層半農村別墅設計圖,美觀舒適,買了別墅的都會羨慕你
占地:229.14平方米
鄉下一層門面二層別墅設計圖紙,帶門面的自建房方案
占地:198.4平方米
時尚大氣的三層現代風別墅設計圖,露臺+挑空客廳
占地:321平方米
實用型二層別墅設計方案,占地120平米簡單大方最耐看
占地:120平方米
小型四合院二層別墅設計圖方案,對稱設計,頂層大露臺
占地:114平方米
一層農村三合院別墅設計方案圖,秀氣優美,大氣又實用
占地:191.18平方米
高端三層獨棟歐式別墅效果圖,帶大衛生間,CAD全套施工設計圖
占地:158平方米
農村中式二層4開間別墅圖紙設計方案圖,帶車庫戶型
占地:198平方米
15萬左右新中式二層別墅設計圖平面圖,占地110平米左右
占地:110平方米
復式別墅農村四層霸氣豪宅設計圖紙,建好你就是村里第一
占地:136.356平方米
五十萬二層半鄉村別墅,客廳挑空設計,占地200平米左右
占地:200平方米
推薦:10套新農村自建房設計圖,2026年最新設計
閱讀次數:4825737次
100套鄉村別墅圖片大全,2026年最新設計
閱讀次數:2492203次
6款農村蓋一層平房的設計圖,10萬元就能建起來
閱讀次數:1852637次
這11個一層農村自建房別墅火爆了朋友圈!我最喜歡戶型十!你呢
閱讀次數:750268次
農村6萬元建一層小別墅圖,你敢相信嗎
閱讀次數:567686次
農村5萬塊就能自建房,6套普通房子設計圖分享,你沒看錯!
閱讀次數:419410次
8套農村漂亮三間平房圖片,非常適合在農村修建!
閱讀次數:411197次
農村自建房化糞池怎么做?附方案及施工過程
閱讀次數:391783次
農村一層三間平房設計圖,告別土氣養老房,讓人忍不住點贊
閱讀次數:350581次
新農村二層樓房圖片造價12萬,挑一套回家建房吧!
閱讀次數:349126次
