
|
時光匆匆,白駒過隙,人生幾十年不過眨眼的功夫,風風雨雨都走過,到老了也得瀟瀟灑灑的度過。那起碼得住得好哦,時間不等人,機會同樣不等人。有地有經濟的,此時不動手更待何時,先找一塊地基蓋上美美地別墅吧。下面這套新款農村三層樓房圖片是圖紙之家為數不多的豪華戶型,一起來欣賞。
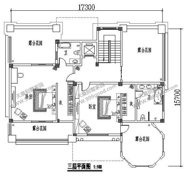
這套戶型的脫引而出的幾點:其一,占地面積和建筑面積足夠大,開間17.3米,進深15.7米;其二,簡約大方的外立面,低調的配色,只需稍稍雕花點綴便能彰顯磅礴的氣勢。
其三,建筑語言豐富,造型凹凸有致,建筑元素先進時尚。大量的采光窗是適合居住的條件之一。
平面圖:正因為建筑面積過大,居室內的通風和采光需求自然要加大。一層的南北雙入口巧妙解決問題,臥室最大限度的安排在陽光充足的一面。
二層兩大露臺花園給您最大的居室感受,閑暇時光捧一杯茶帶上,帶上老花鏡,拿一本書感受陽光灑在身上的愜意。
三層也設有4個露臺,可以根據實際需要改建成陽光房或者書房或健身房都是不錯的選擇哦。
圖紙之家-專注農村別墅/自建房設計18年,集合國內200余位經驗豐富的設計師,被評為口碑最好的農村建筑設計公司! |

最好看的農村三層樓房設計圖,占地113平米,小平米大格局
占地:110平方米
20萬左右歐式二層小別墅設計圖,100平米和130兩個戶型
占地:多種戶型
小戶型三層現代風別墅設計圖,可別再說農村不適合現代風了
占地:92.34平方米
帶地下室KTV三層農村自建別墅設計圖,12米乘12.5米
占地:131.7平方米
130平氣派美觀的二層別墅房屋設計圖,含效果圖
占地:130平方米
150平方米二層別墅設計及效果圖展示下載,17X10米
占地:150平方米
200平方米農村二層中式四合院設計圖,含外觀圖片
占地:200平方米
農村18萬元二層小樓圖紙,漂亮實用的農村二層樓房設計圖
占地:140平方米
面寬12米簡歐三層農村別墅設計圖,低調又奢華鄉村別墅
占地:132.64平方米
120平方米農村經典二層房屋設計圖紙,造型精致好看
占地:121平方米
新中式二層農村住宅設計圖,戶型方正,主體造價21萬
占地:135.81平方米
新農村三層自建樓房設計圖,帶大露臺,外觀大氣
占地:136平方米
三層帶車庫農村別墅設計圖紙(含外觀效果圖)
占地:147.7平方米
地中海風格二層別墅設計圖及效果圖,外觀有格調
占地:125平方米
農村一層四間平房設計圖方案,含外觀圖片,預算10萬
占地:190平方米
180平方米新農村三層別墅設計圖紙,效果圖+全套cad施工圖
占地:180平方米
帶車庫現代三層房屋別墅設計圖,占地110平米左右,功能齊全
占地:110平米
經典農村二層小別墅設計圖紙帶露臺(含外觀效果圖)
占地:110平方米
30萬預算三層別墅設計圖紙及效果圖,新農村自建推薦
占地:110平方米
130平方米新農村三層房屋設計圖紙,外觀簡單大方
占地:130平方米
推薦:10套新農村自建房設計圖,2026年最新設計
閱讀次數:4825737次
100套鄉村別墅圖片大全,2026年最新設計
閱讀次數:2492203次
6款農村蓋一層平房的設計圖,10萬元就能建起來
閱讀次數:1852637次
這11個一層農村自建房別墅火爆了朋友圈!我最喜歡戶型十!你呢
閱讀次數:750268次
農村6萬元建一層小別墅圖,你敢相信嗎
閱讀次數:567686次
農村5萬塊就能自建房,6套普通房子設計圖分享,你沒看錯!
閱讀次數:419410次
8套農村漂亮三間平房圖片,非常適合在農村修建!
閱讀次數:411197次
農村自建房化糞池怎么做?附方案及施工過程
閱讀次數:391783次
農村一層三間平房設計圖,告別土氣養老房,讓人忍不住點贊
閱讀次數:350581次
新農村二層樓房圖片造價12萬,挑一套回家建房吧!
閱讀次數:349126次
