
|
攀比這一詞,隨著時代的發展進步,已經慢慢進入了我們的生活,無論是富足的城里人,還是貧困的農村人,這一詞跨越了地域的限制,特別是在農村建房這方面,這股風氣才是真正得到詮釋,即使是在不需要的情況下,地基也是建的一個比一個高,一個比一個貴,房子是建的一個比一個層數多,仿佛這才叫能力,這才是一個人自豪的地方,雖然這樣的風氣本質上是不對的,但是還是越來越多的人不能免俗,那怎么樣才能在一眾攀比之氣中勝出呢,讓小編用圖紙告訴你們,30萬建起的別墅,讓你立于不敗之地! 農村別墅一:
方法一:不需要太高的層數,不僅看起來累贅,后期打掃起來也是困難,反而二三層這樣的小別墅,你如果設計的好,才能給你帶來無盡的艷羨,比如這款別墅,開間16.6米,進深8.44米,占地面積140.104平方米,建筑面積280平方米,采用框架結構,造價在28萬左右。 一層設有堂屋、廚房、餐廳、汽車通道、客廳、儲藏間、衛生間。有一個獨立的堂屋,用于會客,專用的汽車通道,十分大氣,廚房與餐廳相鄰,與客廳相遠,有效隔離的油煙,樓梯下方空間利用,儲藏間必備。 二層設有陽臺、書房、露臺、2臥室、2衛生間。看起來設計不是很多,但是功能性很強,一上樓便可看見陽臺,爬樓心累的心情看到這片頓時好轉,兩間臥室內部都帶有衛生間,是沒有公衛的,就可以看出,二樓就是一個私人空間。
農村別墅二:
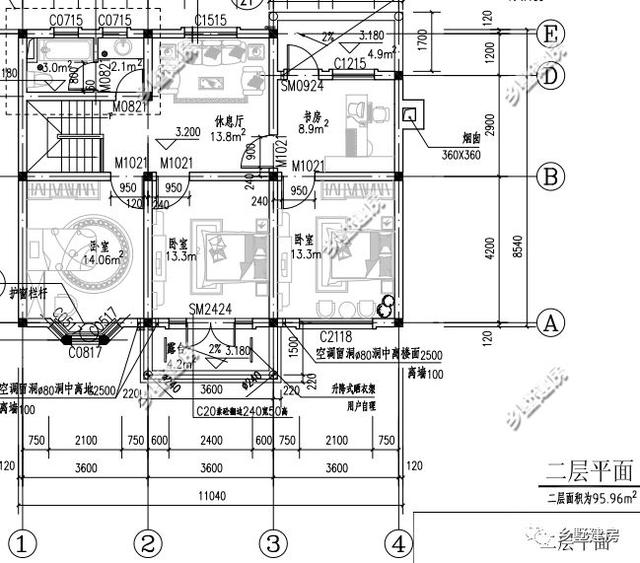
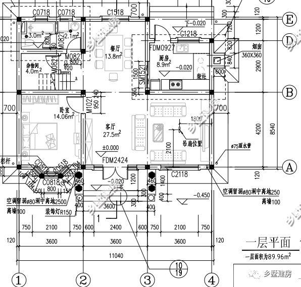
方法二:除了大氣的外觀,內部的構造也很重要,在別家的內部跟城里接軌,而失去農村韻味時,獨特純樸的農村建房設計,讓人眼前一亮,比如這款別墅,開間11.04米,進深8.54米,占地面積99.2平方米,建筑面積204平方米,而且這款別墅造價20萬不到,心動沒有? 一層設有客廳、臥室、雜物間、廚房、餐廳、柴灶、衛生間。進門處可以隔斷為玄關、門廳,最亮眼的地方莫過于土灶,這承接了最傳統建房文化,開了后門,通風。 二層設有休息廳、3臥室、書房、陽臺、衛生間、露臺。書房的設計很巧妙,沒有內嵌臥室,但又與臥室相鄰,一門之隔,卻隔去了很多麻煩,小小的露臺,卻有著讓人心情變好的能量。
農村別墅三:
方法三:出奇制勝,在農村到處建著歐式法式美式風格別墅時,你建一棟中式別墅,還能不亮眼?這回頭率那是桿桿的,中式別墅延續著中國最傳統的美,它美的莊嚴,又美的樸素,就像這款別墅,開間9.8米,進深12.8米,占地面積127.8平方米,建筑面積380.2平方米,采用框架結構,造價在38萬左右。 一層設有客廳、老人房、衣帽間、衛生間、公衛、次臥、廚房、餐廳、花院。一樓的設施小編看著也是服氣的,該有的都有了,如廚房衛生間這間必備設施,一般住宅沒有的,也有了,比如花院,地暖設備。 二層設有2套房、小客廳、陽臺。二套臥室內均帶有衣帽間衛生間。 三層設有書房、茶室、佛堂、次臥、衛生間、陽臺。三層的設計小編只能用一個字,靜來表達,書房與茶室靜的組合,卻又帶著書卷之氣,與茶香,佛堂讓人心生敬意,能靜下心的人,運氣都不會太差。
這樣的房,你們覺得能讓你們在村里成為亮眼風景嗎? 圖紙之家-專注農村別墅/自建房設計18年,集合國內200余位經驗豐富的設計師,被評為口碑最好的農村建筑設計公司! |

新中式高端豪宅三層別墅自建房設計圖,大戶型經典
占地:270平方米左右
新款現代一層小別墅設計圖,農村自建平房推薦戶型
占地:多戶型可選
10米×12米30萬以內農村建房三層豪華歐式別墅圖,處處顯品味
占地:120平方米
平屋頂現代風格三層蓋別墅設計圖紙,面寬18米
占地:235.34平方米
小L型新款二層別墅設計圖,復式客廳旋轉樓梯,14米乘13米
占地:182平方米
客廳中空三層復式別墅房屋設計圖,帶外觀效果圖
占地:145平方米
最好看的新款農村三層復式別墅設計圖片及設計圖,外觀高端、大
占地:160平方米
不帶廚房餐廳的二層別墅設計圖,農村建房很多人都這樣做
占地:124平方米左右
村里三層新中式風自建別墅圖,對稱設計,氣派好看
占地:135.3平方米
中式徽派二層農村別墅設計圖,白墻黛瓦馬頭墻,永不過時
占地:171平方米
二層簡歐農房!經濟實惠+大氣耐看,20年后不落后
占地:120平方米
2款現代風格農村兩層別墅設計圖,時尚漂亮
占地:多戶型可選
120平方米農村經典二層房屋設計圖紙,造型精致好看
占地:121平方米
中式一層仿古自建平房設計圖,灰墻青瓦,外觀古香古色
占地:168.48平方米
二層新農村自建房設計圖,帶外觀效果圖
占地:140平方米
80平方米鄉村一層半帶閣樓自建別墅設計圖,帶車庫
占地:80平方米
農村二層小別墅圖片,二層別墅效果圖及設計圖
占地:153平方米
一層農村自建房別墅設計方案,左右對稱布局好
占地:154平方米
經典美式風100平米二層小別墅設計方案,鄉村建房首選
占地:100.17平方米
農村三層中式仿古別墅設計圖紙,中國風自建房戶型
占地:158.64平方米
推薦:10套新農村自建房設計圖,2026年最新設計
閱讀次數:4825737次
100套鄉村別墅圖片大全,2026年最新設計
閱讀次數:2492203次
6款農村蓋一層平房的設計圖,10萬元就能建起來
閱讀次數:1852637次
這11個一層農村自建房別墅火爆了朋友圈!我最喜歡戶型十!你呢
閱讀次數:750268次
農村6萬元建一層小別墅圖,你敢相信嗎
閱讀次數:567686次
農村5萬塊就能自建房,6套普通房子設計圖分享,你沒看錯!
閱讀次數:419410次
8套農村漂亮三間平房圖片,非常適合在農村修建!
閱讀次數:411197次
農村自建房化糞池怎么做?附方案及施工過程
閱讀次數:391783次
農村一層三間平房設計圖,告別土氣養老房,讓人忍不住點贊
閱讀次數:350581次
新農村二層樓房圖片造價12萬,挑一套回家建房吧!
閱讀次數:349126次
