
|
這款35萬2廳6室9×12三層簡約易施工農村自建房全套Cad施工圖,戶型設計比較簡單,屬于簡約型農村自建房,比較貼近現實且容易施工,對于農村來說,這款戶型非常適合建房。
效果圖 圖紙屬性 層數: 三層 結構形式: 框架結構 開間:9.3米 進深:12.3米 主體造價:35萬 設計功能
一層平面圖 一 層: 廚房、客廳、餐廳、臥室、公衛
二層平面圖 二 層:客廳、主臥(帶陽臺)、次臥×2、公衛
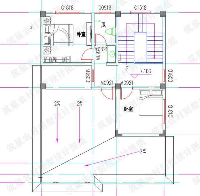
三層平面圖 三層: 臥室×2、公衛、露臺 全套圖紙包含: 建筑圖:建筑施工說明、工程做法、各層平面圖及屋頂平面圖、東西南北各個立面圖、樓梯剖面圖及大樣圖、門頭大樣圖、節點詳圖、門窗表 結構圖:結構施工說明、基礎平面布置圖、各層梁板結構配筋平面圖及屋頂結構平面圖、樓梯配筋圖以及節點大樣圖 給排水圖:給排水設計說明及圖例、各層給排水平面圖、屋頂給排水平面圖、衛生間大樣圖、給排水系統圖、給排水大樣圖 電氣圖:電氣設計說明、設備材料表、配電系統圖、等電位聯結做法、各層插座平面圖、各層弱電平面圖、基礎接地平面圖、屋頂防雷平面圖 圖紙之家-專注農村別墅/自建房設計18年,集合國內200余位經驗豐富的設計師,被評為口碑最好的農村建筑設計公司! |

150平農村三層歐式別墅設計圖紙,盡顯豪華與精致,讓人羨慕不已
占地:147.62平方米
高端三層別墅設計圖紙,客廳中空,帶地下室,設置多個套間
占地:220平方米
現代風格精致兩層農村自建房住宅設計圖,帶儲藏室
占地:163平方米
新中式120平米農村20萬元二層小樓圖,外觀柔和而雅致
占地:120平方米
面寬8米也能建別墅,小面寬農村三層別墅設計圖
占地:93.83平方米
帶院子的一層農村別墅設計圖,造價不高,養老房首選!
占地:144.819平方米
120平方米現代新農村二層自建房設計圖,造型時尚好看
占地:120平方米
農村15萬元二層小樓設計圖,造價低,簡潔、好看
占地:90平方米
三層農村小別墅設計圖,一層帶商鋪,占地110平米,經濟實用
占地:110平方米
帶地下室的一層別墅設計圖,農村自建房比較合適
占地:206平方米
90平-100平小戶型一層三間平房農村別墅設計圖方案戶型
占地:多戶型可選
最實用中式一層三合院別墅設計圖,簡約精致布局實用
占地:162.49平方米
2026新農村三層雙拼房屋設計圖紙平面圖與效果圖,帶堂屋
占地:190平方米
兩層三間農村自建房圖,125平有7間臥室,全家人都能住得下
占地:125.34平方米
鄉下一層自建養老平房戶型圖及全套圖紙,占地面積200左右
占地:200平方米
帶庭院的農村一層別墅圖紙設計,外觀時尚好看
占地:多戶型可選
2026最新款50萬左右農村三層別墅設計圖,客廳中空
占地:160平方米
120平米左右農村房屋設計圖占地面積適宜,外觀舒適大氣
占地:120平方米
小面寬的農村簡單四層2建平屋頂別墅設計圖,農村自建房首選
占地:109.29平方米
小青瓦一層中式小院三合院設計施工圖,白墻青瓦古色古香
占地:155.3平方米
推薦:10套新農村自建房設計圖,2026年最新設計
閱讀次數:4825737次
100套鄉村別墅圖片大全,2026年最新設計
閱讀次數:2492203次
6款農村蓋一層平房的設計圖,10萬元就能建起來
閱讀次數:1852637次
這11個一層農村自建房別墅火爆了朋友圈!我最喜歡戶型十!你呢
閱讀次數:750268次
農村6萬元建一層小別墅圖,你敢相信嗎
閱讀次數:567686次
農村5萬塊就能自建房,6套普通房子設計圖分享,你沒看錯!
閱讀次數:419410次
8套農村漂亮三間平房圖片,非常適合在農村修建!
閱讀次數:411197次
農村自建房化糞池怎么做?附方案及施工過程
閱讀次數:391783次
農村一層三間平房設計圖,告別土氣養老房,讓人忍不住點贊
閱讀次數:350581次
新農村二層樓房圖片造價12萬,挑一套回家建房吧!
閱讀次數:349126次
