
|
“開軒面場圃,把酒話桑麻”看到這棟精致的兩層別墅,這句詩剛好符合了這棟別墅的氣質。 下面我詳細介紹這棟別墅,經典接地氣的大開間戶型,造型上多有變化。30萬能拿下這棟4室1廳4衛布局的農村二層小別墅嗎?
別墅信息: 業主是海南陳先生,沒想到距離咱們老遠的南方朋友也喜歡咱們設計的別墅圖紙,這根據咱們TC2108改進而來。
上半部分真石漆或者涂料,下半部分立體感非常強的文化石,造型上多有凹凸變化,大坡頂精致耐看。
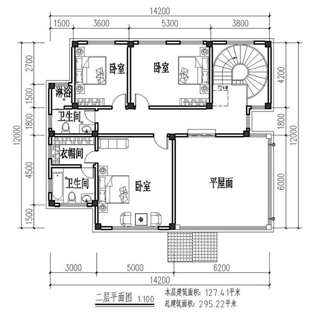
平面圖,開間14.2米,進深12米,占地面積167.81平方米,總建筑面積為295.22平方米。 入戶門廳將室內和室外形成兩個空間,避免開門見山。
一層有臥室供老人居住,棋牌室設一樓,非常符合農村自建房的生活習慣了。 二層三間臥室,主臥有衣帽間和衛生間,旋轉樓梯是增添氣勢不可或缺的流行元素。
圖紙之家-專注農村別墅/自建房設計18年,集合國內200余位經驗豐富的設計師,被評為口碑最好的農村建筑設計公司! |

漂亮時尚二層樓房設計圖紙,經濟實用,戶型通透
占地:150平方米
120平方房子設計圖帶效果圖,農村自建房戶型推薦
占地:120平方米
大氣的三層鄉村別墅設計方案圖,小面積建出豪宅感
占地:104.9平方米
95平方米農村四層房屋設計圖,8米X11米 ,預算37萬
占地:95平方米
二層半大客廳復式別墅房屋設計圖,客廳寬闊明亮
占地:125平方米
140平三層別墅房屋設計圖,含外觀圖片,外觀現代時尚
占地:143平方米
簡單實用二層雙拼樓房設計圖,造價30萬左右
占地:180平方米
農村三層歐式別墅豪宅戶型圖設計方案,復式中空客廳+旋轉樓梯
占地:134.84平方米
新農村二層帶露臺經濟型小別墅設計圖紙,含外觀效果圖
占地:120平方米
最新高端四層別墅外觀效果圖及全套設計圖,真土豪就這樣建
占地:174.08平方米
160平方米現代新農村四合院兩層別墅施工圖紙及效果圖
占地:157平方米
時尚典雅歐式三層自建房設計圖,美觀大氣簡單舒適,好看到沒得
占地:153.12平方米
2026二層農村新款別墅戶型圖,占地不到110平米
占地:110平方米
五開間一層農村平房設計圖,200平米大戶型,五間臥房足夠用了
占地:200.7平方米
2026年獨棟三層雙拼別墅戶型圖,總占地面積300平方米左右
占地:300平方米
帶閣樓二層別墅設計圖,帶外觀效果圖片
占地:160平方米
歐式二層5大間別墅設計圖,新穎獨特的外觀,面寬20米
占地:180.14平方米
簡潔干練三層現代風平頂別墅設計圖,8X15米
占地:115.1平方米
農村一層養老別墅設計圖,兩個戶型方案可選
占地:多種戶型
旋轉樓梯挑空獨棟二層簡歐小別墅設計圖,大氣時尚
占地:189.26平方米
推薦:10套新農村自建房設計圖,2026年最新設計
閱讀次數:4825737次
100套鄉村別墅圖片大全,2026年最新設計
閱讀次數:2492203次
6款農村蓋一層平房的設計圖,10萬元就能建起來
閱讀次數:1852637次
這11個一層農村自建房別墅火爆了朋友圈!我最喜歡戶型十!你呢
閱讀次數:750268次
農村6萬元建一層小別墅圖,你敢相信嗎
閱讀次數:567686次
農村5萬塊就能自建房,6套普通房子設計圖分享,你沒看錯!
閱讀次數:419410次
8套農村漂亮三間平房圖片,非常適合在農村修建!
閱讀次數:411197次
農村自建房化糞池怎么做?附方案及施工過程
閱讀次數:391783次
農村一層三間平房設計圖,告別土氣養老房,讓人忍不住點贊
閱讀次數:350581次
新農村二層樓房圖片造價12萬,挑一套回家建房吧!
閱讀次數:349126次
