
|
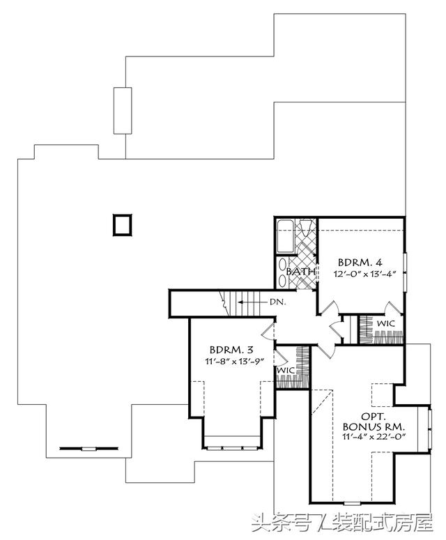
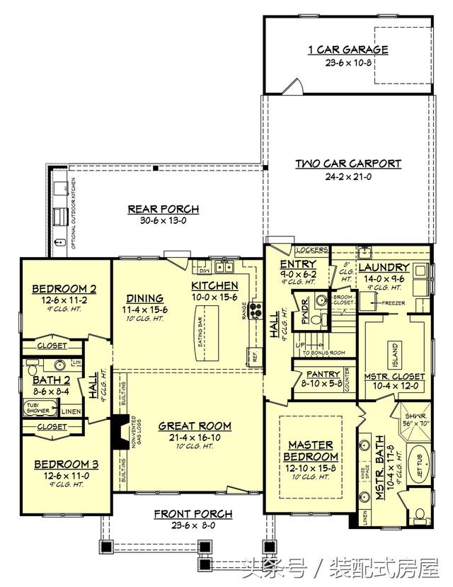
一個溫馨的前門廊,明亮的白色隔板上掛著一個站立縫金屬屋頂,使這個計劃成為當代農家風格的完美典范。 開放的較低的水平,以巨大的廚房島作為錨點,旨在充分利用戶外活動。 主層還包括一個設備齊全的主人套房,以及也可用作辦公室或書房的套房。 服務區域很大,可容納任何規模的家庭,有組織的存儲和洗衣空間。 上層提供了兩個臥室套房,每個臥室都有自己的浴缸和一個有很多可能性的大型額外浴缸/房間。
隨著其開放的餐廳流入廚房,這個計劃感覺現代化,并為家庭真正居住的方式而設計。 套房邀請游客留下來放松身心。 在這個層面上,主人套房還包括一個大淋浴間,一個可欣賞風景的浴缸和兩個水槽。 裝飾性的天花板處理吸引你的目光,尤其是在拱形家庭房間。 兩個門廊,一個壁爐和另一個惡劣天氣篩選,邀請全年戶外生活。 第二級獎金室允許以后擴展。
作為節能家居計劃集合的一部分,這種迷人的南方風格充滿了節能加特色設施,如10英尺高的天花板,點燃的壁龕,帶蓋的門廊,豪華的主人套房以及使這間分體臥室開放的貼心設計。 平面圖居住大。 其他功能還包括:從書房和主人套房進入門廊,為客人臥室提供杰克和吉爾浴室,正式和非正式用餐區以及步入式儲藏室。 三間臥室和兩個半浴室在公共區域進行私人緩沖,這是所有節能增效計劃中的一項精心設計。 這個模型成為東南部地區第一個生產建造的凈零住宅,從所有節能增效計劃中的尖端節能建筑技術標準開始。 隨著專業設計的太陽能電池陣列的增加,這個卓越的家庭產生的功率比它使用的更多。 美麗。宜居。可持續發展。
帶太陽能板別墅
室內效果
室內效果
室內效果
這個美妙的3臥室,2½浴室計劃加載功能和風格。 它提供了一個豪華的主人套房,超大的雜物間,帶儲物柜的mudroom入口,大型步入式儲藏室,特色天花板和巨大的遏制吸引力。 受歡迎的開放式概念為娛樂提供了極大的空間,室外門廊擁有室外廚房區。 車庫上方還設有獎金室,為未來的擴建提供了完美的空間。
圖紙之家-專注農村別墅/自建房設計18年,集合國內200余位經驗豐富的設計師,被評為口碑最好的農村建筑設計公司! |

185平方米二層自建別墅設計施工圖紙及外觀效果圖,15x13米
占地:186平方米
二層小別墅設計方案圖,平頂設計帶cad施工圖和外觀效果圖
占地:147平方米
高端大氣三層雙拼自建房設計圖,外觀漂亮,240平左右
占地:240平方米
歐式風格三層別墅建筑設計圖,復式樓中樓結構
占地:138平方米
兩層半雙拼別墅設計方案,超大露臺+歐式風格,好設計別錯過!
占地:175.8平方米
簡單實用農村自建小樓二層別墅設計圖,戶型造型簡約好看
占地:146平方米
12米寬三間二層農村自建房設計圖,左右對稱布局緊湊看著就舒服
占地:144.94平方米
最新農村三層樓房設計圖紙,客廳中空,采用暖黃色為主色
占地:160平方米
農村蓋房設計大全一層房子的設計圖紙,色調清新靚麗
占地:220平方米
農村自建二層半樓房效果圖,美觀大氣布局合理,很適合農村人自
占地:160.11平方米
50萬左右農村三層別墅設計圖,歐式的外觀大氣沉穩
占地:150平方米
農村兩層帶地下室別墅設計圖,還帶庭院規劃,適合農村建
占地:144.5平方米
農村三層半自建房子效果圖及設計圖,戶型占地90平方米左右
占地:92.17平方米
一層雙拼別墅獨立入戶+共用墻,兄弟合建,施工隊直呼太省料
占地:269.43平方米
農村一層平房設計圖,人字坡戶型簡單大方,養老自住都不錯
占地:139.2平方米
150平方米二層別墅設計及效果圖展示下載,17X10米
占地:150平方米
農村三間四層樓房設計圖,農村輕奢型四層別墅
占地:160平方米
180平方米新農村自建二層小別墅設計圖及效果圖,15X13米
占地:183平方米
獨棟別墅設計戶型圖帶外觀效果圖,雙向樓梯設計
占地:155平方米
帶地下室的三層歐式別墅戶型設計圖,帶地下室農村自建房
占地:139.256平方米
推薦:10套新農村自建房設計圖,2026年最新設計
閱讀次數:4825737次
100套鄉村別墅圖片大全,2026年最新設計
閱讀次數:2492203次
6款農村蓋一層平房的設計圖,10萬元就能建起來
閱讀次數:1852637次
這11個一層農村自建房別墅火爆了朋友圈!我最喜歡戶型十!你呢
閱讀次數:750268次
農村6萬元建一層小別墅圖,你敢相信嗎
閱讀次數:567686次
農村5萬塊就能自建房,6套普通房子設計圖分享,你沒看錯!
閱讀次數:419410次
8套農村漂亮三間平房圖片,非常適合在農村修建!
閱讀次數:411197次
農村自建房化糞池怎么做?附方案及施工過程
閱讀次數:391783次
農村一層三間平房設計圖,告別土氣養老房,讓人忍不住點贊
閱讀次數:350581次
新農村二層樓房圖片造價12萬,挑一套回家建房吧!
閱讀次數:349126次
