
|
別墅是人類居住的終極理想與最高形式,人人都希望能住上大別墅,過著舒適的生活,但生活中很多人覺得別墅離自己是那么遙遠,住別墅對自己來說只有在夢里才存在,不過小編覺得,只要心中有夢,終有一天會實現,如果連想都不敢想,那么住別墅更是不可能的事情了。 其實別墅也沒有那么遙不可及,現在很多農村都蓋起了別墅,主體幾十萬就能建成了,下面給大家分享一款占地180平方米三層帶地下室農村別墅戶型圖,這款別墅設計相當豪華,地下室帶有設有酒窖、家庭影院、健身區等功能,符合現代人的住房需求。其他樓層的功能設計也十分流暢,總之這是一套將住房和娛樂完美結合的農村別墅戶型圖。
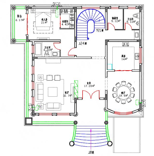
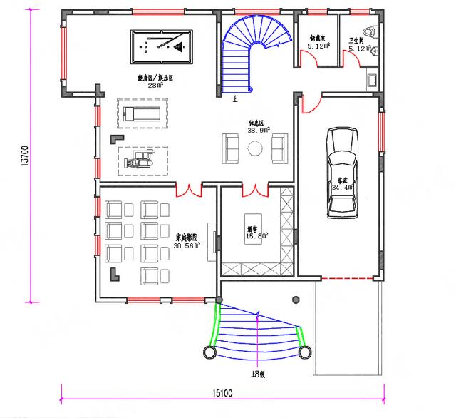
本套三層農村別墅戶型圖簡介 層數:三層(不含地下室) 開間:15.1米 進深:13.7米 首層占地面積:183平方米 總建筑面積:630平方米 結構形式:框架結構 主體造價:70萬 本套三層農村別墅戶型圖功能設計
地下室平面圖 地下室:車庫、酒窖、家庭影院、休息區、儲藏室、衛生間、健身區/娛樂區
一層平面圖 一層:玄關、挑空客廳、廚房、餐廳、老人房(帶陽臺、衣帽間、衛生間)、儲藏室、衛生間
二層平面圖 二層:起居室、吧臺、臥室(帶陽臺、衣帽間、衛生間)、主臥(帶起居室、衣帽間、衛生間)
三層平面圖 三層:起居室(帶露臺)、臥室(帶衛生間、陽臺)、書房、兒子房(帶露臺、衣帽間、衛生間) 其它別墅圖紙展示:
1
2
3
4 圖紙之家-專注農村別墅/自建房設計18年,集合國內200余位經驗豐富的設計師,被評為口碑最好的農村建筑設計公司! |

私人二層中式四合院別墅建筑設計圖,新農村經濟實用戶型
占地:145平方米
新農村現代簡約別墅建筑設計圖紙(含外觀效果圖),28萬左右
占地:107平方米
現代三層農村房屋設計圖紙及效果圖,帶全套cad建筑圖
占地:95平方米
新農村自建三層樓房設計圖紙,外觀簡單大方
占地:137平方米
一層4間自建平房別墅及全套戶型圖紙,占地160平左右,簡單實用
占地:162.13平方米
農村三層帶地下室住宅設計圖及圖片,房內設計了兩個套間
占地:210平方米
95平經濟適用三層農村小別墅設計圖,二開間推薦爆款戶型
占地:95.31平方米
高端三層獨棟歐式別墅效果圖,帶大衛生間,CAD全套施工設計圖
占地:158平方米
鄉下建房一層戶型圖,一層住宅設計圖紙,誰說一層平房不能叫別
占地:200平方米
140平二層帶閣樓別墅設計方案圖,外觀圖片色彩明快
占地:140平方米
大面積農村一層房子設計圖,戶型實用、合理
占地:190平方米
面寬17米農村實用自建房一層別墅設計圖,簡約大氣經濟時尚
占地:192.94平方米
100平新農村三層復式房屋別墅設計圖紙,造價30萬左右
占地:106平方米
2026農村漂亮的一層平房圖片平面圖與全套施工圖紙,戶型周正
占地:150平方米
帶車庫徽派風格三層別墅房屋設計圖,新農村住宅設計推薦
占地:140平方米
230平方農村雙拼別墅設計圖,26x11米自建房屋戶型
占地:230平方米
對稱型歐式別墅設計圖,穩重實用,開間18米,適合全國農村建
占地:228.2 平方米
12米×10米左右一層別墅平房戶型圖及設計圖,造價低
占地:110平方米
8×12米農村三層別墅自建房設計圖,小開間精選方案
占地:103平方米
堂屋共用五間雙拼別墅設計圖,適合二兄弟的二層別墅
占地:292.5平方米左右
推薦:10套新農村自建房設計圖,2026年最新設計
閱讀次數:4825737次
100套鄉村別墅圖片大全,2026年最新設計
閱讀次數:2492203次
6款農村蓋一層平房的設計圖,10萬元就能建起來
閱讀次數:1852637次
這11個一層農村自建房別墅火爆了朋友圈!我最喜歡戶型十!你呢
閱讀次數:750268次
農村6萬元建一層小別墅圖,你敢相信嗎
閱讀次數:567686次
農村5萬塊就能自建房,6套普通房子設計圖分享,你沒看錯!
閱讀次數:419410次
8套農村漂亮三間平房圖片,非常適合在農村修建!
閱讀次數:411197次
農村自建房化糞池怎么做?附方案及施工過程
閱讀次數:391783次
農村一層三間平房設計圖,告別土氣養老房,讓人忍不住點贊
閱讀次數:350581次
新農村二層樓房圖片造價12萬,挑一套回家建房吧!
閱讀次數:349126次
