
|
這款三層歐式別墅外觀采用灰色為主色調,大氣耐看,主體造價35萬,帶有挑空客廳、車庫、休閑廳、健身房、露臺、陽臺等功能,共設有2廳6臥,首層占地約130㎡,實用美觀。
層數:三層 開間:10.90米 進深:13.70米 首層占地面積:133.66平方米 總建筑面積:335.66平方米 建筑高度:12.858 結構形式:框架結構 主體造價:35萬 功能設計
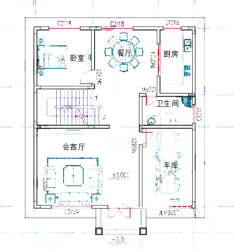
一層平面圖 一層:車庫、會客廳(挑空)、廚房、餐廳、臥室、公衛
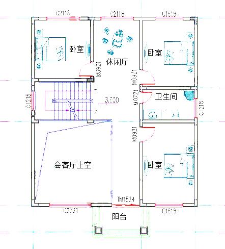
二層平面圖 二層:休閑廳、臥室×3、公衛、陽臺
三層平面圖 三層:健身房、臥室×2、公衛、露臺 關注筑巢自建房別墅圖紙頭條號,觀看鄉鄰曬家,每日更新。 您也可以在手機app上直接點擊本頭條號頭像,左下角菜單欄有【圖紙中心】,有更多漂亮經濟實用的圖紙展示哦~~
1
2
3
4
5 圖紙之家-專注農村別墅/自建房設計18年,集合國內200余位經驗豐富的設計師,被評為口碑最好的農村建筑設計公司! |

新農村二層客廳挑高樓房設計圖,外觀歐式風格
占地:178平方米
歐式小別墅設計圖紙帶效果圖,二層歐式小別墅設計方案展示
占地:166平方米
二層平頂別墅設計圖,漂亮經濟實用二層農村小別墅最新房屋設計
占地:多種戶型
100平方米左右新農村二層房屋設計建筑CAD圖紙帶外觀效果圖
占地:多戶型可選
地中海風格二層別墅設計圖方案,含外觀效果圖
占地:130平方米
最實用一層小別墅設計方案,造價不高顏值高,家家都喜歡!
占地:143.48平方米
最美二層樓別墅圖片大全及全套建筑設計圖紙,20萬左右
占地:140平方米
帶雙車庫的新中式二層四合院別墅設計圖,戶型布局實用
占地:321平方米
經典的農村三層小樓房設計圖,外觀圖片時尚、精致
占地:100平方米
三層平頂現代風格,農村自建房設計圖,可帶電梯,百看不厭
占地:259.55平方米
一層農村三合院別墅設計方案圖,秀氣優美,大氣又實用
占地:191.18平方米
雙戶168平方米小戶型新農村雙拼樓房設計建筑圖紙帶外觀圖
占地:168平方米
150平米左右歐式三層鄉村別墅設計圖,客廳中空
占地:150平方米
占地130平方米二層鄉村別墅自建房圖紙設計圖,效果圖好看
占地:131.658平方米
180平米農村二層小別墅設計圖,外觀漂亮,帶露臺
占地:180平方米
100平方米新農村住宅二層小別墅設計CAD圖紙及效果圖,10x10米
占地:96平方米
獨立餐廳廚房,平屋頂現代風格三層別墅設計圖
占地:159.02平方米
農村一層養老別墅設計圖,14.8x17.9米,戶型對稱,實用布局
占地:193平方米
占地130平三層現代別墅設計圖方案,帶電梯和地下室設計
占地:134.75平方米
農村三層樓房圖造價26萬,客廳中空,占地90平米
占地:90平方米
推薦:10套新農村自建房設計圖,2026年最新設計
閱讀次數:4825737次
100套鄉村別墅圖片大全,2026年最新設計
閱讀次數:2492203次
6款農村蓋一層平房的設計圖,10萬元就能建起來
閱讀次數:1852637次
這11個一層農村自建房別墅火爆了朋友圈!我最喜歡戶型十!你呢
閱讀次數:750268次
農村6萬元建一層小別墅圖,你敢相信嗎
閱讀次數:567686次
農村5萬塊就能自建房,6套普通房子設計圖分享,你沒看錯!
閱讀次數:419410次
8套農村漂亮三間平房圖片,非常適合在農村修建!
閱讀次數:411197次
農村自建房化糞池怎么做?附方案及施工過程
閱讀次數:391783次
農村一層三間平房設計圖,告別土氣養老房,讓人忍不住點贊
閱讀次數:350581次
新農村二層樓房圖片造價12萬,挑一套回家建房吧!
閱讀次數:349126次
