
|
下面要給大家分享的一款三層自建房,是一款農村聯排雙拼兄弟合建房,主體造價50萬左右,平攤一人出25萬。首層占地面積約有180平方米,單戶設有1廳5臥,有套間,布局合理,功能實用流暢,外觀也十分氣派,一起來看看。
效果圖 戶型簡介 開間進深:16.18m×11.68m 一層面積:176.70平方米 二層面積:176.70平方米 閣樓層面積:140.83平方米 主體造價:50萬 功能設計(單戶)
一層平面圖 一層:客廳、臥室、衣帽間、廚房、餐廳、公衛
二層平面圖 二層:臥室(帶陽臺、衣帽間)、臥室(帶衛生間)、臥室、公衛
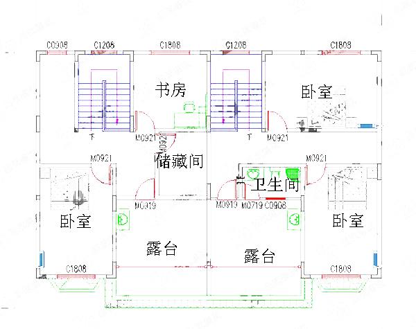
各樓層平面圖 閣樓層:臥室、書房、儲藏間、露臺 其他4款雙拼戶型設計圖分享,你喜歡哪一款?
1
2
3
4 圖紙之家-專注農村別墅/自建房設計18年,集合國內200余位經驗豐富的設計師,被評為口碑最好的農村建筑設計公司! |

農村小洋樓設計圖及效果圖,二層樓房設計圖
占地:120平方米
共用樓梯二層雙拼自建別墅設計圖,簡單大氣方正
占地:153.88平方米,
200平米左右二層樓房設計圖,外觀看著舒服、布局住著坦然
占地:190平方米
帶架空層一層農村別墅設計圖,回鄉建房優選,家有豪宅幸福來敲
占地:124.76平方米
面寬15米一層四間現代風別墅,外觀漂亮布局實用,養老度假超巴
占地:180平方米
農村三層樓房設計圖紙及效果圖,經典自建圖紙
占地:201平方米
一層農村必蓋戶型設計方案,養老自住兩相宜,經濟實惠又耐用!
占地:150.36平方米
預算30萬三層樓房設計圖含效果圖,戶型經典
占地:125平方米
現代風格三拼別墅設計圖紙,三兄弟回村自建房戶型
占地:324平方米
新中式農村50萬三層別墅款式圖,占地面積160平米左右
占地:150平方米
新式帶挑空客廳三層鄉村別墅設計圖,占地170平左右
占地:170平方米
125平方米新農村二層房屋施工設計CAD圖紙加效果圖
占地:125平方米
經典三層別墅設計圖,時尚典雅美觀大氣,新農村自建的理想之選
占地:119.45平方米
農村二層小別墅圖片,二層別墅效果圖及設計圖
占地:153平方米
160平方米經典鄉村二層房屋設計圖紙
占地:160平方米
農村小戶型二層房屋別墅設計圖,帶外觀效果圖
占地:95平方米
戶型簡單實用的三層農村房屋設計圖紙,復式結構,大面積開窗,
占地:170平方米
200平米二層自建房別墅設計圖,外觀漂亮布局實用
占地:207.09平方米
農村10萬元一層小別墅設計圖紙,戶型實用又合理
占地:130平方米
新農村三拼別墅三戶連體別墅設計圖,設計新穎美觀
占地:380平方米
推薦:10套新農村自建房設計圖,2026年最新設計
閱讀次數:4825737次
100套鄉村別墅圖片大全,2026年最新設計
閱讀次數:2492203次
6款農村蓋一層平房的設計圖,10萬元就能建起來
閱讀次數:1852637次
這11個一層農村自建房別墅火爆了朋友圈!我最喜歡戶型十!你呢
閱讀次數:750268次
農村6萬元建一層小別墅圖,你敢相信嗎
閱讀次數:567686次
農村5萬塊就能自建房,6套普通房子設計圖分享,你沒看錯!
閱讀次數:419410次
8套農村漂亮三間平房圖片,非常適合在農村修建!
閱讀次數:411197次
農村自建房化糞池怎么做?附方案及施工過程
閱讀次數:391783次
農村一層三間平房設計圖,告別土氣養老房,讓人忍不住點贊
閱讀次數:350581次
新農村二層樓房圖片造價12萬,挑一套回家建房吧!
閱讀次數:349126次
