
|
0萬11×11米2廳8臥三層自建房全套圖紙,挑空客廳+休息廳+套房 這款三層別墅外立面采用淡淡的純換色裝飾,屋頂為桔黃色,采用坡屋頂的形式,有多個拱形落地窗,室內布局合理,功能多樣,寬敞明亮,一層客廳挑空設計,二層設有休息廳,每層樓的主臥均帶有獨立衛生,契合現代人的生活習慣。
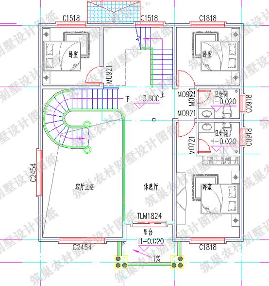
效果圖 層數: 三層 結構形式: 框架結構 主體造價: 40萬 開間: 10.8米(不含門柱) 進深: 11.5米 占地面積: 133.39平方米 總建筑面積: 325.84平方米 功能設計
一層平面圖 一層: 玄關、挑空客廳、廚房、餐廳、主臥(帶衛生間)、臥室、公衛
二層平面圖 二 層: 休息廳(帶陽臺)、主臥(帶衛生間)、次臥×2、公衛 三層: 主臥(帶衛生間)、次臥×2、書房、露臺、公衛 圖紙之家-專注農村別墅/自建房設計18年,集合國內200余位經驗豐富的設計師,被評為口碑最好的農村建筑設計公司! |

二層美式自建別墅設計圖,全套施工圖+外觀效果圖
占地:145平方米
面寬13米方正戶型二層小別墅設計方案,南北通透采光好
占地:166.78平方米
歐式農村三層小別墅設計圖,占地120平米,客廳中空,空間利用率
占地:120平方米
2026新款戶型三層新農村別墅房屋設計圖紙,外觀對稱
占地:160平方米
小占地二層徽派別墅設計圖,白墻黛瓦韻味十足,太氣派了
占地:89.6平方米
16x14米三層雙拼別墅設計圖,外觀精致大氣內里實用,兄弟建房上
占地:217.28平方米
簡單實用的四層農村自建房屋設計圖,占地100平米左右
占地:100平方米
鄉下復式三層房子設計圖,帶堂屋,客廳中空,輕奢風格
占地:190平方米
農村二層半別墅圖片大全,二層半別墅設計圖推薦
占地:160平方米
小宅基地自建房設計圖,占地不到90平三層別墅圖紙
占地:87平方米左右
新款三層豪華大氣歐式別墅設計圖,3種戶型設計方案
占地:125平方米左右
農村小別墅一層設計圖紙,全套施工圖兩款戶型可選
占地:多種戶型可選
歐式風格三層自建房設計圖,外觀高端大氣,彰顯業主的高貴品質
占地:180平方米
135平方米新農村三層別墅設計圖紙,外觀效果圖很漂亮
占地:134平方米
面寬13米帶堂屋三層農村別墅圖,新中式大氣風格
占地:151.58平方米
新中式二層雙拼別墅農村自建房子設計圖紙,面寬19米
占地:240平方米左右,單
四層復式別墅設計方案,外觀氣派布局實用,舒適宜居美極了!
占地:204.64平方米
歐式二層小別墅設計圖紙(含外觀效果圖)
占地:141平方米
面寬12米三層自建房別墅設計圖,廚房在前面,農村施工隊都能建
占地:138.18平方米
農村二層別墅優選設計圖,戶型小巧精致,顏值與實用并存!
占地:95.25平方米
推薦:10套新農村自建房設計圖,2026年最新設計
閱讀次數:4825737次
100套鄉村別墅圖片大全,2026年最新設計
閱讀次數:2492203次
6款農村蓋一層平房的設計圖,10萬元就能建起來
閱讀次數:1852637次
這11個一層農村自建房別墅火爆了朋友圈!我最喜歡戶型十!你呢
閱讀次數:750268次
農村6萬元建一層小別墅圖,你敢相信嗎
閱讀次數:567686次
農村5萬塊就能自建房,6套普通房子設計圖分享,你沒看錯!
閱讀次數:419410次
8套農村漂亮三間平房圖片,非常適合在農村修建!
閱讀次數:411197次
農村自建房化糞池怎么做?附方案及施工過程
閱讀次數:391783次
農村一層三間平房設計圖,告別土氣養老房,讓人忍不住點贊
閱讀次數:350581次
新農村二層樓房圖片造價12萬,挑一套回家建房吧!
閱讀次數:349126次
