
|
60萬三層西班牙風格占地160㎡3廳9臥帶地下車庫+套房別墅設計圖 西班牙風格的建筑通常以遠高近低的層級方式排布,高低錯落,符合人的空間尺度感。外立面設計著西班牙建筑重突出整體的層次感和空間表情,通過空間層次的轉變,打破傳統立面的單一和呆板,其節奏、比例、尺度符合數學美。 其基本特征是: A、屋頂多為紅瓷瓦鋪設 B、屋沿朝兩側外伸,戶內有庭院; C、門廊和窗多顯拱形。
效果圖 層數:三層(不含地下室) 開間:22.28米 進深:9.04米 首層占地面積:157.21平方米 總建筑面積:594.11平方米 結構形式:框架結構 主體造價:60萬 功能設計
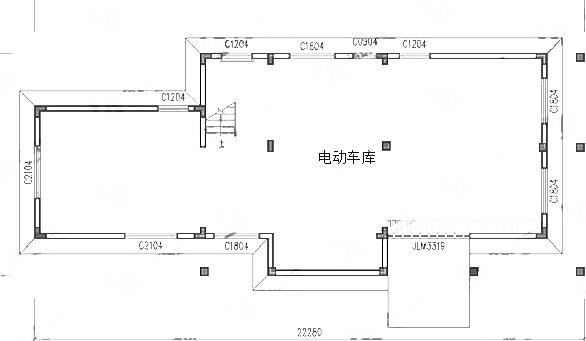
地下室平面圖 地下室:電動車庫
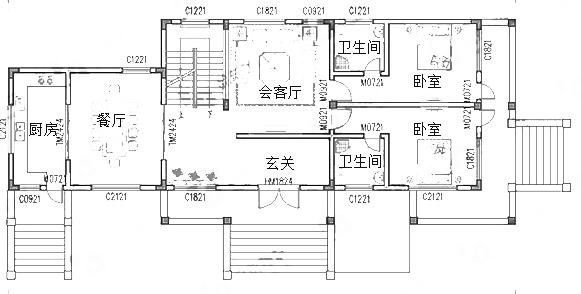
一層平面圖 一層:玄關、會客廳、臥室×2(均帶內衛)、廚房、餐廳
二層平面圖 二層:家庭廳(帶露臺)、主臥室(帶內衛、衣帽間)、臥室×2(帶內衛)、臥室、公衛
三層平面圖 三層:家庭廳、臥室(帶內衛、儲藏間、露臺)、臥室(帶內衛、露臺)、臥室(帶內衛) 圖紙之家-專注農村別墅/自建房設計18年,集合國內200余位經驗豐富的設計師,被評為口碑最好的農村建筑設計公司! |

巴洛克風格別墅設計圖紙及效果圖,農村建一棟想低調都難
占地:256平方米左右
農村建房兄弟雙拼三層,經典的歐式風格,大氣的外觀
占地:250平方米
小面寬農村兩開間二層小別墅,簡單實用雖小但不擁擠
占地:118.56平方米
建完被夸半年!現代風三層農村別墅,顏值抗打還百看不厭
占地:136.01平方米
210平米新農村自建二層施工圖紙,預留電梯位,美觀大氣舒適實用
占地:208.5平方米
140平方米新農村二層自建平屋頂房屋設計圖紙帶外觀效果圖
占地:140平方米左右
農村自建房設計圖,三層房屋設計圖及效果圖
占地:120平方米
2026年新款別墅外觀圖及全套施工圖紙,占地面積13×10米
占地:130平方米
現代風平屋頂三層半農村小別墅設計圖,面寬僅7米
占地:90平方米
農村四間兩層樓房設計圖,帶車庫,時尚經濟,最適合農村施工的
占地:180平方米
最新款二層半別墅圖片,占地115平米左右,帶地下室,帶露臺
占地:115平方米
農村三層中式仿古別墅設計圖紙,中國風自建房戶型
占地:158.64平方米
一層農村自建房設計圖,造型美觀大氣,占地150平
占地:153.415平方米
現代風格精致兩層農村自建房住宅設計圖,帶儲藏室
占地:163平方米
120平米三層小別墅設計方案和效果圖,端莊大氣很經典
占地:120平方米
160平小開間大進深農村三層別墅設計圖紙
占地:158.73平方米
四開間一層半別墅設計圖,帶閣樓設計的戶型方案
占地:190.7平方米
戶型簡單實用的三層農村房屋設計圖紙,復式結構,大面積開窗,
占地:170平方米
130平方米歐式實用農村二層樓別墅圖紙帶外觀圖12X13米
占地:132平方米
別致漂亮二層別墅設計圖紙,占地160平米左右,精致的外觀,讓人
占地:160平方米
推薦:10套新農村自建房設計圖,2026年最新設計
閱讀次數:4825737次
100套鄉村別墅圖片大全,2026年最新設計
閱讀次數:2492203次
6款農村蓋一層平房的設計圖,10萬元就能建起來
閱讀次數:1852637次
這11個一層農村自建房別墅火爆了朋友圈!我最喜歡戶型十!你呢
閱讀次數:750268次
農村6萬元建一層小別墅圖,你敢相信嗎
閱讀次數:567686次
農村5萬塊就能自建房,6套普通房子設計圖分享,你沒看錯!
閱讀次數:419410次
8套農村漂亮三間平房圖片,非常適合在農村修建!
閱讀次數:411197次
農村自建房化糞池怎么做?附方案及施工過程
閱讀次數:391783次
農村一層三間平房設計圖,告別土氣養老房,讓人忍不住點贊
閱讀次數:350581次
新農村二層樓房圖片造價12萬,挑一套回家建房吧!
閱讀次數:349126次
