
|
35萬2廳7臥三層獨棟別墅設計圖,挑空客廳+麻將室+娛樂室+套房 這款三層獨棟別墅設計圖奢華大氣,有雙落地窗,走廊、門廊、挑空客廳、麻將室、娛樂室、套房、大露臺、陽臺、飄窗等特色功能,外觀采用金黃色為主色,尊貴豪華。
效果圖 圖紙詳情 層數:三層 開間:12.2米 進深:13.1米 首層占地面積:143.46平方米 總建筑面積:345.37平方米 結構形式:框架結構 主體造價:35萬 功能設計
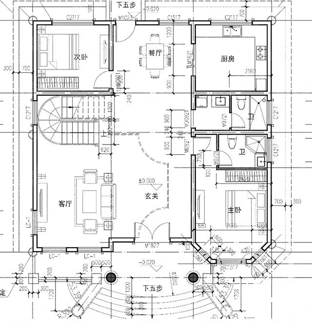
一層平面圖 一層:玄關、主臥、挑空客廳、廚房、餐廳、主臥(帶衛生間)、次臥、公衛
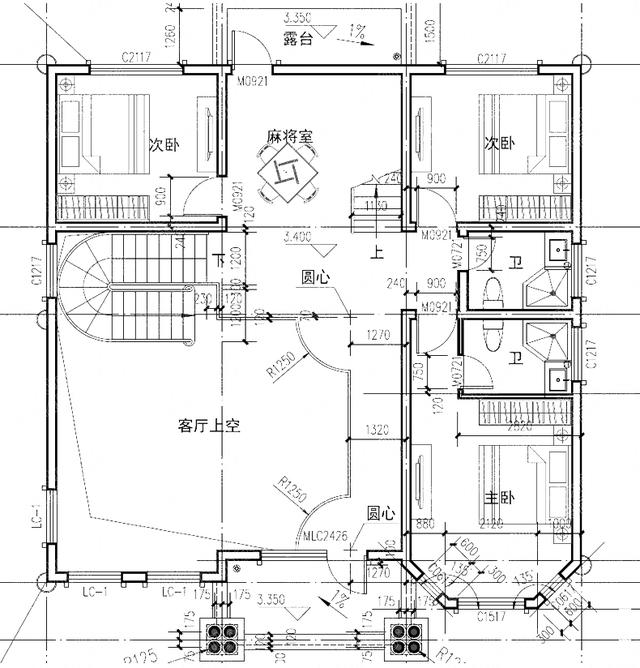
二層平面圖 二層:麻將室(帶露臺)、主臥(帶衛生間)、次臥×2、陽臺、公衛
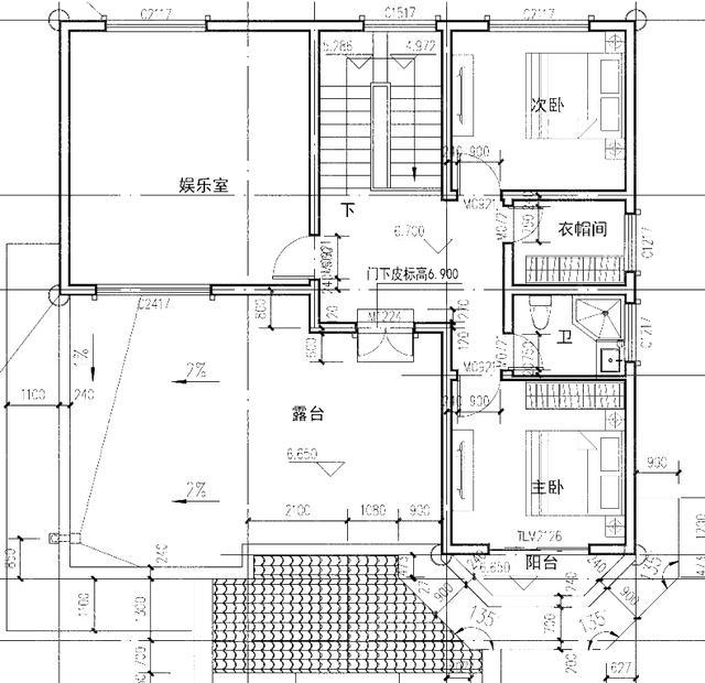
三層平面圖 三層:娛樂室、主臥(帶衛生間、陽臺)、次臥、公衛、露臺、 圖紙之家-專注農村別墅/自建房設計18年,集合國內200余位經驗豐富的設計師,被評為口碑最好的農村建筑設計公司! |

140平三層復式別墅設計圖及外觀效果圖
占地:140平方米
11x9三層別墅房屋設計圖,含效果圖片
占地:97平方米
現代風格二層別墅設計圖,外觀時尚、大氣
占地:153平方米
150平米田園風格二層別墅設計圖紙,沉穩大氣有內涵
占地:150平方米
新中式復式三層別墅設計圖紙,最美的新中式別墅
占地:130平方米
占地70平米一層小戶型別墅設計圖,功能齊全造價低,耐看實用
占地:70.19平方米
農村一層中式三合院別墅設計圖,戶型經典實用,19米乘15米
占地:243.21平方米
小戶型徽派建筑別墅設計方案大全,三層別墅設計圖推薦
占地:95平方米
農村二層半別墅設計圖,簡單實用,造價低
占地:140平方米
130平米最新氣派農村四層樓房設計圖,四層樓房圖片
占地:130平方米
占地百平農村三層戶型方案,簡約實用,獨具特色,理想新居等你
占地:105.61平方米
二層農村雙拼別墅帶露臺設計圖,20×11.8米,單戶110平米
占地:220平方米
高端大氣的三層新中式合院別墅設計圖紙及外觀效果圖
占地:203.4平方米
35萬左右的農村小別墅設計圖及效果圖,新中式風格
占地:137平方米
農村18萬元二層小樓圖,占地120平面,戶型緊湊合理
占地:120平方米
150平米一層農村別墅設計圖,養老自住都很不錯,關鍵是造價也很
占地:156平方米
四層別墅豪宅外觀效果圖及全套施工圖,高端歐式風格
占地:176.97平方米
農村三層樓房設計圖三層別墅圖片,占地面積135平米
占地:135平方米
樓中樓客廳挑高二層別墅設計圖,復式別墅方案推薦
占地:122平方米
新款農村三層雙拼聯體別墅戶型圖,客廳中空,單戶120平米左右
占地:240平方米
推薦:10套新農村自建房設計圖,2026年最新設計
閱讀次數:4825737次
100套鄉村別墅圖片大全,2026年最新設計
閱讀次數:2492203次
6款農村蓋一層平房的設計圖,10萬元就能建起來
閱讀次數:1852637次
這11個一層農村自建房別墅火爆了朋友圈!我最喜歡戶型十!你呢
閱讀次數:750268次
農村6萬元建一層小別墅圖,你敢相信嗎
閱讀次數:567686次
農村5萬塊就能自建房,6套普通房子設計圖分享,你沒看錯!
閱讀次數:419410次
8套農村漂亮三間平房圖片,非常適合在農村修建!
閱讀次數:411197次
農村自建房化糞池怎么做?附方案及施工過程
閱讀次數:391783次
農村一層三間平房設計圖,告別土氣養老房,讓人忍不住點贊
閱讀次數:350581次
新農村二層樓房圖片造價12萬,挑一套回家建房吧!
閱讀次數:349126次
