
|
現在城里的房子很多戶型都帶一個入戶花園,不過城里的房子面積有限,所以入戶花園的面積一般都比較的小。但在農村就不同了,今天小編為大家介紹的這款二層農村自建房設計圖,入戶有一個大庭院,比起城市里的入戶花園好多了,想建房的朋友都看看吧!
房子的整體采用的是簡歐的設計風格,為了在滿足自建房層高限制的同時因保障使用功能,所以選用了平屋頂的造型。房子的立面材質上以真石漆為主,同時在南立面上選用了部分的文化石作為裝飾,更顯居住者的品味與房屋檔次。
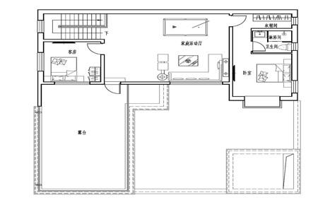
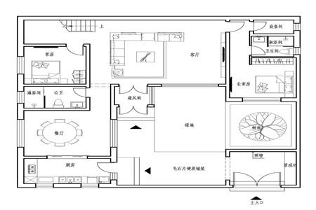
在平面設計上,關于房間應該布置在哪個方位都遵循了風水設計中的原則,如避免了四角布置主要功能用房,同時根據風水玄學未在北側開窗、入口設避風閣并設立與東南側、廚房和客廳不宜挨著等。正因在北側無法采光,所以將房屋設計為“L”型布置,避免了進深過大導致房間北段的采光不足。在一層中設立了客廚餐衛等功能,并布置了兩間臥室,將老人房設在了最為講究的東南位。為了解決“L”型布局導致的餐廳客廳流線距離問題,在廚房還設立了單獨的出入口。
二層除了兩間客房以外的空間都被用作活動廳使用,是為了滿足居住者對大空間的使用要求。一二層的廳堂面積皆有35㎡左右,而后期的結構設計對這一空間的安全做了有力的保障。
在入口和圍墻處借鑒了中式建筑的元素,讓房屋有中西結合的特色。
廚房和餐廳的屋頂被設計為二層的露臺,是一個適合戶外燒烤聚會的好地方。
庭院的東側設計了水系,整體庭院的風格偏向日式風格。
同時為了保證采光環境和隱私環境,將南側都設計成落地大窗,而東西側都采用高窗的設計。
綜上所述,關于二層農村自建房設計圖的相關內容介紹就為大家講解到這里了,希望能對想在農村建房的朋友們有所幫助! 圖紙之家-專注農村別墅/自建房設計18年,集合國內200余位經驗豐富的設計師,被評為口碑最好的農村建筑設計公司! |

90平方米小戶型自建三層房屋設計圖紙及外觀效果圖
占地:91平方米左右
180平方別墅房屋設計圖,外觀效果圖美觀
占地:180平方米
時尚四開間二層農村別墅,經典大氣,引領建房新潮流!
占地:159.6平方米
簡約大氣農村自建三層別墅設計圖,布局合理,很適合農村人自建
占地:139.471平方米
簡單農村自建二層樓房設計圖,南北通透
占地:140平方米
好看的三層樓別墅圖片及全套建筑施工設計圖紙
占地:多種戶型
農村三層半自建房子效果圖及設計圖,戶型占地90平方米左右
占地:92.17平方米
地中海風格二層別墅房屋設計圖,帶外觀效果圖
占地:150平方米
三層農村自建房別墅設計圖紙,大廳中空,外觀高端大氣
占地:230平方米
新中式農村50萬三層別墅款式圖,占地面積160平米左右
占地:150平方米
20萬農村一層半小洋樓圖,自建別墅設計方案推薦
占地:155平方米
50萬以內的歐式三層房屋別墅施工設計圖紙及效果圖
占地:169平方米
農村四間三層豪華別墅設計方案圖,造型輕奢雅致
占地:200平方米
175平方米二層別墅設計CAD圖紙及效果圖大全,中式風格
占地:175平方米
簡單農村二層平屋頂房屋設計圖,外觀簡潔、大方
占地:200平方米
開間12米的三層簡歐別墅設計圖,農村建房布局實用住的舒服
占地:108.15平方米
適合農村自建四合院圖片,中式二層四合院別墅設計施工圖紙
占地:232平方米
12x9米自建一層小別墅設計圖,占地不大造價低,簡單舒適人人夸
占地:108.36平方米
帶配房的二層鄉村歐式別墅設計圖,尺寸15.84×13.84米
占地:149.19平方米
130平方米別墅設計圖紙(含外觀效果圖,)三層別墅設計方案
占地:135平方米
推薦:10套新農村自建房設計圖,2026年最新設計
閱讀次數:4825737次
100套鄉村別墅圖片大全,2026年最新設計
閱讀次數:2492203次
6款農村蓋一層平房的設計圖,10萬元就能建起來
閱讀次數:1852637次
這11個一層農村自建房別墅火爆了朋友圈!我最喜歡戶型十!你呢
閱讀次數:750268次
農村6萬元建一層小別墅圖,你敢相信嗎
閱讀次數:567686次
農村5萬塊就能自建房,6套普通房子設計圖分享,你沒看錯!
閱讀次數:419410次
8套農村漂亮三間平房圖片,非常適合在農村修建!
閱讀次數:411197次
農村自建房化糞池怎么做?附方案及施工過程
閱讀次數:391783次
農村一層三間平房設計圖,告別土氣養老房,讓人忍不住點贊
閱讀次數:350581次
新農村二層樓房圖片造價12萬,挑一套回家建房吧!
閱讀次數:349126次
