
|
人,要詩意的地棲居。一個房子即使隨便簡單的刷白也能居住,但生活是自己的,要講究,不將就。人不必要為了迎合別人的眼光而委屈求全。就像我們農村建房子一樣,很多網友都覺得這個或那個別墅戶型不適合在農村建筑,其實有什么合不合適之說呢,只要合適自己的需求和喜好就夠了,別人怎么看待不重要,最重要是自己住得舒服就行。 今天樂美宅給大家帶來幾款自建房設計圖,戶型漂亮,空間布局合理。 【戶型1】 戶型基本信息 層數:三層 結構形式:磚混結構 主體造價:35-40萬 開間:11米 進深:12米 占地面積:132平方米 總建筑面積:415平方米 效果圖:
別墅左右對稱,西面和南面都設有室外大門,出行更方便。二三層中間都有陽臺,高聳的門柱,氣派且具有立體感。室內每層樓都設有客廳、廚房和餐廳,每層一戶,二層和三層室內布局一致,非常適合兩兄弟和父母生活,一樓父母居住,二三樓則為兄弟兩家。 平面圖展示
一層平面圖 一層:玄關、客廳、餐廳、廚房、樓梯間、2臥室、棋牌室、衛生間
二層平面圖 二層:客廳、餐廳、廚房、主臥(帶內衛)、2臥室、衛生間、陽臺
三層平面圖 三層:客廳、餐廳、廚房、主臥(帶內衛)、2臥室、衛生間、陽臺 【戶型2】 圖紙介紹 層數:三層 結構形式:框架結構 主體造價:30-38萬 開間:12.6米 進深:12.6米 占地面積:142.06平方米 總建筑面積:353.47平方米 效果圖:
該戶型方正設計,符合農村建房的標準,屋頂錯落有致,四面采光。一層錯層設計,分區明確,前半部分為客廳、車庫,后半部分則為廚房和餐廳等,干濕處理分明,易于打掃清潔。二樓上的挑空客廳搭配旋轉樓梯,非常的大氣美觀。主臥設有書房、內衛和衣帽間,主人可以享受高品質的生活。三樓上設有陽光房,可以打造一個陽光花房。
室內布局圖:
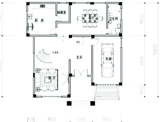
一層平面圖 一層:玄關、客廳、車庫、餐廳、廚房、儲藏室、衛生間
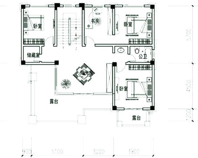
二層平面圖 二層:客廳上空、臥室(帶書房、衣帽間、內衛)、2臥室、衛生間
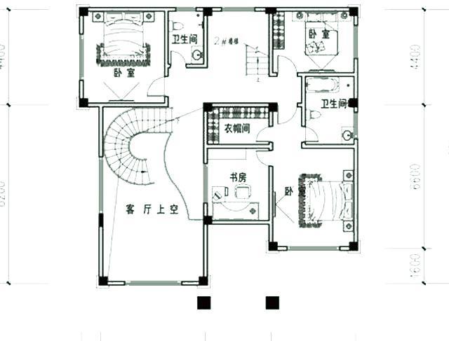
三層平面圖 三層:陽光房、臥室(帶小露臺)、臥室(帶書房)、臥室、儲藏室、衛生間、露臺 【戶型3】 第二款
圖紙屬性 開間:12.8米 進深:9.9米 首層占地面積:127㎡ 總建筑面積:352㎡ 層數:三層 結構類型:磚混結構 主體造價:32萬 平面布局圖:
一層平面圖 一層:大廳、家庭影院、父母房(帶衛生間)、廚房、餐廳、公衛
二層平面圖 二層:客廳(帶陽臺)、臥室(帶衛生間)、臥室×3、公衛
三層平面圖 三層:客廳(帶小露臺)、休閑室、2臥室、衛生間、2露臺 圖紙之家-專注農村別墅/自建房設計18年,集合國內200余位經驗豐富的設計師,被評為口碑最好的農村建筑設計公司! |

新農村自建二層樓房戶型設計圖,簡單大氣,外觀漂亮精致
占地:多種戶型
農村兄弟倆雙拼別墅房屋設計圖,外觀質樸
占地:195平方米
農村一層帶小院房屋設計圖,帶院子一層自建房別墅戶型圖
占地:161.16平方米
110平方米二層自建小別墅設計CAD施工圖紙帶效果圖,12x13米
占地:110平方米
超實用超現代兩層自建小樓圖,純粹極簡風格
占地:184平方米左右
180平方米漂亮大氣三層雙拼別墅設計圖,自建房圖片
占地:186平方米
村里三層新中式風自建別墅圖,對稱設計,氣派好看
占地:135.3平方米
160平米三層別墅設計圖,功能齊全,外觀漂亮,適合和父母同住
占地:160平方米
農村平屋頂三層現代風別墅戶型圖,簡約實用經濟顏值高
占地:111.9平方米
偏徽派風格民居三層農村住宅設計圖,白墻黛瓦的古雅簡潔
占地:101.01平方米
七字形農村自建房二層設計圖,“L”型別墅設計,簡約時尚!
占地:209平米左右
帶小院新農村房屋設計圖紙,三層別墅推薦
占地:115平方米
145平方米新農村二層別墅設計效果圖及施工圖,12.6米x11.4米
占地:147平方米
120平方米三層歐式別墅設計圖,進門就是旋轉樓梯
占地:119.76平方米
帶開放式車庫二層農村自建別墅設計方案,造價僅15萬
占地:89.412平方米
170平方米新農村現代樓中樓三層別墅設計施工圖紙及效果圖
占地:170平方米
農村三層雙拼房屋建筑施工設計圖紙,帶車庫
占地:180平方米
漂亮的農村三層小樓房設計圖,簡單大氣,帶車庫
占地:150平方米
100平方米左右新農村二層房屋設計建筑CAD圖紙帶外觀效果圖
占地:多戶型可選
二層半大客廳復式別墅房屋設計圖,客廳寬闊明亮
占地:125平方米
推薦:10套新農村自建房設計圖,2026年最新設計
閱讀次數:4825737次
100套鄉村別墅圖片大全,2026年最新設計
閱讀次數:2492203次
6款農村蓋一層平房的設計圖,10萬元就能建起來
閱讀次數:1852637次
這11個一層農村自建房別墅火爆了朋友圈!我最喜歡戶型十!你呢
閱讀次數:750268次
農村6萬元建一層小別墅圖,你敢相信嗎
閱讀次數:567686次
農村5萬塊就能自建房,6套普通房子設計圖分享,你沒看錯!
閱讀次數:419410次
8套農村漂亮三間平房圖片,非常適合在農村修建!
閱讀次數:411197次
農村自建房化糞池怎么做?附方案及施工過程
閱讀次數:391783次
農村一層三間平房設計圖,告別土氣養老房,讓人忍不住點贊
閱讀次數:350581次
新農村二層樓房圖片造價12萬,挑一套回家建房吧!
閱讀次數:349126次
