
|
中國自古地大物博,建筑藝術源遠流長。因其具有的包容性,現在我們在國內就能看到各種各樣的別墅建筑風格。你喜歡哪種風格的別墅呢? 美式別墅:注重建筑細節,擁有一定的古典情懷,外觀簡潔大方。
現代風別墅:注重功能,更加簡約。強調功能為設計的核心和目的,講究設計的科學性,形式上提倡非裝飾的簡單幾何造型,在具體設計上重視空間的考慮。
中式合院:主張“天人合一、渾然一體”,典型特征是外觀規矩,中軸對稱,起居十分便捷,同時具有很強的私密性。
歐式風格:強調以華麗的裝飾、濃烈的色彩、精美的造型達到雍容華貴的裝飾效果。羅馬柱、雕塑、尖塔、八角房這些都是歐式建筑的典型標志。
日式別墅:通常會采用清晰的裝飾線條,使得整個空間有較強的立體感。
圖紙之家-專注農村別墅/自建房設計18年,集合國內200余位經驗豐富的設計師,被評為口碑最好的農村建筑設計公司! |

最新高端四層別墅外觀效果圖及全套設計圖,真土豪就這樣建
占地:174.08平方米
農村二層半兄弟共建房別墅設計圖,復式戶型帶車庫,面寬24米
占地:312平方米左右
鄉下三層大氣房子設計圖,外觀挺高大上的,主體29萬多
占地:132.48平方米
農村二層L戶型農村別墅!設計圖簡約時尚又大氣,住著超舒適
占地:170.55平方米
大氣的三層鄉村別墅設計方案圖,小面積建出豪宅感
占地:104.9平方米
150平方米的新農村自建三層小別墅設計施工圖紙及效果圖
占地:150平方米
村里三層新中式風自建別墅圖,對稱設計,氣派好看
占地:135.3平方米
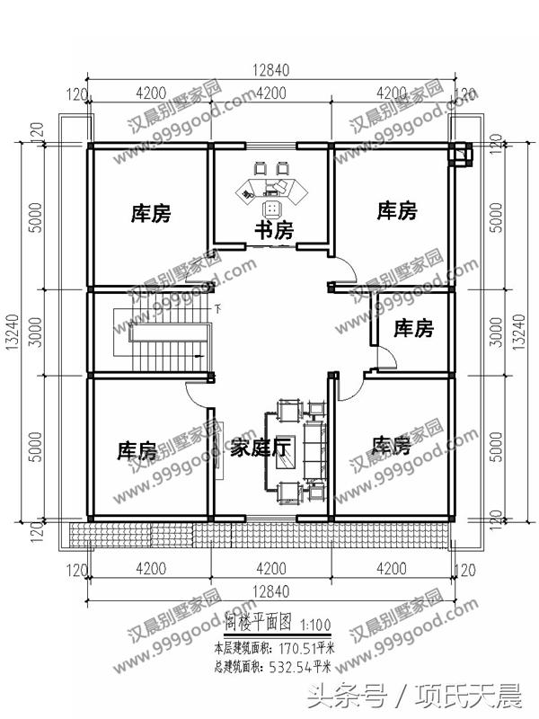
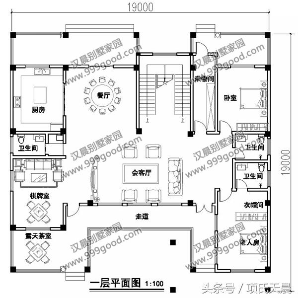
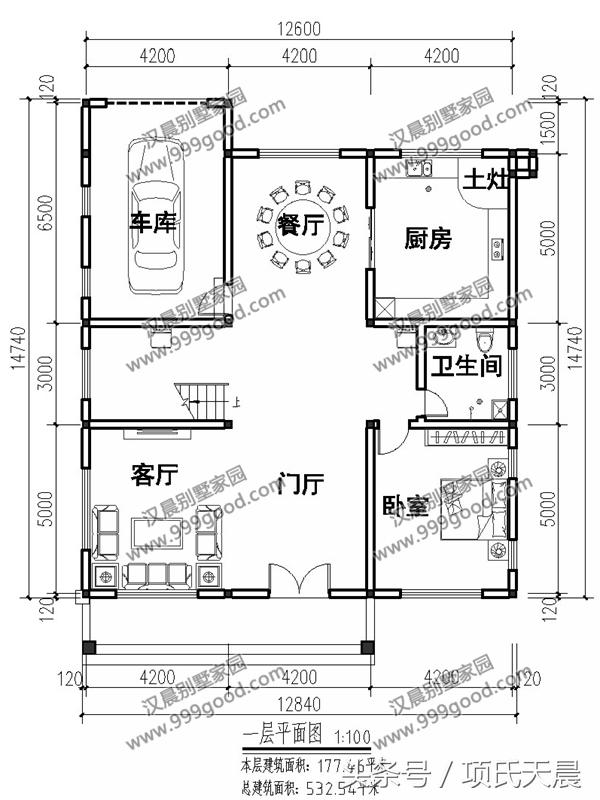
17X12米三層雙拼別墅自建房設計圖,歐式風格,戶型方正
占地:190平方米
農村三層私人住宅設計圖紙及效果圖,帶車庫,帶露臺
占地:150平方米
簡歐漂亮農村二層別墅設計方案圖紙,12米乘9米
占地:多戶型可選
農村高端中式三層雙拼全套房屋施工設計圖,效果圖很大氣
占地:340平方米
農村三間四層樓房設計圖,農村輕奢型四層別墅
占地:160平方米
鄉村一層帶閣樓歐式小別墅,“L”型七字設計戶型
占地:194.218平方米
仿古建筑中式祠堂設計圖紙及外觀效果圖
占地:546平方米
帶地下室的農村三層雙拼別墅設計圖,復式戶型,面寬23米
占地:261.6平方米左右
新農村自建二層小樓圖,時尚大方,外型精美,室內布局也很贊
占地:137平方米
30萬左右的新農村自建三層別墅施工設計圖紙及效果圖
占地:148平方米
帶車庫農村二層雙拼別墅設計圖,外觀現代
占地:235平方米
適合7字型宅基地蓋的一層別墅,中式風格設計
占地:163平方米
130平方米農村兩層別墅圖紙及效果圖12X11米
占地:133平方米
推薦:10套新農村自建房設計圖,2026年最新設計
閱讀次數:4825737次
100套鄉村別墅圖片大全,2026年最新設計
閱讀次數:2492203次
6款農村蓋一層平房的設計圖,10萬元就能建起來
閱讀次數:1852637次
這11個一層農村自建房別墅火爆了朋友圈!我最喜歡戶型十!你呢
閱讀次數:750268次
農村6萬元建一層小別墅圖,你敢相信嗎
閱讀次數:567686次
農村5萬塊就能自建房,6套普通房子設計圖分享,你沒看錯!
閱讀次數:419410次
8套農村漂亮三間平房圖片,非常適合在農村修建!
閱讀次數:411197次
農村自建房化糞池怎么做?附方案及施工過程
閱讀次數:391783次
農村一層三間平房設計圖,告別土氣養老房,讓人忍不住點贊
閱讀次數:350581次
新農村二層樓房圖片造價12萬,挑一套回家建房吧!
閱讀次數:349126次
