
|
現在我國的進程真的是很快,大家的生活也是朝著好的走向進步,因為大家現在的生活真的是以前想象不出來的,而且發展快的不是只有城市,還有農村,現在很多地方也都是已經蓋起來了小樓,雖然不能說每個家庭都很富裕,最起碼最基本的一些生活保障是不用愁了。 發展的快,人們就有更高的追求,想利用少量的錢建出一棟直逼百萬豪宅的別墅,也是農村現在人的愿望。生活好了,生活質量也得上去,下面就介紹3款不同風格的別墅,造價不過20萬,卻不亞于百萬別墅。 戶型一
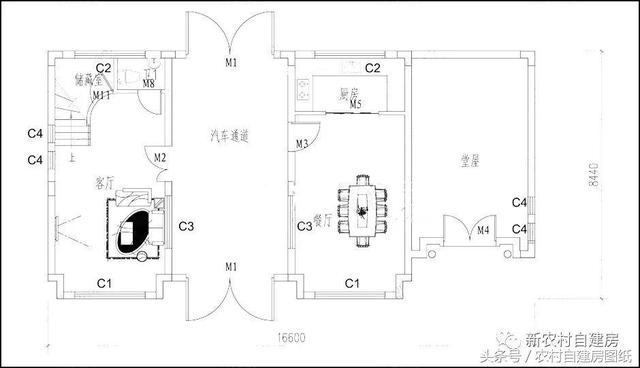
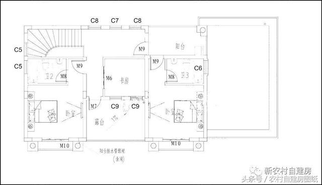
樓層:兩層 開間:16.6米 進深:8.44米 占地面積:126.06平方米 建筑面積:227.98平方米 主體造價:19萬左右 結構形式:磚混 建筑風格:歐式
尊貴的歐式風格建筑,花瓶式石欄桿設計,并不在乎占地面積大小,追求色彩和內在聯系,讓人感到有很大的活動空間。這款別墅的特點,還在于它有一個可供車子通行的通道,擁有這款房屋設計,就沒有車庫太小導致的倒車煩惱了,考慮到農村大多數人家都會設置一間堂屋,所以這款別墅單獨設計了一個寬敞的堂屋,別墅以大窗設計,增加采光,二樓設計有書房和露臺,方便在閑暇時間休息,臥室都設有獨立衛生間,更加人性化,也會讓人更加舒適。 戶型二
樓層:兩層 開間:11米 進深:11.4米 占地面積:117.78平方米 建筑面積:220.44平方米 主體造價:18萬左右 結構形式:磚混 建筑風格:美式
簡約的美式風格建筑,具有注重建筑細節、有古典情懷、外觀簡潔大方,融合多種風情于一體的特點。融合了自由、活潑、善于創新等等一些人文元素,文雅精巧不乏舒適,功能的空間劃分和位置布局體現美式的嚴謹,復式客廳設計,給人以寬闊安逸。 戶型三
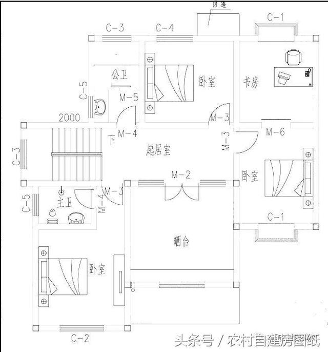
樓層:兩層 開間:12.1米 進深:12米 占地面積:126.08平方米 建筑面積:213.53平方米 主體造價:17萬左右 結構形式:磚混 建筑風格:中式
這套別墅設計風格屬于現代中式設計,它傳承了中華傳統建筑的精髓,保持著傳統建筑融古雅、簡潔、富麗于一體的獨特藝術風格,以大自然為皈依,含隱蓄秀,奧僻典雅。簡約但不是典雅的外墻設計,保留了經典,又帶有創新, 設計有后院以及倉庫,以及4間臥室,滿足你的一切要求。 圖紙之家-專注農村別墅/自建房設計18年,集合國內200余位經驗豐富的設計師,被評為口碑最好的農村建筑設計公司! |

農村三層帶地下室小樓房設計圖,客廳中空,帶書房,旋轉樓梯
占地:130平方米
農村4間2層樓房設計圖,帶車庫,外觀時尚,帶屋頂花園
占地:210平方米
簡歐漂亮農村二層別墅設計方案圖紙,12米乘9米
占地:多戶型可選
100平方米實用二層半小別墅設計圖紙(帶閣樓層),住著安逸
占地:100平方米左右
175平大客廳三層別墅房屋設計圖,含外觀造型現代,美觀
占地:175平方米
農村三間三層半別墅設計圖,舒適寬敞時尚經濟,居住生活方便舒
占地:168.29平方米
戶型獨特的、二層臥室挑高的別墅房屋設計圖,外觀簡歐風格
占地:250平方米
三層平屋頂別墅房屋設計圖及外觀效果圖
占地:150平方米
中式二層三合院設計圖紙含外觀效果圖片,大氣又實用
占地:216.04平方米
新農村實用三層帶露臺房屋設計圖紙,占地110平方米
占地:109平方米
300平大戶型豪華三層別墅設計圖,帶總統套房
占地:300平方米
兩層農村自建二層樓設計圖紙,面寬12米左右
占地:131.2平方米
新款私人定制四層歐式獨棟住宅別墅設計圖紙,含外觀效果圖
占地:138平方米左右
高端豪華三層別墅住宅設計方案圖,歐式外觀風格
占地:170平方米
110平方米新農村三層房屋設計圖紙,含效果圖,帶車庫
占地:113平方米
農村二層復式小別墅設計,進深12米,農村建房最受歡迎的款
占地:149.096 平方
農村小戶型三層別墅設計圖,平屋頂,造價20萬左右
占地:80平方米
鄉下建房一層戶型圖及全套圖紙,養老房,還是一層好
占地:210平方米
一層半中式合院別墅設計圖,帶配房,有庭有院有品位
占地:135平方米左右
兄弟三層雙拼房屋設計圖,帶效果圖,戶型好
占地:256平方米
推薦:10套新農村自建房設計圖,2026年最新設計
閱讀次數:4825737次
100套鄉村別墅圖片大全,2026年最新設計
閱讀次數:2492203次
6款農村蓋一層平房的設計圖,10萬元就能建起來
閱讀次數:1852637次
這11個一層農村自建房別墅火爆了朋友圈!我最喜歡戶型十!你呢
閱讀次數:750268次
農村6萬元建一層小別墅圖,你敢相信嗎
閱讀次數:567686次
農村5萬塊就能自建房,6套普通房子設計圖分享,你沒看錯!
閱讀次數:419410次
8套農村漂亮三間平房圖片,非常適合在農村修建!
閱讀次數:411197次
農村自建房化糞池怎么做?附方案及施工過程
閱讀次數:391783次
農村一層三間平房設計圖,告別土氣養老房,讓人忍不住點贊
閱讀次數:350581次
新農村二層樓房圖片造價12萬,挑一套回家建房吧!
閱讀次數:349126次
