
|
超簡潔現代風格別墅來了,純白立面,干凈利落,簡單即是美!立面材料采用的是陶板,陶板是當今建筑界最新型的幕墻材料,具有環bao、節neng、防潮、隔音、透氣、色澤豐富,持久如新等優點。戶型方正實用,多朝向多點露臺設置,滿足不同房間的功能需要!屋面設計也是亮點所在,從外面看是平屋面,實際是小角度坡屋面,外圍女兒墻高度高過屋脊,坡屋面有組織排水,屋檐檐溝處穿過女兒墻設置,經雨水管落下,既美觀又實用! 項目基本信息建筑面積:總建筑面積383平方米,一層建筑面積為131.7平方米,二層建筑面積為136.8平方米,三層建筑面積114.5平方米。 建筑風格:現代風格 建筑結構:框架結構 參考造價:主體42萬(未含內外裝xiu及其他費用) 設計機構:杭州田口建筑設計工作室 建 筑 師:戴工、時工 結 構 師:陳工
整體建筑效果鳥瞰
西南角度透視 戶型平面
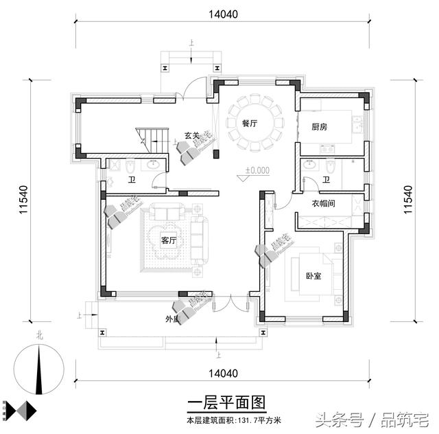
▲一層平面功能:北向入戶,進門后設有玄關,玄關西側為樓梯間,東側是餐廳,廚房緊鄰餐廳設置,東南角設臥室套房,南向兩開間大客廳,開門通向南面庭院,客廳外設連廊。
▲二層平面功能:兩間臥室套房、書房、露臺。
▲三層平面功能:三間臥室、一間茶室、南北向各一大露臺。 建筑立面
南立面圖
北立面圖
東立面圖
西立面圖
剖面圖 圖紙之家-專注農村別墅/自建房設計18年,集合國內200余位經驗豐富的設計師,被評為口碑最好的農村建筑設計公司! |
西南角度鳥瞰
東北角度鳥瞰
南立面人視圖
北立面人視圖
西南角度透視
東南角度透視
東北角度透視
西北角度透視
南立面遠景

一層半中式合院別墅設計圖,帶配房,有庭有院有品位
占地:135平方米左右
100平方米新農村住宅二層小別墅設計CAD圖紙及效果圖,10x10米
占地:96平方米
帶堂屋設計一層5間平房新農村自建別墅效果圖全套施工圖
占地:198.41平方米
徽派120平新農村住宅設計方案,帶外觀效果圖
占地:120平方米
7字型一層半農村別墅設計圖,美觀舒適,買了別墅的都會羨慕你
占地:229.14平方米
130平四間二層小洋樓設計圖,含外觀圖片
占地:130平方米
農村二層樓房設計圖紙,含全套設計方案(施工圖+效果圖)
占地:98平方米
村里三層新中式風自建別墅圖,對稱設計,氣派好看
占地:135.3平方米
省錢美觀一層自建房子設計圖,父母養老住很適合
占地:117平方米
120平方房子設計圖,農村120平建房設計圖推薦
占地:122平方米
新款的農村自建房子中式二層四合院別墅設計圖,占地300平左右
占地:304平方米
簡歐式三層小別墅設計圖,帶地下室,客廳中空,占地150平米
占地:150平方米
12.8x10米二層自建房別墅設計圖,大氣美觀實用,建造無憂
占地:128平方米
80平方米二層房屋設計圖,造價10萬左右
占地:80平方米
最新款二層半別墅圖片,占地115平米左右,帶地下室,帶露臺
占地:115平方米
新農村二層客廳挑高樓房設計圖,外觀歐式風格
占地:178平方米
私人二層歐式別墅建筑設計圖(效果圖+全套別墅設計方案)
占地:144平方米
120平米二層別墅樓設計圖,簡約省錢也能建的漂亮
占地:121.74平方米
三層新農村自建小型別墅設計圖及效果圖,三間三層樓房戶型
占地:114平方米
17X12米三層雙拼別墅自建房設計圖,歐式風格,戶型方正
占地:190平方米
推薦:10套新農村自建房設計圖,2026年最新設計
閱讀次數:4825737次
100套鄉村別墅圖片大全,2026年最新設計
閱讀次數:2492203次
6款農村蓋一層平房的設計圖,10萬元就能建起來
閱讀次數:1852637次
這11個一層農村自建房別墅火爆了朋友圈!我最喜歡戶型十!你呢
閱讀次數:750268次
農村6萬元建一層小別墅圖,你敢相信嗎
閱讀次數:567686次
農村5萬塊就能自建房,6套普通房子設計圖分享,你沒看錯!
閱讀次數:419410次
8套農村漂亮三間平房圖片,非常適合在農村修建!
閱讀次數:411197次
農村自建房化糞池怎么做?附方案及施工過程
閱讀次數:391783次
農村一層三間平房設計圖,告別土氣養老房,讓人忍不住點贊
閱讀次數:350581次
新農村二層樓房圖片造價12萬,挑一套回家建房吧!
閱讀次數:349126次
