
|
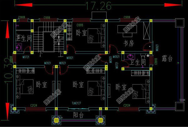
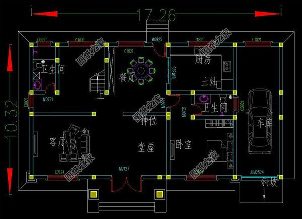
現在農村生活越來越好了,現在建房大部分都不是單單只為了居住,而是賦予了更多的作用和價值體現,為了追求美,各種設計精巧的鄉村別墅一棟棟拔地而起,各種構思精妙的農村小樓一幢幢映入眼簾,今天就推薦四款農村165平三層別墅設計圖以及戶型圖,一起來看看吧! 第一款:南方北方新農村三層房屋設計圖以及戶型圖,經典的歐式外觀![]() ![]() ![]() 端莊明朗。完美的點線,精益求精的細節處理,帶給家人不盡的舒服觸感,沉穩大氣的棕色外立面點綴精致外墻浮雕,在農村清淡樸素的鄉村背景中脫穎而出,室內布局科學合理,同時兼顧鄉村傳統居住需求 占地面積:12.82m*12.9m,164平方米左右; 建筑層高:三層; 建筑高度:13.50米(含屋頂); 設計功能: 一層戶型:客廳、廚房、餐廳、棋牌室、洗衣房、臥室(帶衛生間)x2、衛生間; 二層戶型:客廳、臥室x3、臥室(帶衛生間)x2、陽臺; 三層戶型:健身區、臥室x3、臥室(帶衛生間)、衛生間、露臺 ![]() ![]() ![]() 第二款:高端大氣層歐式三層別墅設計圖以及戶型圖,外型美觀時尚![]() ![]() ![]() 比較實用的經濟適用型農村別墅,面積不大,主體造價36萬左右,室內功能齊全,空間合理利用,屋頂的露臺,晾曬休閑觀景,是農村生活最享受的空間 占地面積:14m*11.76m,168平方米左右; 建筑層高:三層; 建筑高度:13.66米(含屋頂); 設計功能: 一層戶型:堂屋、客廳、餐廳、廚房、臥室(帶衛生間)、臥室、衛生間; 二層戶型:客廳上空、起居室、親子套房(可以做衣帽間)、臥室x3、衛生間x2、陽臺; 三層戶型:親子套房(可以做衣帽間)、休閑娛樂區、臥室x2、衛生間x2、露臺涼亭 ![]() ![]() ![]() 第三款:歐式復式型三層別墅設計圖以及戶型圖,簡單漂亮![]() ![]() ![]() 一二層外墻采用個性化瓷磚進行裝飾,整體外觀造型格調高雅;精美的落地窗搭配挑空客廳,使客廳內更加的寬敞明亮;二層內置的陽臺是住戶一個非常舒適休閑的場所;三樓上的大露臺正是符合農村生活的需要,每到農忙季節,住戶還可以用于晾曬農作物等;室內的功能布局寬敞合理,戶型設計更是于休閑娛樂與日常生活融合在一起的,是一套不錯的農村自建房圖紙。 占地面積:13m*13.8m,164平方米左右; 建筑層高:三層; 建筑高度:13.48米(含屋頂); 設計功能: 一層戶型:門廳、大廳、客廳、餐廳、廚房、洗衣房、臥室(帶衛生間)、衛生間; 二層戶型:客廳上空、客廳、臥室(帶衛生間)x3、衛生間、陽臺; 三層戶型:休息室、KTV、臥室(帶衛生間)x3、衛生間、露臺 ![]() ![]() ![]() 第四款:帶車庫的三層別墅房屋設計圖以及戶型圖,氣派有檔次![]() 帶堂屋的戶型全套施工圖,農村生活太香!外觀造型簡潔大方,色彩明快,采用歐式風格一貫的精致線條,外墻乳白色真石漆和深褐色面磚搭配修飾,羅馬柱造型變幻,豪華氣派,大面積的開窗設計,讓別墅美觀的同時,居住舒適度也毋庸置疑,加上紅色的坡屋頂和屋檐,別墅頓顯生動活力。功能分區合理,房間尺度設計適宜,采光通風良好,富有時代氣息。 占地面積:17.26m*10.32m,163.8平方米左右; 建筑層高:三層; 建筑高度:12.831米(含屋頂); 設計功能: 一層戶型:堂屋、神位、客廳、餐廳、廚房、臥室(帶衛生間)、衛生間、車庫; 二層戶型:書房、臥室x3、臥室(帶衛生間)、衛生間、陽臺、露臺; 三層戶型:健身房、臥室、臥室(帶衛生間)、衛生間、陽臺、露臺x2 ![]() ![]() ![]() 以上就是小編推薦的165平米的三層別墅設計圖以及戶型圖,喜歡的給爸媽看看,回老家建一棟!
圖紙之家-專注農村別墅/自建房設計18年,集合國內200余位經驗豐富的設計師,被評為口碑最好的農村建筑設計公司! |

10米×13米最好看的農村三層樓房圖,客廳中空
占地:124平方米
最新款農村三層自建房戶型設計圖及外觀圖片照片,鄉村蓋房精選
占地:112.56平方米
農村120平米兩層樓的房子設計圖,外觀新穎
占地:120平方米
三層歐式豪華別墅設計方案,全套圖紙+效果圖
占地:168平方米
100平簡單三層房屋設計圖紙,新農村自建推薦圖紙
占地:100平方米
農村帶車庫兩層歐式農村別墅設計圖紙,占地220平方米左右
占地:221平方米
別致美觀的簡歐二層別墅房屋設計圖,含外觀效果圖
占地:145平方米
8萬元二層農村房子圖片及設計圖,簡易二層小樓,占地50平米
占地:50平方米
帶架空層車庫/地下室自建一層別墅設計圖,隔潮又能儲物
占地:91.32平方米
農村自建四層百萬豪宅別墅設計圖,客廳中空
占地:170平方米
帶車庫四層別墅外觀效果圖及設計圖紙,戶型方正通透
占地:115平方米
新農村二層房屋建筑施工圖紙,廚房獨立在配房
占地:107平方米
被包工頭夸爆的二層別墅戶型!建好未來幾年必火
占地:189.98平方米
12x12農村三層別墅設計圖,自建房屋推薦戶型
占地:148平方米
時尚現代的二層農村別墅設計圖,年輕人建房的不二之選
占地:131.76平方米
80-90平米自建樓房設計圖,農村小別墅經典戶型圖
占地:86平方米
占地80平四層平頂別墅設計圖,現代風房子效果圖
占地:80平方米
120平方米新農村房屋設計圖紙,新中式效果圖,3層住宅設計方案
占地:120平方米
兄弟四間三層雙拼別墅設計圖,造價40萬左右
占地:210平方米
美式二層別墅設計圖,含外觀效果圖,造型精美
占地:144平方米
推薦:10套新農村自建房設計圖,2026年最新設計
閱讀次數:4825737次
100套鄉村別墅圖片大全,2026年最新設計
閱讀次數:2492203次
6款農村蓋一層平房的設計圖,10萬元就能建起來
閱讀次數:1852637次
這11個一層農村自建房別墅火爆了朋友圈!我最喜歡戶型十!你呢
閱讀次數:750268次
農村6萬元建一層小別墅圖,你敢相信嗎
閱讀次數:567686次
農村5萬塊就能自建房,6套普通房子設計圖分享,你沒看錯!
閱讀次數:419410次
8套農村漂亮三間平房圖片,非常適合在農村修建!
閱讀次數:411197次
農村自建房化糞池怎么做?附方案及施工過程
閱讀次數:391783次
農村一層三間平房設計圖,告別土氣養老房,讓人忍不住點贊
閱讀次數:350581次
新農村二層樓房圖片造價12萬,挑一套回家建房吧!
閱讀次數:349126次
