
|
對于出身普通農村家庭的人來說,在城里打拼壓力真的很大,除了吃喝,在住房上也是一筆大開銷,有的人在城里掙了錢,會考慮買房,但仍需要背負每個月償還貸款的壓力,不過也有的人掙了錢,選擇回農村建房子,這也是不錯的選擇,下面給大家分享2款主體造價30萬農村二層房屋設計圖。
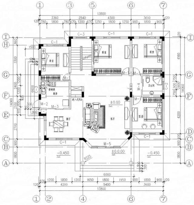
效果圖 【戶型1】 本套農村二層房屋設計圖開間14.84米,進深12.65,一層建筑面積大概175平方米,建筑高度10.53米(含屋頂),主體造價30萬,帶有樓閣,還有陽臺、露臺、飄窗、臥室套間等特色功能。采用坡屋頂設計,外觀色彩鮮艷溫暖。 戶型1建筑平面圖展示
一層平面圖 一層:車庫、門廳(可設神位)、客廳、廚房、餐廳、主臥(帶衛生間)、次臥、公衛
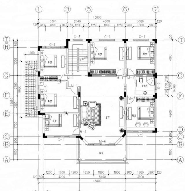
二層平面圖 二層:起居室、娛樂室(帶來露臺)、主臥(帶陽臺、主衛、書房)、3次臥 【戶型2】
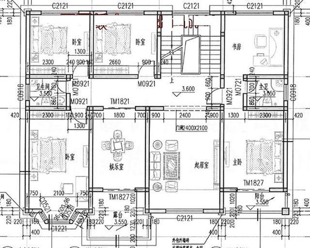
效果圖 本套農村二層房屋設計圖開間進深 13.8×14.6米,采用框架結構,主體預算大概30萬。一層設有2廳4臥1衛,二層設有1廳6臥1衛。 戶型2建筑平面圖展示
一層平面圖 一層:客廳、餐廳、廚房、臥室*3、客房、衛生間
二層平面圖 二層:客廳、臥室*6、衛生間 圖紙之家-專注農村別墅/自建房設計18年,集合國內200余位經驗豐富的設計師,被評為口碑最好的農村建筑設計公司! |

農村小別墅設計圖二層,占地不大顏值高,最適合農村建造。
占地:108.66平方米
新中式農村自建二層別墅設計圖,占地160平米左右,客廳中空
占地:160平方米
經典一層帶閣樓三合院別墅設計圖,18米乘9.5米
占地:118.63平方米
兄弟四間三層雙拼別墅設計圖,造價40萬左右
占地:210平方米
高端歐式四層別墅房屋施工圖紙及效果圖,圓弧大窗
占地:170平方米
開間12米的三層簡歐別墅設計圖,農村建房布局實用住的舒服
占地:108.15平方米
二層帶地下室樓房設計方案,效果圖+全套施工圖
占地:160平方米
農村二層樓建房造型圖及全套施工圖紙,占地110平米左右,帶地下
占地:110平方米
農村60萬別墅款式設計圖及外觀效果圖,客廳中空
占地:150平方米
11x9三層別墅房屋設計圖,含效果圖片
占地:97平方米
農村三層半別墅設計圖及外觀效果圖,三層半樓房設計方案推薦
占地:100平方米
12.8x10米二層自建房別墅設計圖,大氣美觀實用,建造無憂
占地:128平方米
15×10米農村二層四合院自建房戶型圖,小型四合院設計圖
占地:150平方米
經典四合院別墅設計圖,復式挑空客廳讓四合院更高端
占地:175平方米左右
堂屋共用的三層雙拼別墅設計圖,總占地面積245平米
占地:245平方米
農村中式二層雙拼四合院別墅設計圖,兄弟父母三戶典雅大氣
占地:360平方米
新徽派農村三層小別墅設計圖,白墻黛瓦中式風,12米乘11米
占地:115.46平方米
簡歐式三層小別墅設計圖,帶地下室,客廳中空,占地150平米
占地:150平方米
新農村復試兩層半樓房設計圖,帶大露臺,簡單經濟實用大氣
占地:190平方米
150平米農村兩層樓房設計圖,簡單大氣時尚
占地:150平方米
推薦:10套新農村自建房設計圖,2026年最新設計
閱讀次數:4825737次
100套鄉村別墅圖片大全,2026年最新設計
閱讀次數:2492203次
6款農村蓋一層平房的設計圖,10萬元就能建起來
閱讀次數:1852637次
這11個一層農村自建房別墅火爆了朋友圈!我最喜歡戶型十!你呢
閱讀次數:750268次
農村6萬元建一層小別墅圖,你敢相信嗎
閱讀次數:567686次
農村5萬塊就能自建房,6套普通房子設計圖分享,你沒看錯!
閱讀次數:419410次
8套農村漂亮三間平房圖片,非常適合在農村修建!
閱讀次數:411197次
農村自建房化糞池怎么做?附方案及施工過程
閱讀次數:391783次
農村一層三間平房設計圖,告別土氣養老房,讓人忍不住點贊
閱讀次數:350581次
新農村二層樓房圖片造價12萬,挑一套回家建房吧!
閱讀次數:349126次
