
|
一般農村的宅基地,大多都是100平左右,想要建棟好房子就得物盡其用,那么今天的這10套自建房戶型推薦,就十分有必要仔細看看了。不管是你想要二層的還是三層,統統都有,還發愁建房找不到好的戶型嗎? 第一套: 經典的歐式雙層別墅,外觀靚麗養眼,造型簡潔流暢。這套戶型占地11x10.5米,占地面積102平方米,建筑面積達205平方米,共設4室3廳4衛1廚1陽臺。
平面布局圖: 一層設活動室,提高業主居家生活的舒適度和品質;二層多臥室設計,其中1間可改書房,非常實用。
第二套: 別墅采用西式的田園風格建造,素雅而溫馨。占地10.8x8.8米,占地面積99平方米,建筑面積達171.03平方米,共設3室 3廳3衛 1廚 1陽臺。
平面布局圖:
一層設有獨立的淋浴區,干濕分離,潔凈由衛生;二層設有臥室套間,十分貼心實用。 第三套: 現代元素十足,外觀非常時尚,開放的大露臺設計,方便晾曬。這套戶型占地10.2x9.9米,占地面積106平方米,建筑面積206平米,共設4室3廳3衛1廚。
平面布局圖: 一層臥室可做老人房,方便家里的老人居住;二層設有家庭廳和臥室,豐富業主的娛樂休閑活動。
第四套: 常用的紅磚結構,加上經典的西式元素,質樸又大氣。該戶型開間9.6進深11.1米,占地104平方米,建筑面積達209平方米,共設5室3廳5衛1廚1陽臺還設計有屋頂大露臺接近自然。
平面布局圖: 一層特別設計的下沉式客廳,時尚又美觀;二層次臥帶學習室,非常適合家里小孩居住。
第五套: 意式經典戶型,沉穩溫暖的黃色,搭配肌理分明的文化石,高大上的外形又有種實在的鄉土氣息,非常接地氣。占地10.76x10米,占地102平方米,建筑面積達192平方米,共設5室2廳1衛1廚1陽臺1露臺。
平面布局圖: 客廳采用落地窗,三面采光;二層設3間臥室,大露臺為日常晾曬提供了便利。
第六套: 農村自建房怎么能沒有時尚的挑空客廳,該戶型占地11.02x9.67米,占地面積100.98平米,總建筑面積263平米,共設3室3廳2衛1廚1陽臺1露臺,適合多人口的大家庭居住。
平面布局圖: 一層入門的玄關設計,避免了直接的開門見山,私密性較強;二層、三層臥室基本都有陽臺設計,便于室內采光。
第七套: 又是一套經典的三層歐式別墅戶型,該戶型占地8.8x10.8米,占地面積94平方米,建筑面積達266平米,共設6室2廳6衛1廚。
平面布局圖: 一層設有大客廳,方便業主日常生活;二層設有陽臺,便于房間采光充分,通風順暢;三層大露臺的設計,貼近農村生活需求,便于晾曬。
第八套: 整體構造簡潔有序,清爽的色彩裝飾,常見的羅馬柱和細節處的雕花,西式風情濃郁。長9米寬13.5米,占地108平方米,建筑面積達299平方米,共設7室3廳3衛1衛。
平面布局圖: 布局簡單實用,功能性區域劃分合理,在提供業主生活品質的同時,提升了居家生活的舒適度。
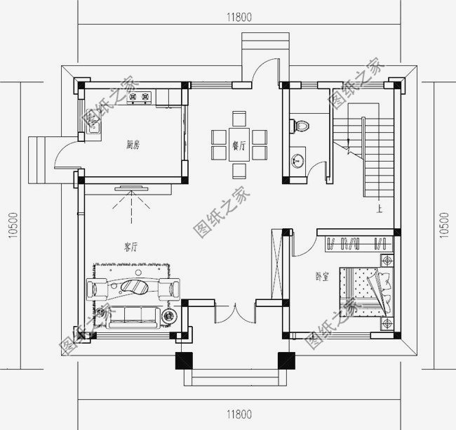
第九套: 多窗設計讓房子整體空間更加通透,簡約的建筑手法也讓它更具美感,外觀簡單便于自建。占地11.8x10.5米,占地面積106.7方米,建筑面積276.8平方米,共設4室5衛1廳1廚1餐廳。
平面布局圖: 一層設有開放式廚房,就餐十分便利;二層陽臺設計獨特,可以做陽光房,在家就能享受日光浴,房間與陽臺相連的部分設落地窗,采光非常好。
第十套: 這套戶型結合了傳統歐式建筑和現代建筑的簡約美學,保留經典的羅馬柱裝飾,秀氣靈動,而又現代感十足。占地10.5x8.9米,占地面積102平方米,建筑面積286平方米,共設5室 3廳 3衛 1廚 1陽臺 1露臺。
平面布局圖: 獨立的露臺陽光房設計,更添幾分詩意的韻味;時尚的大客廳,精致又大氣;多用途的臥室和書房,讓居家生活變得更自由隨性。
這10套占地100平米左右的自建房戶型,你更喜歡哪套?不論宅基地的大小,都能建成心目中的時尚美宅,因地制宜地選擇適合自己的好戶型才是王道。 圖紙之家-專注農村別墅/自建房設計18年,集合國內200余位經驗豐富的設計師,被評為口碑最好的農村建筑設計公司! |

三層平頂現代風格,農村自建房設計圖,可帶電梯,百看不厭
占地:259.55平方米
農村四間二層半雙拼樓設計圖,住三帶人都沒有問題!
占地:270平方米
一層中式三合院農村自建別墅圖,面寬18米帶堂屋設計
占地:165.72平方米
農村二間二層房子設計方案圖,造型小巧精致,10米乘12米
占地:110平方米
蓋別墅圖紙新農村簡歐二層房屋設計圖,12米×12米左右
占地:128平方米左右
最美中式農村別墅二層三間的房子圖,帶土灶房,娛樂室,大露臺
占地:180平方米
復式挑空二層別墅設計圖,占地175平米,建好住著很舒適
占地:175.44平方米
二層新農村自建房設計圖,帶外觀效果圖
占地:140平方米
三層獨棟帶露臺房屋設計圖,含外觀圖片大全
占地:110平方米
簡歐二層別墅設計圖紙含效果圖片,寶家鄉墅經典風格
占地:137.34平方米
農村四層樓房設計圖,占地120平方米,歐式風格,高端大氣
占地:120平方米
農村三層帶地下室小樓房設計圖,客廳中空,帶書房,旋轉樓梯
占地:130平方米
二層復式小別墅設計圖,樓中樓結構,外觀漂亮,簡單
占地:120平方米
農村中式一層三合院自建房戶型方案圖,帶庭院設計
占地:222平方米
三間二層最好看別墅設計圖,簡單實用美到爆炸,農村建房新潮流
占地:121.51平方米
三層帶露臺21萬別墅設計圖,占地面積100平米左右
占地:106平方米
簡歐風格三層別墅設計圖,外觀看起來很高端、上檔次
占地:139平方米
一層新中式三合院設計,建好城里大平層都不香了
占地:294.12平方米
90平小戶型四層房屋設計圖,農村自建別墅推薦
占地:90平方米
泰式風格三層小別墅設計圖,帶車庫和大露臺
占地:120平方米
推薦:10套新農村自建房設計圖,2026年最新設計
閱讀次數:4825737次
100套鄉村別墅圖片大全,2026年最新設計
閱讀次數:2492203次
6款農村蓋一層平房的設計圖,10萬元就能建起來
閱讀次數:1852637次
這11個一層農村自建房別墅火爆了朋友圈!我最喜歡戶型十!你呢
閱讀次數:750268次
農村6萬元建一層小別墅圖,你敢相信嗎
閱讀次數:567686次
農村5萬塊就能自建房,6套普通房子設計圖分享,你沒看錯!
閱讀次數:419410次
8套農村漂亮三間平房圖片,非常適合在農村修建!
閱讀次數:411197次
農村自建房化糞池怎么做?附方案及施工過程
閱讀次數:391783次
農村一層三間平房設計圖,告別土氣養老房,讓人忍不住點贊
閱讀次數:350581次
新農村二層樓房圖片造價12萬,挑一套回家建房吧!
閱讀次數:349126次
