
|
商住兩用的別墅在農村也是一種形式,有的是臨街宅地,而今天要介紹的是位于景區的宅地。 湖南李先生 李先生的老房子宅地位于景區附近,以后景區開發出來后,可以接待景區的游客。 所以要求每層的臥室帶有衛生間,外觀要大氣,既可以自住,也可以對外接待。
清新的配色與硬朗的線條設計,給別墅帶來不同的簡約穩重感。立柱的直線條與曲面感的窗框結合打造別致立面造型,靈活而隨性。 老房子的宅地情況
地基拉線處理
別墅4層設計,延續了歐式一慣的大氣豪華,位于景區附近,所以亮點一定要突出,到時候競爭力難免會很大。造型和采光同時兼備是設計的一大難點,可這棟別墅完全做到了二者兼并。
正面八角落地窗,每個方向上都有玻璃窗,空間布局上窗戶前面都有一段陽臺的空間,可避免陽光只曬也方便欣賞美景。背面更是無數的飄窗,造型也有了。
平面功能說明:李先生在設計前已經有自己的想法,畫了一張大致的草圖。
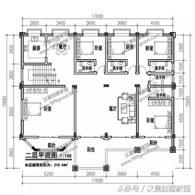
開間17.6米 進深15.6米,一層有廚房、餐廳、衛生間和車庫。其他的為大堂,可以作為儲物間。
二層為居住層,有一個廚房、餐廳可供做飯。中間客廳超大,臥室都帶有獨衛,方便日后出租。
三層同樣的格局,設有6間臥室和衛生間,每層采用相同的格局,省事降低建造難度。
頂層一個露臺,戶型結構簡單明了,營造一個輕松愉悅的居住氛圍。 圖紙之家-專注農村別墅/自建房設計18年,集合國內200余位經驗豐富的設計師,被評為口碑最好的農村建筑設計公司! |

網紅農村一層小別墅設計圖,建一層的必看
占地:多戶型可選
兩層半帶閣樓別墅房屋設計圖,含外觀效果圖片
占地:118平方米
12米寬三間二層農村自建房設計圖,左右對稱布局緊湊看著就舒服
占地:144.94平方米
農村三層樓房設計圖紙及效果圖,經典自建圖紙
占地:201平方米
鄉村別墅現代風平屋頂四層自建房設計圖,簡約時尚
占地:144.7平方米
新農村二層歐式別墅設計圖,外觀漂亮,主體18萬起建
占地:115.2平方米
240平方米新農村漂亮的兄弟雙拼別墅設計圖紙,單戶120平
占地:239平方米
新徽派農村三層小別墅設計圖,白墻黛瓦中式風,12米乘11米
占地:115.46平方米
鄉村三層別墅施工圖紙帶效果圖,田園別墅設計圖紙推薦
占地:178平方米
兩層中式三合院別墅設計圖紙,堂屋套臥全都有,蓋一棟面子十足
占地:181.93平方米
農村自建三層別墅設計圖,開間17米進深13米,外觀對稱設計
占地:187.6平方米
10米×13米最好看的農村三層樓房圖,客廳中空
占地:124平方米
小宅基地自建房設計圖,占地不到90平三層別墅圖紙
占地:87平方米左右
面寬9米的三層農村自建房設計圖,適合鄉下地區自建
占地:121.94平方米
帶地下室的三層歐式別墅戶型設計圖,帶地下室農村自建房
占地:139.256平方米
農村三層雙拼別墅戶型圖及全套施工圖紙,帶書房,帶衣帽間
占地:260平方米
新款中式二層四合院住宅設計圖,農村自建帶露臺設計
占地:223平方米
農村建房兄弟雙拼兩層住宅設計圖,單戶150平米左右
占地:300平方米
大面寬一層別墅設計圖紙,新中式風格兩款戶型
占地:多戶型可選
135平鄉村三層復式樓房設計圖,自建房推薦
占地:135平方米
推薦:10套新農村自建房設計圖,2026年最新設計
閱讀次數:4825737次
100套鄉村別墅圖片大全,2026年最新設計
閱讀次數:2492203次
6款農村蓋一層平房的設計圖,10萬元就能建起來
閱讀次數:1852637次
這11個一層農村自建房別墅火爆了朋友圈!我最喜歡戶型十!你呢
閱讀次數:750268次
農村6萬元建一層小別墅圖,你敢相信嗎
閱讀次數:567686次
農村5萬塊就能自建房,6套普通房子設計圖分享,你沒看錯!
閱讀次數:419410次
8套農村漂亮三間平房圖片,非常適合在農村修建!
閱讀次數:411197次
農村自建房化糞池怎么做?附方案及施工過程
閱讀次數:391783次
農村一層三間平房設計圖,告別土氣養老房,讓人忍不住點贊
閱讀次數:350581次
新農村二層樓房圖片造價12萬,挑一套回家建房吧!
閱讀次數:349126次
