
|
現在網上的別墅設計圖數不勝數,讓大家都挑花了眼,看來看去,比來比去,最后反而更糾結了,總會質疑圖紙的可行性以及現成效果,還擔心資金不夠,這是大部分人都有的心態,也是正常現象。 小編在此給大家總結一點:挑選圖紙關鍵在于“適合”,符合家庭成員住房需求,合適的尺寸,符合審美和當地建房政策,就是最佳選擇。今天小編給大家精心挑選了2款二層農村小別墅設計圖,各有千秋,一起來欣賞! 【戶型1】 這款農村小別墅設計圖開間進深12.3米×11米,采用磚混結構,首層占地面積131.63㎡,總建筑面積237.12㎡,建筑高度8.81米,主體造價大概25萬。
戶型1農村小別墅效果圖 戶型1設計精美獨特,一層采用與紅磚貼近的墻磚裝飾,傳統而彰顯韻味,二層搭配淡黃色真石漆,門廊頂部有精細雕刻是山花構件,實屬畫龍點睛之筆,錦上添花,雍容華貴。 戶型1建筑平面圖
一層平面圖
一層功能設計:門廳10.85㎡,客廳23.53㎡,老人房19.95㎡(帶衛生間),灶房/廚房18.09㎡、餐廳11.09㎡、衛生間3.76㎡
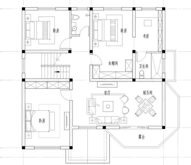
二層平面圖 二層功能設計:書房11.66㎡、臥室18.89㎡(帶衛生間)、臥室18.56㎡(帶衣帽間)、臥室10.36㎡、衛生間3.88㎡、露臺 【戶型2】 這款農村小別墅設計圖開間進深13米×12.5米,首層占地面積153.4㎡,總建筑面積286.2㎡,采用磚混結構,主體造價27萬。
戶型2農村小別墅設計圖 戶型2設計獨特別致,外墻采用磚紅色小瓷磚與白色真石漆裝飾,弧線窗戶吸引人的目光,室內設有娛樂間和臥室套房等功能,階梯入戶門廊盡顯優雅。 戶型2建筑平面圖
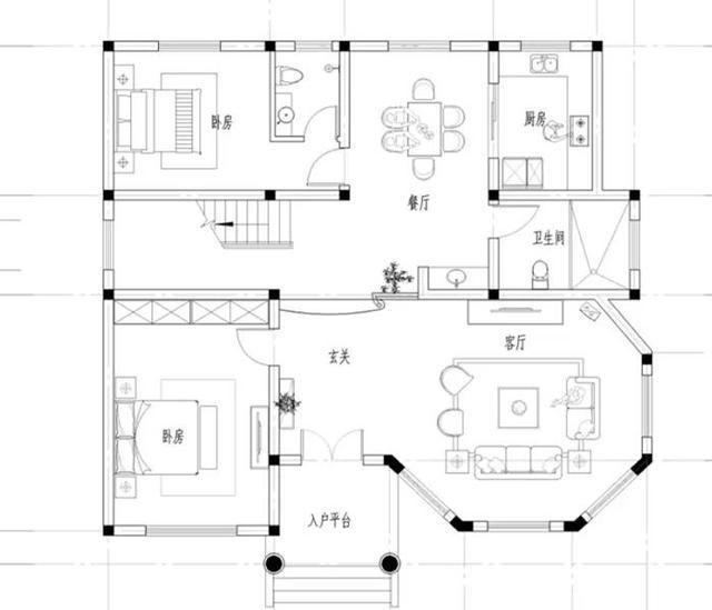
一層平面圖 一層:入戶平臺、玄關、客廳、臥室、廚房、餐廳、衛生間、臥室(帶衛生間)
二層平面圖 二層:客廳、娛樂間、露臺、主臥(帶衣帽間、書房、衛生間)、臥室*2、衛生間 圖紙之家-專注農村別墅/自建房設計18年,集合國內200余位經驗豐富的設計師,被評為口碑最好的農村建筑設計公司! |

140平歐式二層半帶露臺的獨棟別墅圖片,含全套設計圖
占地:140平方米
實用農村三層房屋設計圖紙,效果圖+全套施工圖
占地:113平方米
最新140平米三層自建房屋設計圖紙,本戶型帶小院
占地:140平米
方正對稱二層農村自建別墅施工圖,經濟實用舒適大氣
占地:129.6平方米
新款三層農村自建別墅設計圖,中式風復式客廳
占地:158.96平方米
人字坡紅磚一層別墅設計圖,簡約低調超實用,這樣的房子人人能
占地:136.51平方米
方方正正的二層農村別墅設計圖,普通農村人都能建
占地:201.05平方米
帶地下室三層復式別墅設計方案,全套設計圖+效果圖
占地:168平方米
歐式大氣新農村三層別墅豪宅設計圖,外觀高端,對稱設計
占地:225平方米左右
時尚的農村二層別墅圖紙設計,現代風格,簡約的外觀
占地:152平方米左右
面寬20米大氣的農村二層別墅設計圖,戶型帶車庫和土灶房設計
占地:250.85平方米
村里三層新中式風自建別墅圖,對稱設計,氣派好看
占地:135.3平方米
歐式豪華三層別墅設計圖,占地面積170平米,高端大氣帶露臺
占地:170平方米
110平方米新農村三層房屋設計圖紙,含效果圖,帶車庫
占地:113平方米
帶車庫的農村四合院別墅設計圖,富貴人家的象征,日子越過越興
占地:219.24平方米
農家中式小院一層三合院自建房,布局寬敞大氣又舒適
占地:186.07平方米
帶車庫二層165平別墅房屋設計圖,含效果圖
占地:165平方米
最新高端四層別墅外觀效果圖及全套設計圖,真土豪就這樣建
占地:174.08平方米
140平三層復式別墅設計圖及外觀效果圖
占地:140平方米
帶地下室一層別墅設計方案,功能布局齊全實用
占地:256.5平方米
推薦:10套新農村自建房設計圖,2026年最新設計
閱讀次數:4825737次
100套鄉村別墅圖片大全,2026年最新設計
閱讀次數:2492203次
6款農村蓋一層平房的設計圖,10萬元就能建起來
閱讀次數:1852637次
這11個一層農村自建房別墅火爆了朋友圈!我最喜歡戶型十!你呢
閱讀次數:750268次
農村6萬元建一層小別墅圖,你敢相信嗎
閱讀次數:567686次
農村5萬塊就能自建房,6套普通房子設計圖分享,你沒看錯!
閱讀次數:419410次
8套農村漂亮三間平房圖片,非常適合在農村修建!
閱讀次數:411197次
農村自建房化糞池怎么做?附方案及施工過程
閱讀次數:391783次
農村一層三間平房設計圖,告別土氣養老房,讓人忍不住點贊
閱讀次數:350581次
新農村二層樓房圖片造價12萬,挑一套回家建房吧!
閱讀次數:349126次
