
|
下面這款雙拼別墅設計圖共有三層,米黃色墻體與藍色屋頂搭配清新奪目,給人一種溫馨又清爽的設計美感,對稱設計,中間以墻分界,兩邊各住一戶,分別設有入戶門廊,還有落地窗、飄窗、露臺、棋牌室、家庭娛樂室、臥室套房等功能,奢華大氣。
效果圖 本套三層雙拼別墅設計圖開間進深21.1米×12.7米,占地面積300.16㎡,總建筑面積773.75㎡,采用磚混結構,主體造價80萬左右。單戶一層設有2廳1臥1衛1棋牌室,二層設有1廳3臥2衛1書房2陽臺,三層設有1廳2臥2衛1露臺。 建筑平面圖展示(以右邊為例)
一層平面圖 一層功能設計:客廳、臥室、廚房、餐廳、棋牌室、公衛 進門是客廳,方便迎接招待客人。客廳右邊設有一間臥室,臥室內設有飄窗,三面窗戶讓臥室更明亮寬敞。棋牌室是日常消遣的空間,給生活帶來更多的樂趣。廚房內設有后門,農家通常有后院,如此更方便出入,同時還能加快廚房內的油煙排放。
二層平面圖 二層功能設計:客廳、書房(帶陽臺)、主臥(帶主衛)、臥室(帶陽臺)、臥室、公衛 本層共設有3間臥室,主臥室帶有獨立衛生間,一間次臥帶有外挑陽臺,還有小書房,書房帶有陽臺,采光效果自然不用說,工作學習環境舒適。客廳滿足家人日常交流需要。
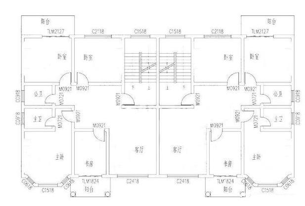
三層平面圖 三層功能設計:家庭娛樂室、露臺/陽臺、公衛、主臥(帶主衛)、臥室 三樓共設有2間臥室,主臥帶有獨立衛生間,家庭娛樂室為住戶提供休閑娛樂場地,也可以將其改造作為其他功能使用,靈活性較高。大露臺的讓住戶與自然更親近,擺一桌椅,手握一本閑書,泡一壺清茶,盡享午后休閑時光。 圖紙之家-專注農村別墅/自建房設計18年,集合國內200余位經驗豐富的設計師,被評為口碑最好的農村建筑設計公司! |

農村二層半帶露臺別墅圖片及設計圖,戶型方案比較經典
占地:123平方米
二開間小戶型設計三層農村自建房方案,經濟型適合小宅基地建房
占地:107.02平方米
兩層半雙拼別墅設計方案,超大露臺+歐式風格,好設計別錯過!
占地:175.8平方米
一層半小別墅設計圖帶效果圖,農村自建帶閣樓一層半方案
占地:155平方米
農村自建超漂亮中式四合院別墅設計圖,22X25米
占地:473平方米
100平內的三層豪華歐式別墅房屋設計圖紙 ,簡歐風格
占地:94平方米左右
占地105平實用三層樓房別墅設計圖紙,造型方正簡單大氣
占地:105平方米
中式二層對稱別墅設計圖,帶地下室設計,整體造價經濟
占地:171.6平方米
田園兩層半別墅新農村房屋施工設計圖,外觀清新靚麗感情色彩豐
占地:144.12平方米
新農村三層樓房住宅設計方案,戶型圖、效果圖、全套施工圖
占地:180平方米
農村一層四開間養老別墅設計圖,造型美布局佳
占地:164.27平方米
帶屋頂平臺的一層農村小別墅圖,有閣樓有露臺
占地:152平方米
12x10米帶閣樓的農村一層半別墅設計圖,外觀洋氣
占地:110.54平方米
10萬內2層小洋樓設計圖,平屋頂,戶型設計合理
占地:90平方米
一層中式三合院農村自建別墅圖,面寬18米帶堂屋設計
占地:165.72平方米
180平高端歐式三層別墅圖紙設計,大戶型復式客廳
占地:182.016
新中式三層別墅設計圖紙(含效果圖),110平農村自建房施工圖推
占地:110平方米
新農村自建房設計圖及效果圖大全,新農村住宅精選
占地:112平方米
人字坡房屋一層別墅設計圖,簡約低調超實用,、
占地:101.17平方米
新中式農村三層四合院別墅設計圖,四合院風格的別墅圖
占地:177平方米
推薦:10套新農村自建房設計圖,2026年最新設計
閱讀次數:4825737次
100套鄉村別墅圖片大全,2026年最新設計
閱讀次數:2492203次
6款農村蓋一層平房的設計圖,10萬元就能建起來
閱讀次數:1852637次
這11個一層農村自建房別墅火爆了朋友圈!我最喜歡戶型十!你呢
閱讀次數:750268次
農村6萬元建一層小別墅圖,你敢相信嗎
閱讀次數:567686次
農村5萬塊就能自建房,6套普通房子設計圖分享,你沒看錯!
閱讀次數:419410次
8套農村漂亮三間平房圖片,非常適合在農村修建!
閱讀次數:411197次
農村自建房化糞池怎么做?附方案及施工過程
閱讀次數:391783次
農村一層三間平房設計圖,告別土氣養老房,讓人忍不住點贊
閱讀次數:350581次
新農村二層樓房圖片造價12萬,挑一套回家建房吧!
閱讀次數:349126次
