
|
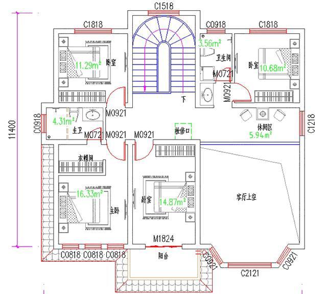
本套農村自建房設計圖開間進深12.6米×11.4米,占地138.95平方米,總建筑面積248.81平方米,主體造價28萬左右。一層設有3廳2臥1衛1廚,二層設有4臥2衛1陽臺1衣帽間1休閑區。
這款農村自建房設計圖外觀屬于田園風格,一層用文化石點綴,比較耐臟且古典,二層搭配黃色帶橫條的真石漆裝飾,屋頂采用藍色裝飾,進門是門廳和客廳,很符合農村的住房需求。 建筑平面圖展示
一層:門廳16.04㎡,客廳27.7㎡,廚房10.50㎡,餐廳13.41㎡,老人房16.33㎡,臥室11.29㎡,衛生間4.31㎡ 一層設有門廳,客廳中空設計,并利用多面窗戶增大采光,多面體外凸結構更是延伸了客廳空間,現代時尚。 老人房空間較大,帶有衣帽間,方便收納老人的衣物,設在南面更利于老人健康。北面還有一間臥室,做客房和兒童房均不錯。 采用開放式餐廳設計,并與客廳相連,可以讓客廳看起來更寬敞。
二層:主臥16.33㎡(帶衣帽間、主衛4.31㎡)、臥室14.87㎡(帶陽臺),臥室10.68㎡、臥室11.29㎡,休閑區5.94㎡ 二層共設有4間臥室,主臥室帶有衣帽間和衛生間,旁邊的次臥帶有陽臺,北面還設有2間臥室,公衛設緊靠樓梯間,整體布局緊湊,空間劃分合理。 圖紙之家-專注農村別墅/自建房設計18年,集合國內200余位經驗豐富的設計師,被評為口碑最好的農村建筑設計公司! |

新農村自建20萬二層小樓外觀圖及戶型圖,簡單大方,漂亮接地氣
占地:130平方米
二層樓房圖片及施工圖紙,占地160平米左右,帶車庫
占地:160平方米
極簡大氣二層別墅設計圖,15米面寬,簡約大氣,年輕人的最愛!
占地:150平方米
一層平屋頂自建房圖,簡單而舒適,既省錢不說還不愁沒地曬糧食
占地:106平方米
現代四合院別墅設計圖紙,二層戶型,外觀時尚漂亮
占地:287.97平方米
新中式風格二層住宅設計圖,農村自建房不土氣
占地:144.5平方米
三層奢華歐式別墅圖片及全套設計圖,帶地下室和車庫
占地:208平方米左右
115平漂亮的三層別墅設計方案,外觀圖片大氣、精致
占地:115平方米
農村15萬元二層小樓圖,經濟實用小別墅設計圖
占地:105平方米
現代風格精致兩層農村自建房住宅設計圖,帶儲藏室
占地:163平方米
一層半房屋別墅設計圖,帶閣樓圖、帶露臺,外觀新穎時尚
占地:130平方米
面寬13米簡簡單單一層農村自建別墅設計圖,方正大氣經濟宜居
占地:126.1平方米
帶小院新農村房屋設計圖紙,三層別墅推薦
占地:115平方米
新農村三層帶露臺自建房設計施工圖,農村自建別墅推薦
占地:112平方米
好看又簡單二層仿古中式四合院樓房設計圖
占地:352平方米
帶中式小院的二層仿古別墅設計圖,小戶型自建房設計,外觀美極
占地:82.94
古典韻味的四層房屋設計圖,占地140平米左右,這樣的外觀配上紅
占地:140平方米
造型對稱的簡約二層別墅設計圖紙,戶型布局好,13x13米5室2廳
占地:151.94平方米
農村兩間三層房屋設計圖,含外觀圖片
占地:120平方米
農村一層中式別墅設計圖,經典大氣,布局舒適,面寬20米
占地:192.92平方米
推薦:10套新農村自建房設計圖,2026年最新設計
閱讀次數:4825737次
100套鄉村別墅圖片大全,2026年最新設計
閱讀次數:2492203次
6款農村蓋一層平房的設計圖,10萬元就能建起來
閱讀次數:1852637次
這11個一層農村自建房別墅火爆了朋友圈!我最喜歡戶型十!你呢
閱讀次數:750268次
農村6萬元建一層小別墅圖,你敢相信嗎
閱讀次數:567686次
農村5萬塊就能自建房,6套普通房子設計圖分享,你沒看錯!
閱讀次數:419410次
8套農村漂亮三間平房圖片,非常適合在農村修建!
閱讀次數:411197次
農村自建房化糞池怎么做?附方案及施工過程
閱讀次數:391783次
農村一層三間平房設計圖,告別土氣養老房,讓人忍不住點贊
閱讀次數:350581次
新農村二層樓房圖片造價12萬,挑一套回家建房吧!
閱讀次數:349126次
