
|
華麗的歐式別墅是農村建的最多,也是大家最喜歡建的別墅風格,其他風格的別墅也有人會建,但是只占據了一小部分,下面兩棟別墅都是歐式風格的,第一棟外觀絕對的很吸引眼球,第二棟稍微簡單一些。 第一棟11.4×13米,外墻的造型和配色都是極容易給人好感的,適量的裝飾構件,也恰到好處的凸顯出房子的優勢出來。
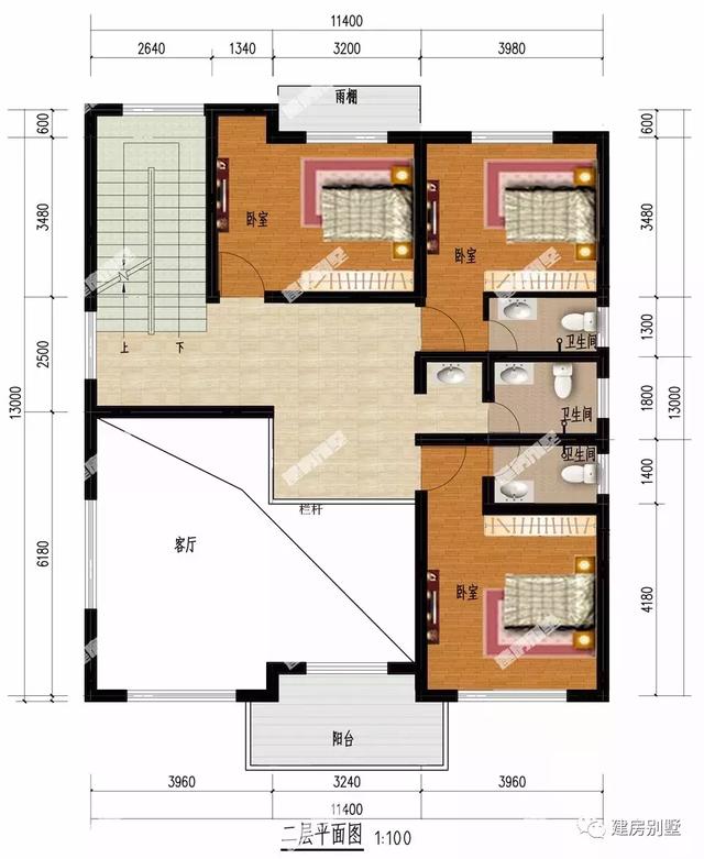
平面布局說明:客廳和茶室的空間是比較寬敞的,這兩個區域可以互相的調動,因為設計是茶室挑空的,這樣設計的原因在于跟家人戴在客廳要溫馨,跟客人在茶室喝喝茶聊聊天要大氣;臥室該棟別墅共設有7個,三層還有一個休閑娛樂的房間,戶型通透,室外活動休閑空間也配備的很充足。
第二棟別墅外觀就沒有太過復雜,簡單的面磚或者是同色彩的真石漆裝飾,裝飾構件少量,還有一個壁畫恰到好處的來裝點。
平面布局說明:客廳和堂屋是一體的,玄關和客廳的地方以后就可以靠一個電視機背景墻來隔斷,挑空的客廳旋轉樓梯,肯定是極大氣的,還有老人房、娛樂室、主臥和客臥等,每個臥室都是配置很齊全,生活足夠的便利。
不論是看到外觀,還是看看布局,這兩棟別墅都是絕殺型的,別的房子在他們面前就顯得黯然失色了。 圖紙之家-專注農村別墅/自建房設計18年,集合國內200余位經驗豐富的設計師,被評為口碑最好的農村建筑設計公司! |

帶車庫簡約二層小別墅房屋設計圖紙,占地120平米,彎彎的樓梯打
占地:120平方米
農村現代三層建房子設計圖及圖片,平屋頂的設計
占地:150平方米
簡單經濟一層自建養老房,12米乘9.5米,溫暖舒適施工簡單
占地:103.2平方米
230平米歐式帶地下室三層自建別墅設計施工圖紙及效果圖
占地:230平米
造價便宜的二層雙拼自建房設計方圖案,一塊宅基地建兩戶
占地:224平方米
二層復式小洋樓設計圖,外觀精致,戶型合理
占地:115平方米
面寬17米農村一層平房設計圖,簡約空間敞亮
占地:169.393平方米
2026年最新三層房屋設計圖紙,12米×11米,實用接地氣
占地:130平方米
16×12米二層歐式帶車庫農村小別墅,既舒適又美觀
占地:180平方米
160平方米二層小別墅設計圖紙及效果圖大全,12X13米
占地:162平方米
帶配房的二層農村小別墅設計圖,大方適用,耐看經濟
占地:152.28平方米
50萬以內的歐式三層房屋別墅施工設計圖紙及效果圖
占地:169平方米
一層農村小平房設計圖,功能齊全造價低,兩款戶型可選
占地:多戶型可選
簡約精致的二層房子設計圖,農村自建經濟實用
占地:89.76平方米
蓋別墅圖紙新農村簡歐二層房屋設計圖,12米×12米左右
占地:128平方米左右
中式三層新農村房子別墅設計圖,看了那么久,還是中式最有韻味
占地:97.2平方米
最實用一層小別墅設計方案,造價不高顏值高,家家都喜歡!
占地:143.48平方米
100平左右農村一層平房小洋樓建筑設計圖紙,14米×8米
占地:98平方米
農村二層帶閣樓四間別墅設計圖,外觀美觀,戶型實用
占地:175平方米
爆款農村兄弟雙拼自建房設計圖,占地不大舒適宜居
占地:147.2平方米
推薦:10套新農村自建房設計圖,2026年最新設計
閱讀次數:4825737次
100套鄉村別墅圖片大全,2026年最新設計
閱讀次數:2492203次
6款農村蓋一層平房的設計圖,10萬元就能建起來
閱讀次數:1852637次
這11個一層農村自建房別墅火爆了朋友圈!我最喜歡戶型十!你呢
閱讀次數:750268次
農村6萬元建一層小別墅圖,你敢相信嗎
閱讀次數:567686次
農村5萬塊就能自建房,6套普通房子設計圖分享,你沒看錯!
閱讀次數:419410次
8套農村漂亮三間平房圖片,非常適合在農村修建!
閱讀次數:411197次
農村自建房化糞池怎么做?附方案及施工過程
閱讀次數:391783次
農村一層三間平房設計圖,告別土氣養老房,讓人忍不住點贊
閱讀次數:350581次
新農村二層樓房圖片造價12萬,挑一套回家建房吧!
閱讀次數:349126次
