
|
越來越多的人喜歡中式的房子了,不論新中式還是徽派形式,多看一眼都心動,過不難忘,不選擇一款戶型拿回家蓋都不甘心。總有一些年輕人在城里混得風生水起后,先回家蓋一棟豪華的房子,也算是衣錦還鄉了。
設計說明:
背面上也做了凹凸的造型感,柱子上也是有相當的好看的點綴,此戶型建在農村配上青山綠水的環境,讓人流連忘返。
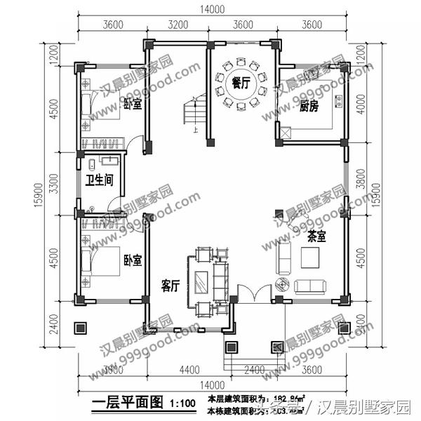
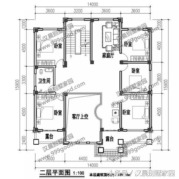
平面說明: 大開間四間形式,廚房、餐廳和臥室、客廳都有各自相對的區域,私有空間比較獨立,分區明顯。茶室和客廳空間闊度大,來客也不擁擠。 陳 先生不想多做衛生間,畢竟衛生間太多也不太好,室內空氣不保證,也不實用,將每個衛生間做大點就好了。 大氣還是要有中空的設計,總共有11間臥室,過年過節親友留宿完全不是問題。
陳先生就是因為看了咱們圖庫里的這2款樣式,下面也一并發布出來,看看有何魅力。
外觀說明:青灰色屋頂和樓層之間的腰線,避免了戶型外觀上的單調,中間運用鏤空的特色圍欄將大氣之勢淋漓盡致的展現出來。
平面圖說明: 相比這棟戶型的尺寸,上面的戶型開間的確是蠻小的,按照當地農村的習俗,堂屋要獨立且占據的面積要大。 臥室和廚房餐廳等油煙區隔離,堂屋和客廳雙挑空,旋轉樓梯直達180度。 三層有娛樂室、客廳、書房等豐富的功能讓生活自由,有臥室玩累了學累了都可以休息。
還有一款面積最大的外觀相同的戶型,有獨立的土灶房,宅地的面積超大,相比進深就小多了。
平面圖說明: 入戶門廳感覺不都大氣,室內沒有堂屋,注重朋友之間的友情和日常的活動,客廳和餐廳面積較大。 樓梯間和雜物間以及衛生間都有實墻相隔,打理起來方便有序。 二層視聽室是亮點,在家也可以看大片。三層露臺環形,能夠任意欣賞房屋周圍的美景。
![]() 圖紙之家-專注農村別墅/自建房設計18年,集合國內200余位經驗豐富的設計師,被評為口碑最好的農村建筑設計公司! |

偏徽派風格民居三層農村住宅設計圖,白墻黛瓦的古雅簡潔
占地:101.01平方米
140平方米兩層別墅CAD設計圖紙及效果圖,13x11米
占地:138平方米
歐式二層農村別墅設計圖,140平方米戶型方正的好方案
占地:142.51平方米
中式三層新農村房子別墅設計圖,看了那么久,還是中式最有韻味
占地:97.2平方米
150平歐式別墅房屋設計圖,外觀精美、氣派
占地:150平方米
160平方米經典鄉村二層房屋設計圖紙
占地:160平方米
180平方米新農村雙拼戶型別墅房屋設計圖紙帶外觀圖17X11米
占地:180平方米
農村15萬元二層小樓圖,占地100平米左右,簡單實用,戶型合理
占地:100平方米
2026兩層半20多萬農村自建房圖,簡歐風格,美觀大氣
占地:120平方米
漂亮實用的新農村二層小樓圖,造價20萬左右,超大景觀露臺
占地:130平方米
被包工頭夸爆的二層別墅戶型!建好未來幾年必火
占地:189.98平方米
新中式徽派帶露臺別墅設計圖,構思精巧,自然得體
占地:124.82平方米
一層中式風格自建小院,白墻黛瓦舒適宜居,享受舒適愜意的鄉村
占地:263.94平方米
農村15萬元一層半小樓圖,最新的戶型設計
占地:182.31平方米
實用農村10萬一層小別墅戶型圖及圖紙,全套施工圖
占地:多種面積
114平方米農村四層別墅設計圖紙及效果圖,11X11米
占地:114平方米
帶電梯農村建房三層小洋樓,樓中樓結構,帶露臺
占地:110平方米
新農村兩層樓房設計圖,占地110平米,戶型簡單實用
占地:110平方米
120平方房子設計圖帶效果圖,農村自建房戶型推薦
占地:120平方米
110平方米農村兩層別墅設計效果圖及圖紙,12X12米
占地:110平方米
推薦:10套新農村自建房設計圖,2026年最新設計
閱讀次數:4825737次
100套鄉村別墅圖片大全,2026年最新設計
閱讀次數:2492203次
6款農村蓋一層平房的設計圖,10萬元就能建起來
閱讀次數:1852637次
這11個一層農村自建房別墅火爆了朋友圈!我最喜歡戶型十!你呢
閱讀次數:750268次
農村6萬元建一層小別墅圖,你敢相信嗎
閱讀次數:567686次
農村5萬塊就能自建房,6套普通房子設計圖分享,你沒看錯!
閱讀次數:419410次
8套農村漂亮三間平房圖片,非常適合在農村修建!
閱讀次數:411197次
農村自建房化糞池怎么做?附方案及施工過程
閱讀次數:391783次
農村一層三間平房設計圖,告別土氣養老房,讓人忍不住點贊
閱讀次數:350581次
新農村二層樓房圖片造價12萬,挑一套回家建房吧!
閱讀次數:349126次
