
|
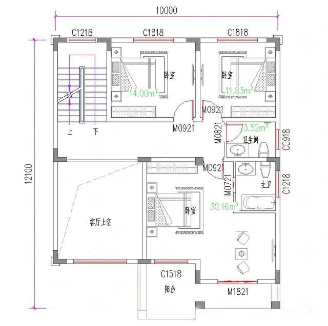
如今農村生活水平有了大大提升,在建房上也傾向于別墅類型的房屋,造價雖然比普通的居民房高一些,但住得舒服,錢也花得值,下面小編為大家挑選1款10×12米復式三層新農村自建房設計圖,一起來看這套圖紙詳情。 這款三層新農村自建房設計圖開間進深10米×12.1米,首層占地面積112.02㎡,總建筑面積279.1㎡,建筑高度12米,主體造價30萬左右。
簡單的歐式風格,擁有貴氣的超大落地窗,獨特的拱形門洞,精致的山花雕刻,富氣華貴,室內的復試客廳是現代別墅設計的亮點,二層有臥室套間,屋頂有大露臺,放置花架桌椅,擺放一些綠植盆栽,享受美好的午后休閑時光,晚上還可以賞月,看繁星滿天。 戶型1室內布局:
一層:挑空客廳17.48㎡、老人房21.45㎡、衛生間3.22㎡、餐廳13.68㎡、廚房11.56㎡、儲藏室3.40㎡
二層:主臥30.16㎡(帶陽臺、主衛)、次臥14㎡、次臥11.83㎡、衛生間3.52㎡
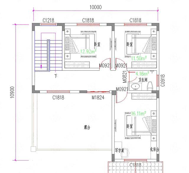
三層:臥室16.11㎡、臥室11.50㎡、臥室12.92㎡、衛生間4.16㎡、露臺 圖紙之家-專注農村別墅/自建房設計18年,集合國內200余位經驗豐富的設計師,被評為口碑最好的農村建筑設計公司! |

兩層半20多萬復式農村自建房設計圖,經典不過時戶型
占地:120平方米
農村房子設計圖三層獨棟別墅方案,占地130平方米
占地:130平方米
戳中年輕人喜好!時尚三層自建房,簡約時尚設計,住著舒適自然
占地:169.76平方米
一層合院中式小別院設計圖,白墻灰瓦,愜意十足!
占地:219平方米
100平內的三層豪華歐式別墅房屋設計圖紙 ,簡歐風格
占地:94平方米左右
新中式120平米農村20萬元二層小樓圖,外觀柔和而雅致
占地:120平方米
占地180平方米二層農村新款樓房別墅設計圖,外觀漂亮
占地:180平方米
80-90平米自建樓房設計圖,農村小別墅經典戶型圖
占地:86平方米
90平農村自建房二層新款,占地不大但很實用,
占地:88平方米
一層帶架空層的農村別墅設計圖,防潮、停車、放農具全都滿足
占地:163.78平方米
偏徽派風格民居三層農村住宅設計圖,白墻黛瓦的古雅簡潔
占地:101.01平方米
150平左右新農村自建房設計圖,含外觀效果圖
占地:150平方米
造價30萬多的三層簡歐新農村別墅設計施工圖紙及效果圖
占地:133平方米左右
12x10米農村建房圖紙,客廳中空,讓你后半輩子在稱贊聲中度過
占地:120平方米
農村一層雙拼別墅設計方案,豐富的室內空間配置,滿足您的生活
占地:358.46平方米
堂屋共用的三層雙拼別墅設計圖,總占地面積245平米
占地:245平方米
面寬14.5米三層獨棟別墅設計圖,經典設計,大氣之作
占地:123.85平方米
偏中式徽派的二層房屋農村別墅設計圖,馬頭墻小青瓦
占地:123.36平方米
二層簡歐農房!經濟實惠+大氣耐看,20年后不落后
占地:120平方米
四間兩層實用簡約的住房設計圖,毛坯24萬,農村建正合適
占地:159.48平方米
推薦:10套新農村自建房設計圖,2026年最新設計
閱讀次數:4825737次
100套鄉村別墅圖片大全,2026年最新設計
閱讀次數:2492203次
6款農村蓋一層平房的設計圖,10萬元就能建起來
閱讀次數:1852637次
這11個一層農村自建房別墅火爆了朋友圈!我最喜歡戶型十!你呢
閱讀次數:750268次
農村6萬元建一層小別墅圖,你敢相信嗎
閱讀次數:567686次
農村5萬塊就能自建房,6套普通房子設計圖分享,你沒看錯!
閱讀次數:419410次
8套農村漂亮三間平房圖片,非常適合在農村修建!
閱讀次數:411197次
農村自建房化糞池怎么做?附方案及施工過程
閱讀次數:391783次
農村一層三間平房設計圖,告別土氣養老房,讓人忍不住點贊
閱讀次數:350581次
新農村二層樓房圖片造價12萬,挑一套回家建房吧!
閱讀次數:349126次
