
|
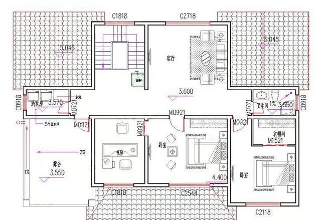
本套農村房屋設計圖開間進深16.8米×11.2米,首層占地面積185.15㎡,總建筑面積313.72㎡,房屋高度10.44米,采用磚混結構,主體造價30萬左右。一層設有3廳2臥1衛1廚1娛樂室1儲藏室2衣帽間,二層設有1廳2臥1衛1書房1露臺1洗衣房1衣帽間。
戶型點評:溫暖柔和的黃色外墻裝飾,屋頂雙坡設計,寬大的窗戶,還有大露臺、走廊,門柱墻角采用復古文化石裝飾,小巧別致。室內布局完善,設有娛樂室、臥室套間等功能,滿足二三帶同堂小家庭居住。 室內布局
一層功能設計:前廳12.85㎡、客廳20.41㎡、臥室15.9㎡(帶衣帽間4.02㎡)、臥室15.9㎡(帶衣帽間4.02㎡)、娛樂室19.53㎡、儲藏室3.86㎡、餐廳19.44㎡、廚房14.89㎡
閣樓層功能設計:客廳、臥室、臥室(帶衣帽間)、衛生間、洗衣房、書房、露臺 圖紙之家-專注農村別墅/自建房設計18年,集合國內200余位經驗豐富的設計師,被評為口碑最好的農村建筑設計公司! |

最美農村一層合院設計圖紙,自建一棟火遍十里八鄉
占地:190平方米左右
農村二層舒適好房,這款四開間別墅設計圖真的很不錯
占地:220.46平方米
農村二層四合院設計圖,秒殺各種洋別墅
占地:220平方米
12x9米自建一層小別墅設計圖,占地不大造價低,簡單舒適人人夸
占地:108.36平方米
新中式農村50萬三層別墅款式圖,占地面積160平米左右
占地:150平方米
最實用一層小別墅設計方案,造價不高顏值高,家家都喜歡!
占地:143.48平方米
帶地下室獨棟三層高端別墅房圖紙設計圖,復式客廳旋轉樓梯
占地:146.145平方米
20萬左右歐式二層小別墅設計圖,100平米和130兩個戶型
占地:多種戶型
四間兩層別墅房屋設計圖,外觀效果圖好看
占地:235平方米
60多平三層現代風格別墅設計圖,小戶型平屋頂
占地:66.4平方米
大開間小進深的一層別墅設計圖,進深僅8.7米,獨立餐廚照樣美觀
占地:130.32平方米
農村120平米兩層樓的房子設計圖,外觀新穎
占地:120平方米
四層(三層半)豪華歐式別墅房屋設計圖,外觀高端、大氣
占地:150平方米
農村18萬元二層小樓圖,占地120平面,戶型緊湊合理
占地:120平方米
帶閣樓二層別墅設計圖,帶外觀效果圖片
占地:160平方米
150平米簡歐三層農村別墅設計圖,低調又奢華
占地:151.2平方米
大氣的150平方米新中式三層別墅建筑圖及效果圖
占地:150平方米左右
10萬內2層小洋樓設計圖,平屋頂,戶型設計合理
占地:90平方米
120平農村三層房屋設計圖,含外觀圖片
占地:120平方米
200平農村二層別墅設計圖,外觀現代簡約
占地:204平方米
推薦:10套新農村自建房設計圖,2026年最新設計
閱讀次數:4825737次
100套鄉村別墅圖片大全,2026年最新設計
閱讀次數:2492203次
6款農村蓋一層平房的設計圖,10萬元就能建起來
閱讀次數:1852637次
這11個一層農村自建房別墅火爆了朋友圈!我最喜歡戶型十!你呢
閱讀次數:750268次
農村6萬元建一層小別墅圖,你敢相信嗎
閱讀次數:567686次
農村5萬塊就能自建房,6套普通房子設計圖分享,你沒看錯!
閱讀次數:419410次
8套農村漂亮三間平房圖片,非常適合在農村修建!
閱讀次數:411197次
農村自建房化糞池怎么做?附方案及施工過程
閱讀次數:391783次
農村一層三間平房設計圖,告別土氣養老房,讓人忍不住點贊
閱讀次數:350581次
新農村二層樓房圖片造價12萬,挑一套回家建房吧!
閱讀次數:349126次
