
|
該戶型是中式設計風格,采用明亮的白色墻漆為主色,并采用清爽的翡翠綠點綴,搭配灰色坡屋頂,與周圍的風景融為一體。傳統的中式風格中又頗具現代時尚的韻味,尤其是車庫、門廊,陽臺、露臺和大窗戶的設計,每一處細節都為整棟房子增添光彩。
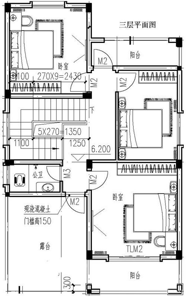
本套三層別墅設計圖開間進深8米×13.85米,占地面積95.3㎡,總建筑面積 259.8㎡,采用磚混結構,主體造價25萬左右。一層設有2廳1廚1臥1衛1車庫,二層設有3臥1廳1陽臺2衛,三層設有3臥1衛2陽臺1露臺。 室內布局展示:
一層:室外車庫、客廳、餐廳、廚房、公用衛生間、臥室 車庫架空設計,既美觀又方便停車。 客廳和餐廳兩廳合一,可以讓客廳看起來更寬敞。 廚房內設有后門通往后院,很多農村家庭宅基地比較大,帶有后院,這樣設計既方便出入后院,又能讓廚房內的油煙氣味加快散發。 西北角有一間臥室,與客廳距離較遠,動靜分區,干擾較小。
二層:客廳(帶陽臺)、主臥(帶內衛)、臥室(帶陽臺)、臥室、公衛 二樓共設有3間臥室,主臥室設在西南角,帶有獨立衛生間,另外的2間次臥中,一間次臥帶有陽臺,寬敞透氣。 客廳方便家人平時看電視,交流感情,客廳直通陽臺,增加客廳的采光。
三層:臥室(帶陽臺)、臥室*2、陽臺、公衛、露臺 本層共設有3間臥室,南面的臥室帶陽臺。大露臺設計提供晾曬場地,并為住戶提供了更多的休閑活動空間,北面的陽臺也方便賞景和晾曬。 圖紙之家-專注農村別墅/自建房設計18年,集合國內200余位經驗豐富的設計師,被評為口碑最好的農村建筑設計公司! |

蓋別墅圖紙新農村簡歐二層房屋設計圖,12米×12米左右
占地:128平方米左右
大氣豪華四層別墅設計圖紙,占地180平米左右
占地:180平方米
150平米田園風格二層別墅設計圖紙,沉穩大氣有內涵
占地:150平方米
多臥室復式二層別墅房屋設計圖,含外觀效果圖
占地:175平方米
新農村歐式時尚二層別墅設計圖紙,120平方米自建房
占地:多種戶型
300平四層別墅房屋設計圖,含外觀效果圖,大面積、多臥室
占地:261平方米
農村二層舒適好房,這款四開間別墅設計圖真的很不錯
占地:220.46平方米
農村二層半雙拼別墅設計圖,客廳中空,帶大露臺
占地:270平方米
農村兩層半樓房設計圖,平面功能分區明確,布置合理
占地:180平方米
新農村三層小別墅設計圖紙,占地160平左右,好看不貴
占地:160平方米
好看實用農村2開間二層別墅設計圖,主體19萬
占地:117.36平方米
三層獨棟別墅設計圖紙帶效果圖,全套施工方案(建筑圖+結構圖
占地:144平方米
農村二層半別墅設計圖,簡單實用,造價低
占地:140平方米
好看又簡單二層仿古中式四合院樓房設計圖
占地:352平方米
帶電梯農村建房三層小洋樓,樓中樓結構,帶露臺
占地:110平方米
大氣自建三層雙拼別墅戶型圖方案,完美的戶型就是它
占地:287平方米
豪華雙拼三層別墅設計圖,在農村建一棟,將是最靚的風景!
占地:186.85平方米
農村20萬左右三層住房設計圖,小宅基地首選
占地:95平方米
90平方米小戶型自建三層房屋設計圖紙及外觀效果圖
占地:91平方米左右
三層平屋頂別墅房屋設計圖及外觀效果圖
占地:150平方米
推薦:10套新農村自建房設計圖,2026年最新設計
閱讀次數:4825737次
100套鄉村別墅圖片大全,2026年最新設計
閱讀次數:2492203次
6款農村蓋一層平房的設計圖,10萬元就能建起來
閱讀次數:1852637次
這11個一層農村自建房別墅火爆了朋友圈!我最喜歡戶型十!你呢
閱讀次數:750268次
農村6萬元建一層小別墅圖,你敢相信嗎
閱讀次數:567686次
農村5萬塊就能自建房,6套普通房子設計圖分享,你沒看錯!
閱讀次數:419410次
8套農村漂亮三間平房圖片,非常適合在農村修建!
閱讀次數:411197次
農村自建房化糞池怎么做?附方案及施工過程
閱讀次數:391783次
農村一層三間平房設計圖,告別土氣養老房,讓人忍不住點贊
閱讀次數:350581次
新農村二層樓房圖片造價12萬,挑一套回家建房吧!
閱讀次數:349126次
