
|
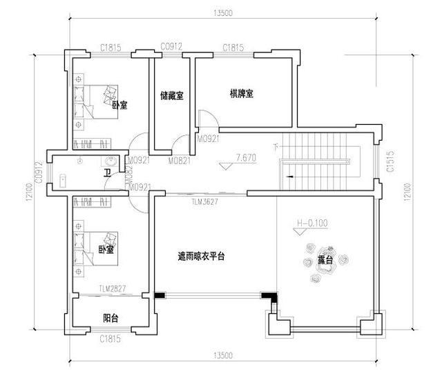
這款農村自建房設計圖開間進深14.4×12.1米,一層建筑面積178.57平方米,二層建筑面積151.77平方米,三層建筑面積112.26平方米,占地面積約185平方米,總建筑面積442.6平方米,主體造價45萬左右。
設有堂屋,主要考慮到農村的風俗習慣,可以在堂屋擺放神位。堂屋和客廳開放相連,面積較大,客廳采用中空設計,利用超大落地窗采光,貴氣十足。一樓有2間臥室,南面的臥室帶有內陽臺,給老人居住最佳。屋頂有大露臺和晾衣平臺。 布局展示
一層:堂屋、挑空會客廳、臥室(帶陽臺)、臥室、廚房、餐廳、儲藏室、公衛
二層:休閑廳(帶露臺)、臥室(帶陽臺、衛生間)、臥室*2、公衛
三層:臥室(帶陽臺)、臥室、棋牌室、儲藏室、公衛、遮雨晾衣平臺、露臺 圖紙之家-專注農村別墅/自建房設計18年,集合國內200余位經驗豐富的設計師,被評為口碑最好的農村建筑設計公司! |

50萬左右農村三層別墅設計圖,歐式的外觀大氣沉穩
占地:150平方米
大氣農村一層自建別墅方案,絕對讓人羨慕的“平房”
占地:158.39平方米
簡歐漂亮農村二層別墅設計方案圖紙,12米乘9米
占地:多戶型可選
經濟、不張揚!簡單二層別墅設計圖,農村建房直接抄作業
占地:198.58平方米
農村四層樓房設計圖及外觀效果圖,造價60萬左右
占地:163.84平方米
帶地下室+挑空客廳,農村三層洋樓別墅誰家圖在
占地:97.74平方米
兩層樓房設計圖,兩層新農村樓房圖紙,外觀典雅古樸
占地:140平方米
簡歐風格三層別墅設計圖,外觀看起來很高端、上檔次
占地:139平方米
三層現代平頂別墅設計圖,簡約時尚百看不厭,外觀令人驚艷!
占地:125.142平方米
130平方米復式三層別墅房屋設計圖,含外觀效果圖
占地:130平方米
12x13米豪華三層農村別墅設計圖,宅基地上的貴族人生
占地:156平方米
全套歐式二層別墅設計cad圖紙,含效果圖,帶車庫
占地:211平方米
新農村三層小別墅設計圖紙,占地160平左右,好看不貴
占地:160平方米
125平兩層別墅房屋設計圖,帶普通和復式兩個戶型
占地:125平方米
帶架空層的農村一層小別墅設計圖,大氣穩重又很實用
占地:123.5平方米
農村二層小別墅圖片,二層別墅效果圖及設計圖
占地:153平方米
帶地下室的農村自建三層半歐式別墅設計圖,看著真豪氣!
占地:142.45平方米
兄弟三層雙拼房屋設計圖,帶效果圖,戶型好
占地:256平方米
農村兩間三層房屋設計圖,含外觀圖片
占地:120平方米
一層三間別墅設計圖,經濟實用 + 好看不貴,養老自住都適配
占地:119.31平方米
推薦:10套新農村自建房設計圖,2026年最新設計
閱讀次數:4825737次
100套鄉村別墅圖片大全,2026年最新設計
閱讀次數:2492203次
6款農村蓋一層平房的設計圖,10萬元就能建起來
閱讀次數:1852637次
這11個一層農村自建房別墅火爆了朋友圈!我最喜歡戶型十!你呢
閱讀次數:750268次
農村6萬元建一層小別墅圖,你敢相信嗎
閱讀次數:567686次
農村5萬塊就能自建房,6套普通房子設計圖分享,你沒看錯!
閱讀次數:419410次
8套農村漂亮三間平房圖片,非常適合在農村修建!
閱讀次數:411197次
農村自建房化糞池怎么做?附方案及施工過程
閱讀次數:391783次
農村一層三間平房設計圖,告別土氣養老房,讓人忍不住點贊
閱讀次數:350581次
新農村二層樓房圖片造價12萬,挑一套回家建房吧!
閱讀次數:349126次
