
|
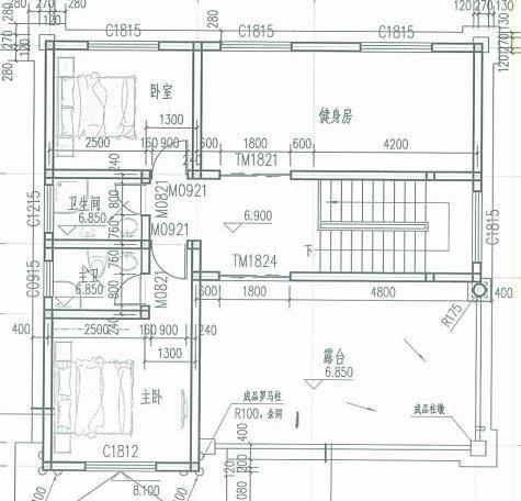
簡單的歐式風格建筑在農村建房中十分流行,這種戶型造價比傳統復雜的歐式建筑相對低一些,但卻依然能夠散發著歐式的大氣華麗,今天小編為大家推薦2款三層歐式風格農村別墅戶型設計圖。 【戶型1】 本套農村別墅戶型設計圖開間進深11米×12米,首層占地138㎡,建筑面積約350㎡,采用磚混結構,主體造價大概32萬。一層設有3廳2臥2衛1廚,二層設有1廳3臥2衛1書房1露臺1陽臺,三層設有2臥2衛1健身房1露臺。
戶型點評:整體設計簡單大氣,采用簡歐風格設計降低施工難度,直接最大程度降低成本造價,超大落地窗和大露臺、陽太、浮雕設計精細美觀。線條流暢,裝飾精美,簡潔的外觀設計十分耐看,幾代不過時! 戶型1功能設計:
一層:門廳、挑空客廳、老人房(帶衛生間)、臥室、廚房、餐廳、衛生間
二層:小客廳(帶露臺)、主臥(帶陽臺、主衛)、臥室*2、書房、衛生間
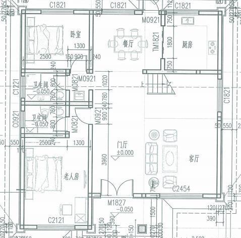
三層:主臥(帶主衛)、臥室、健身房、露臺、衛生間 【戶型2】 本套農村別墅戶型設計圖開間進深12米*9.3米,首層占地面積97.6㎡,總建筑面積275.4㎡,框架結構,主體造價30萬左右,一層設有2廳1臥1廚1衛,二層設有2臥1衛1書房1露臺1陽臺,三層設有3臥1衛1露臺。 該戶型外觀有兩種配色:
方案1:采用紅、棕、白三色為主色,濃烈的色彩中伴隨著純白的清新,明亮養眼。
方案2:以黃色為主色,文化石和真石漆結合裝飾,搭配磚紅色坡面屋頂,與方案1相比,給人更多的是溫馨感。 戶型2功能設計:
一層:客廳、臥室、廚房、餐廳、衛生間
二層:臥室(帶露臺)、臥室(帶陽臺)、書房、衛生間
三層:臥室*3、衛生間、露臺 圖紙之家-專注農村別墅/自建房設計18年,集合國內200余位經驗豐富的設計師,被評為口碑最好的農村建筑設計公司! |

新農村三層小別墅設計圖紙,占地160平左右,好看不貴
占地:160平方米
三層兩開間小面寬別墅設計圖紙帶外觀效果圖,95平方米
占地:94.61平方米
150平方米大平層別墅設計圖,時尚大氣舒適實用
占地:149.43平方米
歐式復式型三層別墅施工設計圖紙及效果圖大全
占地:164平方米
面寬18米二層農村大別墅設計圖,可帶電梯,舒適又實用
占地:138.29平方米
50萬左右農村三層別墅設計圖紙,帶大露臺,外觀大氣
占地:150平方米
對稱設計二層歐式別墅設計圖,優雅時尚有品位
占地:151.85平方米
好看實用農村2開間二層別墅設計圖,主體19萬
占地:117.36平方米
小型三層別墅cad建筑圖紙帶效果圖,帶屋頂露臺
占地:101平方米左右
復式挑空現代簡約風三層別墅設計圖,簡單時尚最受年輕人最愛
占地:149.7平方米
120平米三層別墅房屋設計圖,帶車庫,帶閣樓
占地:120平方米
農村27萬二層自建別墅設計圖,占地140平米左右,戶型極好
占地:140平方米
135平鄉村三層復式樓房設計圖,自建房推薦
占地:135平方米
高端大氣三層半別墅客廳挑空設計,豪華農村自建房圖
占地:179.52平方米
新式三層別墅設計圖,客廳中空,占地125平米左右
占地:125平米
高端豪華三層別墅住宅設計方案圖,歐式外觀風格
占地:170平方米
155平方米自建二層CAD房屋設計圖紙及效果圖,13X12米
占地:156平方米
160平方米農村實用型二層自建小別墅設計施工圖紙15米*10米
占地:160平方米
大氣自建三層雙拼別墅戶型圖方案,完美的戶型就是它
占地:287平方米
農村四間二層半雙拼樓設計圖,住三帶人都沒有問題!
占地:270平方米
推薦:10套新農村自建房設計圖,2026年最新設計
閱讀次數:4825737次
100套鄉村別墅圖片大全,2026年最新設計
閱讀次數:2492203次
6款農村蓋一層平房的設計圖,10萬元就能建起來
閱讀次數:1852637次
這11個一層農村自建房別墅火爆了朋友圈!我最喜歡戶型十!你呢
閱讀次數:750268次
農村6萬元建一層小別墅圖,你敢相信嗎
閱讀次數:567686次
農村5萬塊就能自建房,6套普通房子設計圖分享,你沒看錯!
閱讀次數:419410次
8套農村漂亮三間平房圖片,非常適合在農村修建!
閱讀次數:411197次
農村自建房化糞池怎么做?附方案及施工過程
閱讀次數:391783次
農村一層三間平房設計圖,告別土氣養老房,讓人忍不住點贊
閱讀次數:350581次
新農村二層樓房圖片造價12萬,挑一套回家建房吧!
閱讀次數:349126次
