
|
本款圖紙為22萬左右農村二層別墅設計效果圖及施工圖。
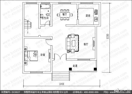
圖紙屬性 編號: DC0027 層數: 二層 結構形式: 磚混結構 主體造價: 18-22萬 開間: 11.4米 進深: 10.3米 占地面積: 105.95平方米 建筑面積: 210平方米 圖紙內容 建 筑 圖: 建筑設計說明、工程做法表、一層平面圖、二層平面圖、屋頂平面圖、正立面圖、背立面圖、左立面圖、右立面圖、1-1剖面圖、樓梯大樣圖、節點大樣圖、門窗詳圖、門窗表 結 構 圖: 結構設計總說明、基礎平面布置圖、基礎大樣圖、一層梁結構平面圖、二層梁結構平面圖、悶頂梁結構平面圖、屋頂梁結構平面圖、二層板結構平面圖、悶頂板結構平面圖、屋面板結構平面圖、樓梯大樣圖、節點大樣圖 給排水圖: 給排水設計說明、一層給排水平面圖、二層給排水平面圖、屋頂給排水平面圖、衛生間給排水詳圖、給排水系統圖 電 氣 圖: 電氣設計說明、設備材料表、一層照明平面圖、二層照明平面圖、一層插座平面圖、二層插座平面圖、一層弱電平面圖、二層弱電平面圖、配電系統圖、弱電系統圖、配電干線系統圖、屋頂防雷平面圖、接地平面圖、等電位聯結做法 設計功能 一 層: 走廊、客廳、臥室、廚房、餐廳、衛生間 二 層: 客廳(附陽臺)、臥室(附陽臺)、臥室(附書房)、臥室、衛生間 首層戶型設計圖:
施工圖紙預覽:
圖紙之家-專注農村別墅/自建房設計18年,集合國內200余位經驗豐富的設計師,被評為口碑最好的農村建筑設計公司! |

實用農村三層房屋設計圖紙,效果圖+全套施工圖
占地:113平方米
歐式四層(三層半)獨棟別墅設計圖復式,設計豪華時尚
占地:194平方米
新中式二層別墅設計圖,農村最適合建的兩層小樓,13×12米
占地:143平方米
一層帶地下室雙拼別墅設計圖,理想鄉村生活的標配
占地:416平方米
高端豪華三層別墅住宅設計方案圖,歐式外觀風格
占地:170平方米
2026年新款別墅外觀圖及全套施工圖紙,占地面積13×10米
占地:130平方米
兄弟兩戶雙拼房屋設計圖及外觀圖片,戶型合理
占地:185平方米
占地120平米清新脫俗簡單二層別墅設計方案,含效果圖
占地:119.01平方米
185平米自建三層別墅房屋施工設計圖紙及效果圖
占地:187平方米
150平二層別墅房屋設計圖,現代風格,造型精致
占地:150平方米
農村兩間三層房屋設計圖,含外觀圖片
占地:120平方米
2款現代風格農村兩層別墅設計圖,時尚漂亮
占地:多戶型可選
平頂新中式三層農村別墅設計圖,最適合鄉村自建占地150平米
占地:150.35平方米
農村自建二層半樓房效果圖,美觀大氣布局合理,很適合農村人自
占地:160.11平方米
15×12米一層農村寶藏戶型,適合養老房,看完鄰居直接要圖紙!
占地:180平方米
3款三層農村自建別墅設計圖,氣派十足,準備建房的快快查看
占地:多戶型可選
新農村三層小別墅設計圖紙,占地160平左右,好看不貴
占地:160平方米
120平米三層30萬別墅圖片大全及全套施工圖,外觀簡潔大方
占地:120平方米
徽派3層農村小別墅設計圖,廣東新農村住宅設計圖集
占地:110平方米
12x10米帶閣樓的農村一層半別墅設計圖,外觀洋氣
占地:110.54平方米
推薦:10套新農村自建房設計圖,2026年最新設計
閱讀次數:4825737次
100套鄉村別墅圖片大全,2026年最新設計
閱讀次數:2492203次
6款農村蓋一層平房的設計圖,10萬元就能建起來
閱讀次數:1852637次
這11個一層農村自建房別墅火爆了朋友圈!我最喜歡戶型十!你呢
閱讀次數:750268次
農村6萬元建一層小別墅圖,你敢相信嗎
閱讀次數:567686次
農村5萬塊就能自建房,6套普通房子設計圖分享,你沒看錯!
閱讀次數:419410次
8套農村漂亮三間平房圖片,非常適合在農村修建!
閱讀次數:411197次
農村自建房化糞池怎么做?附方案及施工過程
閱讀次數:391783次
農村一層三間平房設計圖,告別土氣養老房,讓人忍不住點贊
閱讀次數:350581次
新農村二層樓房圖片造價12萬,挑一套回家建房吧!
閱讀次數:349126次
