
|
農村自建房,單層雙層的太普通,2018年出新政策了,超過三層的自建房會被直接強拆,所以三層才是很多家庭的選擇,本期,我們推薦一款非常適合建在農村的三層小別墅,占地面積適中,采光通風俱佳,內部功能齊全,關鍵是造價低廉,各個年齡段的人都非常喜歡;
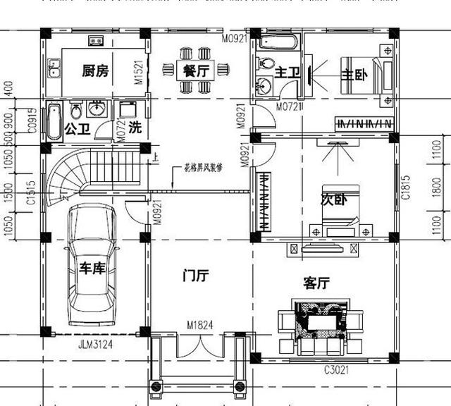
本戶型為三層帶車庫、帶露臺別墅設計方案,本方案為復式客廳挑空結構、客廳采用落地大窗,采光極好,造型精美,配色經典,外觀造型錯落有致,整棟別墅顯得美觀大氣。【本戶型帶車庫,如果不需要車庫,施工的時候和施工隊溝通下,把車庫改成小臥室和儲藏間即可,不需要再單獨修改圖紙】 占地面積:13.50m*12.60m【不算門廳】,160平方米左右;建筑層高:三層;建筑高度:12.75米(含屋頂);
設計功能: 一 層:門廳、客廳、廚房、餐廳、衛生間、主臥(帶衛生間)、次臥、車庫; 二 層:起居室、主臥(帶衛生間)、次臥x2、書房、衛生間、露臺; 三 層:大廳、主臥(帶衛生間)、次臥x2、衛生間、儲藏間、露臺;
立面圖:
![]() 圖紙之家-專注農村別墅/自建房設計18年,集合國內200余位經驗豐富的設計師,被評為口碑最好的農村建筑設計公司! |

豪華三層歐式雙拼別墅設計圖紙,雙拼歐式別墅如何設計看這款
占地:258.294平方米
歐式復式型三層別墅施工設計圖紙及效果圖大全
占地:164平方米
農村三層帶露臺、帶車庫房屋設計圖,含外觀圖片
占地:155平方米
150平米簡單大方的三層農村自建房設計圖,坡層頂,色彩鮮明,布
占地:150平方米
三層新中式別墅設計圖,面寬12米經典漂亮
占地:154.93平方米
中國最美的四合院別墅設計圖方案,復式挑空客廳戶型
占地:343.57平方米
帶車位的鄉村二層別墅建筑結構設計圖,全套施工圖140平
占地:139.85平方米
新農村住宅設計圖紙含效果圖,方方正正的別墅方案
占地:134平方米左右
兩層三間農村自建房圖,125平有7間臥室,全家人都能住得下
占地:125.34平方米
帶院子的四間二層別墅房屋設計圖,帶獨立車庫
占地:350平方米
高端大氣中式四合院二層別墅小樓設計圖,外觀古香古色
占地:213平方米
歐式新農村自建三層建筑施工設計圖紙及效果圖大全
占地:106平方米
平屋頂12米寬別墅三層設計圖,平頂照樣建的漂亮
占地:129.6平方米
戶型好的農村三層樓房設計圖,帶外觀效果圖
占地:110平方米
精致時尚一層雙拼別墅設計圖,造價實惠,起居互不打擾
占地:369.54平方米
農村18萬元二層小樓圖紙,漂亮實用的農村二層樓房設計圖
占地:140平方米
簡單實用二層雙拼樓房設計圖,造價30萬左右
占地:180平方米
簡歐風格別墅設計圖帶外觀效果圖,三層140平米戶型方案
占地:140平方米
20多萬的造價一層三合院農村自建房效果圖
占地:225.048平方米
二開間小戶型設計三層農村自建房方案,經濟型適合小宅基地建房
占地:107.02平方米
推薦:10套新農村自建房設計圖,2026年最新設計
閱讀次數:4825737次
100套鄉村別墅圖片大全,2026年最新設計
閱讀次數:2492203次
6款農村蓋一層平房的設計圖,10萬元就能建起來
閱讀次數:1852637次
這11個一層農村自建房別墅火爆了朋友圈!我最喜歡戶型十!你呢
閱讀次數:750268次
農村6萬元建一層小別墅圖,你敢相信嗎
閱讀次數:567686次
農村5萬塊就能自建房,6套普通房子設計圖分享,你沒看錯!
閱讀次數:419410次
8套農村漂亮三間平房圖片,非常適合在農村修建!
閱讀次數:411197次
農村自建房化糞池怎么做?附方案及施工過程
閱讀次數:391783次
農村一層三間平房設計圖,告別土氣養老房,讓人忍不住點贊
閱讀次數:350581次
新農村二層樓房圖片造價12萬,挑一套回家建房吧!
閱讀次數:349126次
