
|
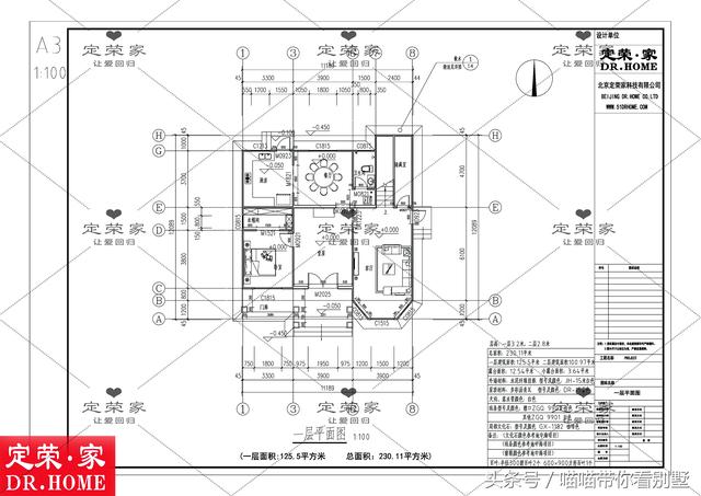
俗話說:"落葉歸根",不論我們漂到哪里,走得多遠,心中都會始終惦念著故鄉。那里是我們成長的家園,承載著數不清的回憶。 逢年過節總是想回家看看,去祖上的墳頭搭兩抷土祈求一家平安;去和鄰里聊聊天看哪家娶了新媳婦哪家添了小孫子;去給那橘子樹桃子樹施施肥再體驗一次農家樂。你 總是羨慕著老李的兒子給他建了新房,你總是聽老王說他家的庭院有多別致,其實這些你也都可以有! 來看看下面這4款2層的小別墅是不是合你口味吧 1、荷風雅苑
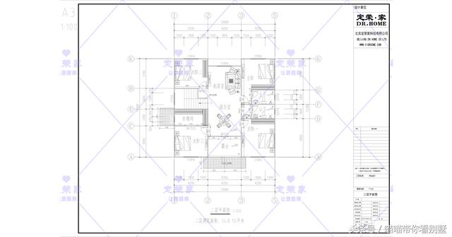
建筑面積:230.11平米 戶型:大堂屋四室三廳一廚兩衛 層高:一層高3.2米 二層2.8米 2、湖畔佳苑
建筑面積:219.8平米 戶型:五室三廳一廚兩衛 層高:一層高3.2米 二層2.8米 3、萬隆雅墅
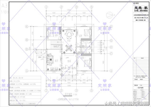
建筑面積:309.22m² 類型:二層 室內布局:七室三廳一廚四衛 外墻材料:水泥纖維掛板,文化石 屋頂材料:歐式瀝青瓦 4、
建筑面積:192.50m²類型:二層室內布局:四室三廳一廚兩衛外墻材料:水泥纖維掛板,文化石屋頂材料:歐式瀝青瓦造價大概都在40,50萬,不用羨慕別人的生活,你想要的你都可以有。 圖紙之家-專注農村別墅/自建房設計18年,集合國內200余位經驗豐富的設計師,被評為口碑最好的農村建筑設計公司! |

私家二層農村自建房設計圖及效果圖,造價20萬左右
占地:125平方米
14x11米一層平房戶型設計圖,帶前后門設計,好看不貴還實用!
占地:143.59平方米
造價15萬經濟美觀一層農村別墅設計圖,占地150平米
占地:多戶型可選
平頂新中式三層農村別墅設計圖,最適合鄉村自建占地150平米
占地:150.35平方米
美爆的三層經典復式別墅設計圖紙及效果圖,建好更漂亮
占地:130平方米左右
小戶型農村三層房屋設計圖,占地120平米,布局非常合理,外表典
占地:120平方米
農村蓋房三層自建別墅設計圖紙,11米乘12米戶型方案
占地:132.55平方米
歐式三層雙拼別墅設計圖,精致大氣布局實用,兄弟建房上上之選
占地:234平方米
200平農村二層別墅設計圖,外觀現代簡約
占地:204平方米
170平方米新農村現代樓中樓三層別墅設計施工圖紙及效果圖
占地:170平方米
帶陽光房的二層簡歐別墅圖紙,戶型經典實用
占地:147.2平方米
大面寬一層別墅設計圖紙,新中式風格兩款戶型
占地:多戶型可選
帶地下室三層新農村房屋設計圖紙,外觀效果大氣
占地:220平方米
最耐看的二層別墅設計圖,15米寬12米深,方正大氣經濟美觀!
占地:180平方米
簡約精致的二層房子設計圖,農村自建經濟實用
占地:89.76平方米
2款現代風格農村兩層別墅設計圖,時尚漂亮
占地:多戶型可選
小型四合院二層別墅設計圖方案,對稱設計,頂層大露臺
占地:114平方米
新農村中式三層四合院別墅設計戶型圖,農村自建四合院效果圖
占地:多種戶型
大氣的三層鄉村別墅設計方案圖,小面積建出豪宅感
占地:104.9平方米
120平米簡單實用型農村小別墅設計圖,二層屋頂為全露臺,小開間
占地:120平方米
推薦:10套新農村自建房設計圖,2026年最新設計
閱讀次數:4825737次
100套鄉村別墅圖片大全,2026年最新設計
閱讀次數:2492203次
6款農村蓋一層平房的設計圖,10萬元就能建起來
閱讀次數:1852637次
這11個一層農村自建房別墅火爆了朋友圈!我最喜歡戶型十!你呢
閱讀次數:750268次
農村6萬元建一層小別墅圖,你敢相信嗎
閱讀次數:567686次
農村5萬塊就能自建房,6套普通房子設計圖分享,你沒看錯!
閱讀次數:419410次
8套農村漂亮三間平房圖片,非常適合在農村修建!
閱讀次數:411197次
農村自建房化糞池怎么做?附方案及施工過程
閱讀次數:391783次
農村一層三間平房設計圖,告別土氣養老房,讓人忍不住點贊
閱讀次數:350581次
新農村二層樓房圖片造價12萬,挑一套回家建房吧!
閱讀次數:349126次
