
|
現如今,在城里買房是人人遙不可及的夢,就算付了首付,可能后期長時間都要肩負還房貸的壓力與痛苦,在這樣的前提下,如何能真正的去享受生活?人生只有一次,很多時候要及時行樂,想要壓力小一點甚至沒有壓力,小編就建議大家回鄉自建別墅,既美觀又實用,重點是又大又便宜,生活品質自然而然會逐步提升!廢話不多說,快來跟小編一起來看看下面這兩款造價不超過30萬的別墅戶型吧! 效果圖一:是一張簡歐風格三層自建別墅外觀設計效果圖,用樸素無聲的語言,詮釋低聲細語的溫柔。墻面的淺黃色外墻磚溫馨而明亮,簡約的設計風格也讓整個別墅突顯出一種大氣、優雅的感覺。
基本信息: 占地尺寸:10.5X10.7米;占地面積:107平方米;建筑面積:214.1平方米;結構類型:磚混結構;建筑層數:2層;主體造價:18萬層高:8.7米
一層平面圖: 設有:進門玄關,客廳,2臥室,廚房,餐廳,衛生間。一樓較安靜,離衛生間也很近,適合給老人居住。
二層平面圖: 設有:1客廳,3臥室,1書房,1衛生間。二樓臥室較多,除主臥、兒童房以外,還留了客房給主人用作招待,再也不怕親戚朋友來了沒地方住。 效果圖二:這是一套氣派雙層農村別墅設計效果圖,暖色系的外墻,干凈利落的材料質感,起伏跌宕的層次構造,清晰洋氣的時尚底蘊,都足以讓這棟別墅未蓋先火,成為未來蓋房的標桿形象。
基本信息: 占地尺寸:10.4×8.9米;占地面積:89.66平方米;建筑面積:174.61平方米;參考造價:15萬左右
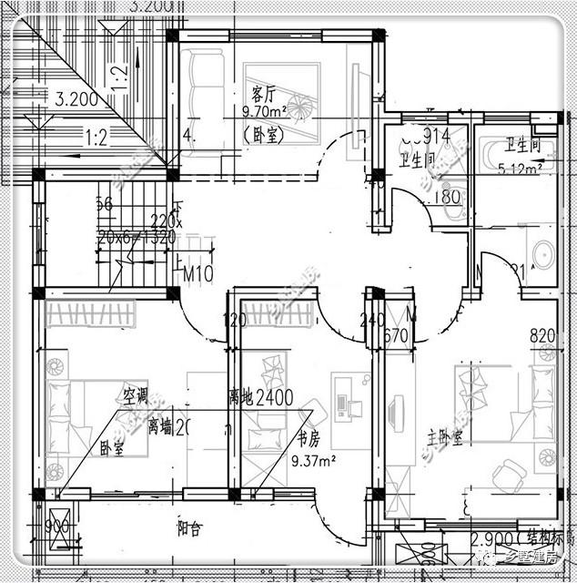
一層平面圖: 設有:1老人房,1客廳,1廚房,1餐廳,1儲藏室,1雜物間。一層設計全面,基本滿足日常需要,臥室朝南,采光充足。
二層平面圖: 設有:3臥室,1書房,1客廳,2衛生間,1陽臺。二樓設計豐富,圖紙詳細,客廳挑空,視覺上看起來更寬闊。 圖紙之家-專注農村別墅/自建房設計18年,集合國內200余位經驗豐富的設計師,被評為口碑最好的農村建筑設計公司! |

農村最漂亮二層歐式別墅設計圖,面寬16.5米(含車庫)
占地:180.366
農村10萬元一層小別墅平房設計圖大全,含效果圖
占地:120平方米
高端三層獨棟歐式別墅效果圖,帶大衛生間,CAD全套施工設計圖
占地:158平方米
新農村實用三層帶露臺房屋設計圖紙,占地110平方米
占地:109平方米
帶地下室的農村自建三層半歐式別墅設計圖,看著真豪氣!
占地:142.45平方米
帶閣樓的二層半別墅設計圖和效果圖,外飾簡單但不失奢華
占地:210平方米
古典韻味的四層房屋設計圖,占地140平米左右,這樣的外觀配上紅
占地:140平方米
2026最新款獨棟中西雙餐廳三層別墅設計圖,精巧實用好看不貴
占地:226.12平方米
農村20萬元二層小樓房設計圖,經典新農村自建房戶型
占地:120平方米
面寬17米農村實用自建房一層別墅設計圖,簡約大氣經濟時尚
占地:192.94平方米
2026帶車庫三層雙拼別墅房屋設計圖,配色淡雅低調
占地:224平方米
建房老師傅力薦!這塊二層簡歐設計圖,花錢少、顏值高,必火
占地:131.65平方米
一層農村小平房設計圖,功能齊全造價低,兩款戶型可選
占地:多戶型可選
大氣自建三層雙拼別墅戶型圖方案,完美的戶型就是它
占地:287平方米
簡歐復式四層別墅房屋設計圖,外觀圖高端、大氣
占地:143平方米
230平米歐式帶地下室三層自建別墅設計施工圖紙及效果圖
占地:230平米
帶車庫,帶露臺的三層復式樓房設計圖,新農村房屋方案推薦
占地:140平方米
三層雙拼別墅效果圖及戶型設計圖,占地150平米
占地:154.8平方米
爆款農村一層別墅圖紙設計,看過的都說漂亮實用
占地:144.91平方米
性價比超高一層農村自建別墅設計圖,戶型耐看不用爬樓
占地:158.6平方米
推薦:10套新農村自建房設計圖,2026年最新設計
閱讀次數:4825737次
100套鄉村別墅圖片大全,2026年最新設計
閱讀次數:2492203次
6款農村蓋一層平房的設計圖,10萬元就能建起來
閱讀次數:1852637次
這11個一層農村自建房別墅火爆了朋友圈!我最喜歡戶型十!你呢
閱讀次數:750268次
農村6萬元建一層小別墅圖,你敢相信嗎
閱讀次數:567686次
農村5萬塊就能自建房,6套普通房子設計圖分享,你沒看錯!
閱讀次數:419410次
8套農村漂亮三間平房圖片,非常適合在農村修建!
閱讀次數:411197次
農村自建房化糞池怎么做?附方案及施工過程
閱讀次數:391783次
農村一層三間平房設計圖,告別土氣養老房,讓人忍不住點贊
閱讀次數:350581次
新農村二層樓房圖片造價12萬,挑一套回家建房吧!
閱讀次數:349126次
