
|
現隨著建筑行業的發展,國內房價的水漲船高和農民生活水平的提高,現在鄉村越來越多的開始自建房,而且自建房建設水平越來越高,類型越來越豐富,三層、四層的樓房,在綠樹田園的叢擁下,格外美觀時尚。今天小編給大家帶來的是四層別墅效果圖,適合家里人口多,宅基地小的,宅基地小就建高些,這樣家里人口多,也能住的下,希望大家能喜歡
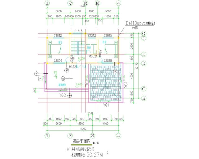
本戶型為四層農村自建房,節約了占地面積。多窗戶的設計,助于通風、光線明亮,也節省了建筑材料 建筑層數:四層; 建筑占地面積:11.2m*10.7m=130平方米; 建筑面積:361平方米 造價預算:26萬 建筑高度:14.9米(含屋頂)坡屋頂;
設計功能: 一層:過廳、餐廳、廚房、臥室、客廳、衛生間; 二層:2間臥室、客廳、衛生間; 三層:起居室、3間臥室、衛生間; 四層:2間臥室、衛生間、屋面曬臺;
立面圖:
![]() 圖紙之家-專注農村別墅/自建房設計18年,集合國內200余位經驗豐富的設計師,被評為口碑最好的農村建筑設計公司! |

農村小洋樓設計圖及效果圖,二層樓房設計圖
占地:120平方米
簡單實用的二層雙拼別墅設計圖,總占地150平米左右,雙拼房屋
占地:150平方米MB
農村兩間三層房屋設計圖,含外觀圖片
占地:120平方米
四層(三層半)豪華歐式別墅房屋設計圖,外觀高端、大氣
占地:150平方米
120平現代實用三層別墅房屋設計圖,含外觀效果圖
占地:120平方米
農村25萬元二層小樓圖,經典大氣建成20年不過時
占地:150平方米
帶雙車庫的新中式二層四合院別墅設計圖,戶型布局實用
占地:321平方米
大氣的150平方米新中式三層別墅建筑圖及效果圖
占地:150平方米左右
2026年最新三層房屋設計圖紙,12米×11米,實用接地氣
占地:130平方米
實用型二層別墅設計方案,占地120平米簡單大方最耐看
占地:120平方米
帶地下室的一層別墅設計圖,農村自建房比較合適
占地:206平方米
新中式風格農村自建房二層設計圖,15.5米乘12米
占地:186平方米
一層時尚農村自建別墅方案,低至10萬的造價,適合住家養老
占地:131.04平方米
一層帶小院自建房設計,穩重經濟,適合老人自住養老
占地:179.19平方米
13×10米現代簡約風格三層別墅圖,坡屋頂和平屋頂完美結合
占地:120平方米
豪華二層別墅設計圖紙及別墅圖片,旋轉樓梯,內設佛堂,大大落
占地:260平方米
?13.5x9米這尺寸火了!好多人家照著建這款二層別墅,簡單實用
占地:115.11平方米
2026兩層半20多萬農村自建房圖,簡歐風格,美觀大氣
占地:120平方米
農村三間二層別墅設計圖,外觀簡約左右對稱
占地:170.06平方米
面寬不到8米的農村二層半別墅建筑圖紙及效果圖
占地:96平方米左右
推薦:10套新農村自建房設計圖,2026年最新設計
閱讀次數:4825737次
100套鄉村別墅圖片大全,2026年最新設計
閱讀次數:2492203次
6款農村蓋一層平房的設計圖,10萬元就能建起來
閱讀次數:1852637次
這11個一層農村自建房別墅火爆了朋友圈!我最喜歡戶型十!你呢
閱讀次數:750268次
農村6萬元建一層小別墅圖,你敢相信嗎
閱讀次數:567686次
農村5萬塊就能自建房,6套普通房子設計圖分享,你沒看錯!
閱讀次數:419410次
8套農村漂亮三間平房圖片,非常適合在農村修建!
閱讀次數:411197次
農村自建房化糞池怎么做?附方案及施工過程
閱讀次數:391783次
農村一層三間平房設計圖,告別土氣養老房,讓人忍不住點贊
閱讀次數:350581次
新農村二層樓房圖片造價12萬,挑一套回家建房吧!
閱讀次數:349126次
