
|
今日農村建房早已不同往日,什么歐式的、美式的、田園的、現代的,在中國鄉村都已能夠看得到。今日公園就為大家分享6套適合農村的二層簡單一點的小別墅,大家都說其中第6套最受年輕人的喜愛,你覺得呢? 第一套
此戶型由兩個相對獨立建筑主體組成,傳統的中式風格紅柱灰瓦,低調而舒適,內部有3臥室、1客廳、1書房、1廚房、1餐廳、2衛生間,也足以滿足兩到三代人的居住需求。
第二套
此戶型紅瓦白墻,北歐風格最見自然真諦,簡約而不簡單,可以說永不過時,內部有3臥室、1客廳、1餐廳、1廚房、2衛生間,格局簡明,動線清晰。
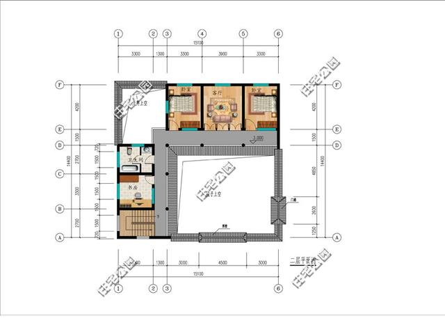
第三套
此戶型有美式風格,內部有4臥室、2客廳、1餐廳、1廚房、4衛生間,大開窗,充分運用南向采光,白天室內明亮。
第四套
此戶型方正,減少空間浪費。內部有3臥室、1客廳、1餐廳、1廚房、2衛生間,簡單的設計合理的布局自然能給居住者舒適、恬靜之感。
第五套
此戶型陽臺寬敞,晾衣方便,每日日暮時分陽臺小酌一杯,定有說不出的愜意。周末在陽臺一杯茶一本書,親近陽光,放逐思想同樣是不錯的消遣。有4臥室、1客廳、2書房、1餐廳、2廚房、3衛生間、1車庫、1儲藏室,格局設計寬敞大氣。
第六套
此戶型內部有有3臥室、2客廳、1餐廳、1廚房、2衛生間、1車庫、1儲藏室。橙色外觀時尚靚麗,兩代人居住的話,老人腿腳不好可以住在一樓,樓梯旁有側門樓梯旁有側門年輕人早出晚歸也可以減少對老人的影響。
這6套別墅怎么樣?你喜歡哪一套呢? 轉載請注明出自別墅設計網:http://m.bjcyqiyejia.com/ 千套別墅設計帶別墅圖片 |

新農村實用三層帶露臺房屋設計圖紙,占地110平方米
占地:109平方米
農村13萬元二層小樓圖,簡單易建,造價低
占地:110平方米
帶車庫二層農村豪華別墅設計圖,主體25萬左右
占地:170平方米左右
豪華二層別墅設計圖紙及別墅圖片,旋轉樓梯,內設佛堂,大大落
占地:260平方米
預算造價20萬以內的新農村三層自建房別墅房屋設計圖紙及效果圖
占地:100平方米
面寬20米大氣的農村二層別墅設計圖,戶型帶車庫和土灶房設計
占地:250.85平方米
新農村二層小別墅全套設計圖紙(含外觀效果圖)
占地:85.6平方米
110平方米新農村實用現代的二層建筑設計圖紙帶外觀圖11X10米
占地:110平方米
小戶型二層四合院別墅設計圖,含外觀效果圖,小宅基地選擇
占地:134平方米
好看又簡單二層仿古中式四合院樓房設計圖
占地:352平方米
230平米歐式帶地下室三層自建別墅設計施工圖紙及效果圖
占地:230平米
美式田園二層別墅設計方案圖,全套設計圖+效果圖
占地:235平方米
二層半新中式別墅設計圖,農村自建24萬,帶庭院規劃設計
占地:140.68平方米
兄弟三層雙拼房屋設計圖,帶效果圖,戶型好
占地:256平方米
一層5間歐式平房小洋樓建筑設計圖紙,大戶型一層別墅戶型
占地:216平方米
2021最新款50萬左右農村三層別墅設計圖,客廳中空
占地:160平方米
面寬13米二層鄉村自建別墅戶型圖,帶堂屋和露臺
占地:135.47平方米
175平大客廳三層別墅房屋設計圖,含外觀造型現代,美觀
占地:175平方米
140平方米三層半新農村房屋別墅設計圖,帶車庫
占地:140平方米
農村30萬別墅款式三層設計圖紙,帶地下儲藏室,挑空客廳
占地:110平方米
11×10造價25萬帶神位平頂三層自建房設計圖
閱讀次數:29678次
2021年最流行的10套經典農村別墅,最愛那一套?
閱讀次數:25940次
進深8.5米,開間12米,帶堂屋的樓房設計圖怎么做?
閱讀次數:23817次
18萬搞定的農村二層別墅,詳細施工過程實拍!含別墅設計圖!
閱讀次數:17744次
5款帶落地窗的農村別墅,大氣的別墅就應該是這個樣子
閱讀次數:17217次
15套2017年最新潮二層農村別墅,這樣蓋既實用又上檔次!
閱讀次數:12834次
2021農村建的最多的2款二層小別墅戶型,爆款是有理由的
閱讀次數:11876次
農村自建房這樣預埋水電管,老師傅說規范又實用
閱讀次數:11471次
9X12米二層農村別墅,不超過規定面積還能有小院
閱讀次數:10618次
農村自建房打地基的費用是多少,需要注意哪些問題?
閱讀次數:10549次
