
|
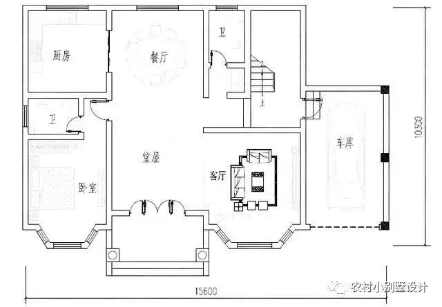
農村的條件越來越好,村村通了公路,環境衛生也越來越規范,所以越來越多在城里工作的農村人回到農村建房子。今天小編給大家推薦10套農村樓房設計圖,只有三種人才能建的。第一種,有農村戶口。第二種,在農村有宅基地,第三種,土豪,在農村買的起宅基地的。 戶型一 開間: 15.6米 進深: 10.3米 占地面積:143.38平方米 建筑面積:435.4平方米 層數: 三層 結構形式: 磚混結構 主體造價: 35-40萬
設計功能 一 層:堂屋、客廳、臥室(附衛生間)、廚房、餐廳、衛生間、車庫 二 層:起居室、臥室(附陽臺)、臥室(附衛生間)、2臥室、衛生間、陽臺 三 層:起居室、娛樂廳、臥室(附衛生間)、書房(附陽臺)、衛生間、露臺
戶型二 開間: 11.7米 進深: 12米 占地面積: 138.16平方米 建筑面積: 352.46平方米 層數: 三層 結構形式: 框架結構 主體造價: 30-35萬
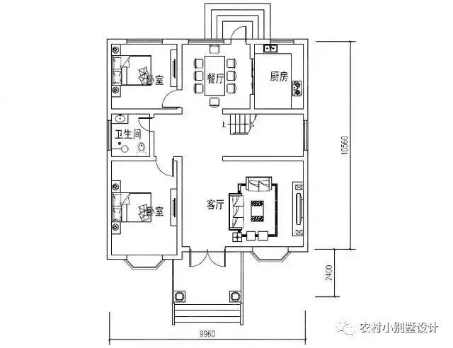
設計功能 一 層:客廳、臥室(附衛生間)、臥室、廚房、餐廳、衛生間 二 層:客廳、臥室(附衛生間)、臥室、兒童房、棋牌室、衛生間、露臺 三 層:臥室(附書房)、臥室、衛生間、露臺 戶型三 開間: 12米 進深: 11.7米 占地面積: 115.33平方米 建筑面積: 332.7平方米 層數: 二層 結構形式: 磚混結構 主體造價: 26-30萬
設計功能 一 層:門廳、客廳、臥室(附衛生間)、廚房、餐廳、衛生間 二 層:起居室、臥室(附衛生間)、臥室(附陽臺)、書房(附陽臺)、衛生間、露臺
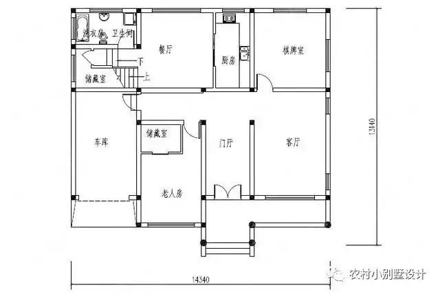
戶型四 開間: 14.34米 進深: 13.14米 占地面積: 171.68平方米 建筑面積: 330平方米 層數: 二層帶閣樓 結構形式: 磚混結構 主體造價: 24-28萬 設計功能 一 層:門廳、客廳、老人房(附儲藏室)、棋牌室、廚房、餐廳、儲藏室、衛生間、車庫 二 層:起居室、臥室(附衛生間,更衣室)、3臥室、書房、儲藏室、衛生間 閣 樓:儲藏間
戶型五 開間: 11.9米 進深: 10.3米 占地面積: 120.8平方米 建筑面積: 290.99平方米 層數: 三層 結構形式: 磚混結構 主體造價: 20-25萬 設計功能 一 層:堂屋、客廳、老人房(附衛生間)、麻將室(附雜物間)、雜物間、廚房(兼餐廳)、衛生間 二 層:小客廳、主臥(附衛生間,陽臺)、臥室(附陽臺)、臥室、衛生間 三 層:臥室(附衛生間)、臥室(附陽臺)、臥室、衛生間、露臺 戶型六 開間: 9.96米 進深: 12.96米 占地面積: 111.68平方米 建筑面積: 305.6平方米 層數: 三層 結構形式: 磚混結構 主體造價: 22-28萬 設計功能 一 層:客廳、2臥室、廚房、餐廳、衛生間 二 層:客廳、3臥室、書房、衛生間、陽臺 三 層:3臥室、書房、衛生間、露臺
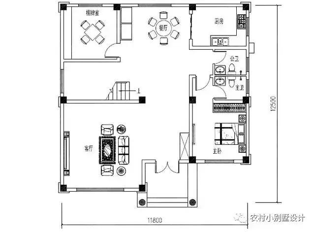
戶型七 開間: 11.8米 進深: 12.5米 占地面積: 134.94平方米 建筑面積: 360.63平方米 層數: 三層 結構形式: 框架結構 主體造價: 35-42萬 設計功能 一 層:客廳(中空)、臥室(附衛生間)、棋牌室、廚房、餐廳、衛生間 二 層:會客廳(附露臺)、多功能廳、臥室(附衛生間)、2臥室、衛生間 三 層:多功能廳、棋牌室、臥室(附衛生間)、2臥室、衛生間、露臺
戶型八 開間: 14米 進深: 8米 占地面積: 115.12平方米 建筑面積: 296.57平方米 層數: 三層 結構形式: 磚混結構 主體造價: 22-26萬
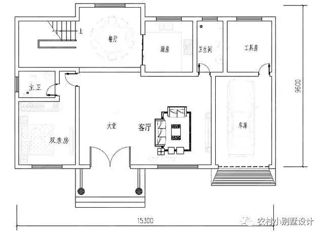
設計功能 一 層:客廳、臥室、廚房、餐廳、衛生間、車庫(兼儲藏室) 二 層:客廳、休息區、臥室(附露臺)、3臥室、衛生間 三 層:3臥室、衛生間、2露臺 戶型九 開間: 10.8米 進深: 10.7米 占地面積: 116.4平方米 建筑面積: 273.78平方米 層數: 二層 結構形式: 磚混結構 主體造價: 22-26萬 設計功能 一 層:客廳(中空)、臥室(附衛生間)、娛樂間、廚房、餐廳、衛生間 二 層:起居室(附陽臺)、臥室(附衛生間)、3臥室、衛生間 戶型十 開間: 15.3米 進深: 9.6米 占地面積: 143.79平方米 建筑面積: 417.38平方米 層數: 四層 結構形式: 磚混結構 主體造價: 32-38萬 設計功能 一 層:大堂、客廳(中空)、臥室(附衛生間)、車庫(附工具房)、廚房、餐廳、衛生間 二 層:起居室(附陽臺)、茶廳、主臥(附書房,衛生間)、2臥室、衛生間 三 層:起居室(附陽臺)、臥室(附衛生間)、2臥室、衛生間、露臺 四 層:露臺
圖紙之家-專注農村別墅/自建房設計18年,集合國內200余位經驗豐富的設計師,被評為口碑最好的農村建筑設計公司! |

80平方米二層房屋設計圖,造價10萬左右
占地:80平方米
一層農村必蓋戶型設計方案,養老自住兩相宜,經濟實惠又耐用!
占地:150.36平方米
農村新戶型房子設計圖二層,占地120平米,布局實用
占地:120.29平方米
農村二層半別墅設計圖,簡單實用,造價低
占地:140平方米
13×10米現代簡約風格三層別墅圖,坡屋頂和平屋頂完美結合
占地:120平方米
最新歐式三層別墅設計圖紙,超漂亮,預算30到40萬
占地:160平方米
占地200平米時尚現代三層農村別墅設計圖,簡簡單單百看不厭
占地:202.95平方米
高端三層豪宅別墅設計方案圖,帶地下室,過悠然愜意生活
占地:127.06平方米
一層中式四合院別墅設計方案圖,含外觀效果圖
占地:360平方米含院子
105平方米新農村三層別墅設計圖,全套CAD建筑圖+效果圖
占地:105平方米
小L型新款二層別墅設計圖,復式客廳旋轉樓梯,14米乘13米
占地:182平方米
戳中年輕人喜好!時尚三層自建房,簡約時尚設計,住著舒適自然
占地:169.76平方米
二層農村別墅新風尚,簡約實用,性價比高,美麗又實惠
占地:126平方米
新農村二層房屋設計圖紙(全套建筑施工圖紙+外觀效果圖)
占地:85平方米
最漂亮的農村二層小樓圖,平屋頂的設計對于農村來說尤為便利
占地:170平方米
農村17萬元一層自建別墅設計圖,外觀簡潔,戶型方正
占地:163平方米
高端農村三層歐式房屋設計圖紙,帶車庫,帶露臺
占地:163平方米
帶車庫新農村二層四間別墅設計效果圖帶全套建筑施工圖,217平方
占地:217.21平方米
二層小別墅外觀圖片,別墅圖紙,外觀時尚,布局簡單實用,挑空
占地:230平方米
150平農村二層復式別墅房屋設計方案圖,帶外觀效果圖片
占地:150平方米
13X10農村大面積三層復式別墅,自建房就選它了!
閱讀次數:105428次
在浙江老家建起一棟四層商住兩用房,奶奶開始當起了“包租婆”
閱讀次數:59718次
進深8.5米,開間12米,帶堂屋的樓房設計圖怎么做?
閱讀次數:38371次
2026年最流行的10套經典農村別墅,最愛那一套?
閱讀次數:35756次
11×10造價25萬帶神位平頂三層自建房設計圖
閱讀次數:35662次
5套2026年經典的二層小樓房圖,每個地方都有建的
閱讀次數:26895次
傳統堂屋加現代客廳,這才是農村別墅正確打開方式
閱讀次數:26772次
農村自建房這樣預埋水電管,老師傅說規范又實用
閱讀次數:25814次
5款帶落地窗的農村別墅,大氣的別墅就應該是這個樣子
閱讀次數:25503次
10套自建房雙拼別墅 兄弟聯排別墅全套圖紙,第八套最受歡迎!
閱讀次數:25368次
