
|
農村建樓房已經不是什么稀罕的事。幾年前物價還性對便宜,建一套300多平的房子,磚混結構毛坯房也就二三十萬,如今,物價有所增長,建造成本相對長了一些,但是比起在城里買房子,那就是小巫見大巫了。 自己建的房子寬敞舒適,戶型可以自己控制,房間大、獨立型好,住著舒服,還可以像這位網友的投稿一樣,有自家的庭院。
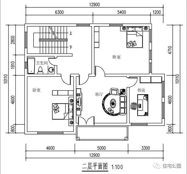
此戶型開間12.9米,進深10.11米,占地面積130.41平方米,建筑面積364.08平方米。占地適中,符合絕大多數人的宅基地。庭院院墻是鐵藝柵欄,鐵藝柵欄是建筑設計中一種很流行的裝飾藝術,等春天來臨,滿園春色就會關不住了。
平面布局圖: 客廳和餐廳相通,空間大,家里來了客人也方便招待。除了南側的主入戶門以外,東側也有一個入戶門,方便進出。
二層有兩個臥室、一個客廳和一個書房,根據自家需要,還可以將客廳改成一個套間,書房也就成了這個房間的私人書房了。
三層的兩個露臺是當今很流行的一個設計,它既能滿足坡屋頂不能晾曬的弊端,也適合現代人對戶外休閑場所的需求。
轉載請注明出自別墅設計網:http://m.bjcyqiyejia.com/ 千套別墅設計帶別墅圖片 |

新農村復試兩層半樓房設計圖,帶大露臺,簡單經濟實用大氣
占地:190平方米
自建三層小洋樓設計圖紙,含效果圖,帶車庫
占地:121平方米
農村三間兩層樓房設計圖,帶車庫,戶型簡單實用
占地:140平方米
145平方米新農村二層別墅設計效果圖及施工圖,12.6米x11.4米
占地:147平方米
帶大套間新農村二層別墅自建房設計圖紙帶效果圖
占地:185平方米
經濟實用二層樓房設計圖紙,功能布局多,12×11米
占地:130平方米
造價30多萬的三層簡歐新農村別墅設計施工圖紙及效果圖
占地:133平方米左右
氣派的歐式風格三層房子設計圖紙,外觀圖太漂亮了
占地:132平方米
漂亮時尚二層樓房設計圖紙,經濟實用,戶型通透
占地:150平方米
五間二層別墅設計圖紙,樓梯設計的無比大氣
占地:300平方米
預算30萬三層樓房設計圖含效果圖,戶型經典
占地:125平方米
開間8米的小戶型二層別墅設計圖,2開間占地不到60平
占地:56平方米左右
精致典雅的90平和100平方米二層樓房圖紙,藏不住的經典
占地:多種戶型可選
農村15萬元二層小樓設計圖,15萬農村兩層小別墅圖片
占地:120平方米
農村15萬元一層半小樓圖,最新的戶型設計
占地:150平方米
120平方房子設計圖帶效果圖,農村自建房戶型推薦
占地:120平方米
豪華三層歐式雙拼別墅設計圖紙,雙拼歐式別墅如何設計看這款
占地:258.294平方米
最漂亮的一層平房圖片及設計圖,造價18萬左右,結構簡單易于施
占地:186平方米
鄉村20萬內三層別墅房屋設計圖,面積適中、戶型經典
占地:100平方米
三間三層房子設計圖,高端三層樓房設計圖,三層兩個大露臺
占地:170平方米
11×10造價25萬帶神位平頂三層自建房設計圖
閱讀次數:29678次
2021年最流行的10套經典農村別墅,最愛那一套?
閱讀次數:25940次
進深8.5米,開間12米,帶堂屋的樓房設計圖怎么做?
閱讀次數:23817次
18萬搞定的農村二層別墅,詳細施工過程實拍!含別墅設計圖!
閱讀次數:17744次
5款帶落地窗的農村別墅,大氣的別墅就應該是這個樣子
閱讀次數:17217次
15套2017年最新潮二層農村別墅,這樣蓋既實用又上檔次!
閱讀次數:12834次
2021農村建的最多的2款二層小別墅戶型,爆款是有理由的
閱讀次數:11876次
農村自建房這樣預埋水電管,老師傅說規范又實用
閱讀次數:11471次
9X12米二層農村別墅,不超過規定面積還能有小院
閱讀次數:10618次
農村自建房打地基的費用是多少,需要注意哪些問題?
閱讀次數:10549次
