
|
在風光秀麗的農村,建一棟二層別墅,房前栽上幾株植物花卉,與摯愛的家人一同生活,和諧自然的居家生活便由此開始。心動不如行動,不妨試著將想象的藍圖具體化,一起來看下今天這款經典的房子設計圖吧。 該戶型長23.4m,寬12.5m,占地264㎡,建筑面積達401㎡,共設5室 3廳 3衛 1廚 3儲藏間 1工具間1娛樂室1庫房 1陽臺 1露臺。房子看起來非常大氣開闊,而且造型簡潔,構造緊湊,十分適合自建。
360°旋轉圖:
立面圖: 低調內斂的配色搭配,緊湊簡潔的外觀造型,拋去繁雜的色彩和裝飾,簡約而不凡。
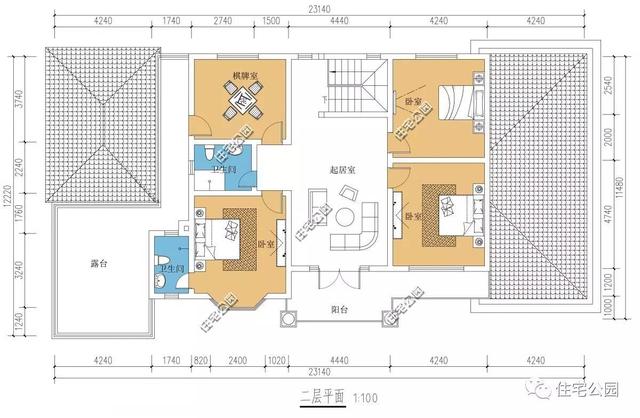
平面布局圖: 車庫的后半部分是工具間,方便存放農具,十分實用。餐廳有壁爐,冬天取暖便利。
技術指標及造價表:
說明:該預算只是主體結構毛坯造價,全國平均水平,不含運輸費用,不含庭院,不含裝修。 轉載請注明出自別墅設計網:http://m.bjcyqiyejia.com/ 千套別墅設計帶別墅圖片 |

90平方米農村二層房屋設計施工圖紙及效果圖,11x8.5米
占地:90平方米
歐式三層豪宅樓設計圖紙及外觀效果圖,占地180平左右
占地:177.82平方米
三層獨棟帶露臺房屋設計圖,含外觀圖片大全
占地:110平方米
新中式三層豪華大氣三層別墅自建房屋設計圖,帶地下室,土豪專
占地:194平方米
農村三層樓房設計圖及圖片,客廳挑空,優化室內采光
占地:140平方米
農村二層小別墅圖片,二層別墅效果圖及設計圖
占地:153平方米
130平方米歐式實用農村二層樓別墅圖紙帶外觀圖12X13米
占地:132平方米
農村小戶型三層復式樓房設計圖,100平左右
占地:100平方米
農村一層7字型平房別墅設計圖,“L”自行戶型,外觀簡約低調
占地:213.39平方米
漂亮實用三層新農村小別墅設計圖紙,占地150平米,帶露臺,從哪
占地:150平方米
歐式豪華三層別墅設計圖,占地面積170平米,高端大氣帶露臺
占地:170平方米
簡歐式三層半(4層)農村自建房別墅設計圖效果圖,帶車庫戶型
占地:127平方米
經典小戶型二層新農村房屋設計圖紙,客廳中空,造價20萬
占地:94平方米
130平氣派美觀的二層別墅房屋設計圖,含效果圖
占地:130平方米
經典三層雙拼房屋設計圖,帶效果圖,戶型好,單戶面積120
占地:240平方米
地中海風格二層別墅設計圖及效果圖,外觀有格調
占地:125平方米
新農村中式三層四合院別墅設計戶型圖,農村自建四合院效果圖
占地:多種戶型可選
100平簡單三層房屋設計圖紙,新農村自建推薦圖紙
占地:100平方米
三層農村自建房別墅設計圖紙,大廳中空,外觀高端大氣
占地:230平方米
簡單現代平屋頂兩層四間自建樓房設計圖紙施工方案,簡潔又實用
占地:192平方米
11×10造價25萬帶神位平頂三層自建房設計圖
閱讀次數:29678次
2021年最流行的10套經典農村別墅,最愛那一套?
閱讀次數:25940次
進深8.5米,開間12米,帶堂屋的樓房設計圖怎么做?
閱讀次數:23817次
18萬搞定的農村二層別墅,詳細施工過程實拍!含別墅設計圖!
閱讀次數:17744次
5款帶落地窗的農村別墅,大氣的別墅就應該是這個樣子
閱讀次數:17217次
15套2017年最新潮二層農村別墅,這樣蓋既實用又上檔次!
閱讀次數:12834次
2021農村建的最多的2款二層小別墅戶型,爆款是有理由的
閱讀次數:11876次
農村自建房這樣預埋水電管,老師傅說規范又實用
閱讀次數:11471次
9X12米二層農村別墅,不超過規定面積還能有小院
閱讀次數:10618次
農村自建房打地基的費用是多少,需要注意哪些問題?
閱讀次數:10549次
