
|
隨著城市空氣越來越差,交通越來越堵,越來越多的人選擇回家鄉建棟房留著養老。畢竟在城市這種壓力下,加之無論是呼吸的空氣,還是入口的食物沒有一個放心的,任誰也怕在城市養老會少活兩年吧。這個時候無論怎么看,將來在農村有個小院,院里種點菜享受田園生活都是養老的絕佳選擇。今天就為大家帶來了三棟田園風格的二層戶型,回家鄉建一棟絕對是以后養老的不二選擇。 戶型1:
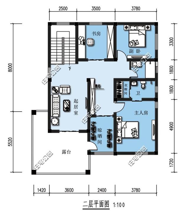
典型的田園風格,溫馨而親切,造型簡潔,構造規整,非常適合自建。貼心的車庫設計,便利出行。老人房、書房、晾曬間等功能性房間的布局,完美為業主提供舒適便捷的居家生活。
戶型2: 美式田園風格,沒有復雜的設計。紅白二色的外觀,溫馨而舒適。規則的外觀,內部更好規劃戶型不浪費空間。多功能室和辦公區的設置,讓家可以承載更多功能的同時也讓我們可以有更多的時間呆在家中。
戶型3:
這套別墅設計更加時尚一些,文化石的運用讓外觀更加靚麗。與此同時還將車位設計其中。這個戶型有三個入戶門,正中間通過一個堂屋平臺就能來到堂屋;從左側通過一個入戶平臺就能進入客廳;還有一個就是從車庫的位置進,直接來到就餐的位置。
此戶型有5個臥室,一個在一層,可做老人房,剩下的四個在二層,東南角的為主臥,有獨立的衛生間,和轉角陽臺包圍,通透性很好。
這三套都是二層戶型,建筑面積也相差不大,都在260平左右。磚混結構,簡單裝修的話,30多萬都可搞定。怎么樣?心動了就趕緊收藏起來,做好準備回家建一棟農村別墅吧! 轉載請注明出自別墅設計網:http://m.bjcyqiyejia.com/ 千套別墅設計帶別墅圖片 |

110平方米新農村二層別墅設計圖及效果圖,12.36x9.36米
占地:115平方米
新農村兩層樓房設計圖,占地110平米,戶型簡單實用
占地:110平方米
新農村三層房屋設計圖紙(含效果圖),農村小別墅圖紙推薦
占地:116.15平方米
三層新農村140平方米房屋設計圖紙,全套施工圖及效果圖
占地:140平方米
三層獨棟別墅設計圖紙帶效果圖,全套施工方案(建筑圖+結構圖
占地:144平方米
后面帶小院的農村房屋設計圖,適合鄉村自建
占地:300平方米
進深14米的二層小別墅設計圖,農村自建房好方案
占地:105平方米左右
農村一層獨棟別墅設計圖,帶閣樓,設計感十足
占地:250平方米
大戶型美觀一層平房自建房設計圖,面寬19米左右
占地:245.1平方米
歐式大氣三層小別墅設計圖紙,外觀、造型大方,色彩明快
占地:140平方米
南方新農村三層別墅設計圖紙,含效果圖,帶車庫
占地:120平方米
歐式新農村三層復式樓自建房別墅圖紙,旋轉樓梯設計
占地:128平方米
最新農村三層樓房設計圖紙,客廳中空,采用暖黃色為主色
占地:160平方米
現代三層復式小別墅設計圖及外觀圖片,25萬造價
占地:105平方米
140平方米一層歐式新農村平房設計圖,主體造價僅11萬
占地:141.218平方米
造價15萬經濟美觀一層農村別墅設計圖,占地150平米
占地:150平方米
巴洛克風格別墅設計圖紙及效果圖,農村建一棟想低調都難
占地:256平方米左右
鄉下建房一層平房設計圖紙及戶型圖,占地150平米左右
占地:150平方米
農村120方三層自建房子圖,好看又不貴的三層農村別墅
占地:120平方米
帶電梯農村建房三層小洋樓,樓中樓結構,帶露臺
占地:110平方米
11×10造價25萬帶神位平頂三層自建房設計圖
閱讀次數:29678次
2021年最流行的10套經典農村別墅,最愛那一套?
閱讀次數:25940次
進深8.5米,開間12米,帶堂屋的樓房設計圖怎么做?
閱讀次數:23817次
18萬搞定的農村二層別墅,詳細施工過程實拍!含別墅設計圖!
閱讀次數:17744次
5款帶落地窗的農村別墅,大氣的別墅就應該是這個樣子
閱讀次數:17217次
15套2017年最新潮二層農村別墅,這樣蓋既實用又上檔次!
閱讀次數:12834次
2021農村建的最多的2款二層小別墅戶型,爆款是有理由的
閱讀次數:11876次
農村自建房這樣預埋水電管,老師傅說規范又實用
閱讀次數:11471次
9X12米二層農村別墅,不超過規定面積還能有小院
閱讀次數:10618次
農村自建房打地基的費用是多少,需要注意哪些問題?
閱讀次數:10549次
