
|
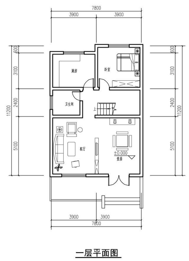
農村宅基地上自建房不是想建就能建,也不是想建多大都可以,面積和高度都要經過審批。現在宅基地,尤其是南方農村宅基地面積都不大,8米左右的面寬,12米左右的進深,占地面積100平米左右是主流。8米左右的面寬,正面最多只有兩間,這就帶來一個問題,堂屋和客廳怎么布置?年輕人習慣的大面寬客廳,還是客廳加堂屋,怎么布置好?請大家看看今天分享的兩套農村房子20萬以下圖片,都是7.8米面寬,一個是橫向大客廳,另一個是堂屋加客廳,哪種你喜歡?小編建議還是選擇客廳加堂屋的模式,畢竟農村建房子,大多數都是給家里不愿到城市生活的老人,農村要是沒堂屋,鄰居都不來串門。
戶型一:客廳加堂屋,當然也可以改堂屋加老人房,堂屋加車庫,堂屋加棋牌室,總之堂屋是要保留的。
戶型二:橫向7.8米寬的客廳,年輕人喜歡,正對樓梯可以擺餐廳。尤其農村過年過節家里人多,多擺幾桌也沒有問題。
轉載請注明出自別墅設計網:http://m.bjcyqiyejia.com/ 千套別墅設計帶別墅圖片 |

140-150平方米新農村別墅設計圖紙,帶外觀效果圖,復式戶型
占地:146平方米
三層現代別墅設計圖紙,全套私人別墅圖紙(含外觀效果圖)
占地:170.38平方米
小戶型農村三層房屋設計圖,占地120平米,布局非常合理,外表典
占地:120平方米
新農村二層住宅設計圖外觀素凈,精致,115平方米
占地:115平方米
私人別墅房屋cad施工設計圖,造型精致、美觀
占地:105平方米
網紅款兩層別墅圖紙設計圖,外觀簡單好看,后面不開窗
占地:171平方米左右
雙拼豪華高端三層別墅設計圖,外觀效果圖大氣
占地:300平方米
小戶型徽派建筑別墅設計方案大全,三層別墅設計圖推薦
占地:95平方米
農村三層樓房設計圖及圖片,客廳挑空,優化室內采光
占地:140平方米
蓋別墅圖紙新農村簡歐二層房屋設計圖,12米×12米左右
占地:128平方米左右
農村25萬別墅款式二層自建房設計圖,外觀簡約大氣
占地:多種戶型
140平方米新農村四層房屋設計圖紙,農村自建推薦
占地:140平方米
三層農村自建房別墅設計圖紙,大廳中空,外觀高端大氣
占地:230平方米
農村蓋房設計大全一層房子的設計圖紙,色調清新靚麗
占地:220平方米
新中式高端豪宅三層別墅自建房設計圖,大戶型經典
占地:270平方米左右
農村三層樓房設計圖及效果圖,復式磚混結構
占地:148平方米
簡易農村別墅房子設計圖,好看實惠,施工也簡單
占地:200平方米
二層農村自建四合院設計圖,中式外觀古樸有質感200-300平方米
占地:270平方米左右
新款農村四層復式別墅設計圖紙及效果圖,外立面清新別致
占地:207平方米
新農村兄弟合建三層雙拼房屋設計方案圖,開間18米有全套圖紙
占地:237.21平方米
11×10造價25萬帶神位平頂三層自建房設計圖
閱讀次數:29678次
2021年最流行的10套經典農村別墅,最愛那一套?
閱讀次數:25940次
進深8.5米,開間12米,帶堂屋的樓房設計圖怎么做?
閱讀次數:23817次
18萬搞定的農村二層別墅,詳細施工過程實拍!含別墅設計圖!
閱讀次數:17744次
5款帶落地窗的農村別墅,大氣的別墅就應該是這個樣子
閱讀次數:17217次
15套2017年最新潮二層農村別墅,這樣蓋既實用又上檔次!
閱讀次數:12834次
2021農村建的最多的2款二層小別墅戶型,爆款是有理由的
閱讀次數:11876次
農村自建房這樣預埋水電管,老師傅說規范又實用
閱讀次數:11471次
9X12米二層農村別墅,不超過規定面積還能有小院
閱讀次數:10618次
農村自建房打地基的費用是多少,需要注意哪些問題?
閱讀次數:10549次
