
|
10套農村自建房別墅戶型,兩層,三層都有,中式西式全含,您可以挑一套您喜歡的,作為您自建房的設計基礎。您也可以對這些戶型提出意見,大家評論最實用的一套樓房設計圖,我們會將戶型根據大家意見調整,細化,并配上3d效果圖,立面圖及平面圖,如新農村實用自建房雙拼戶型 24米X11米 戶型效果平面圖。
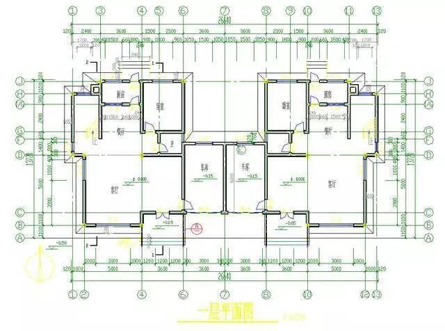
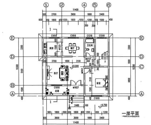
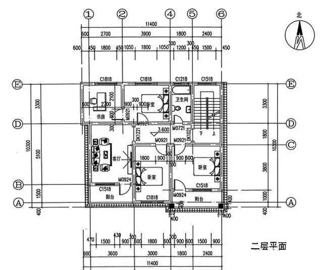
戶型一長寬:11.4×10.3米; 建筑面積:208平方米;
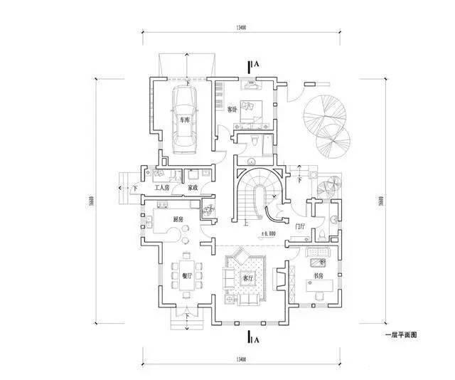
戶型二 長寬:13.32×13.72米; 建筑面積:316平方米;
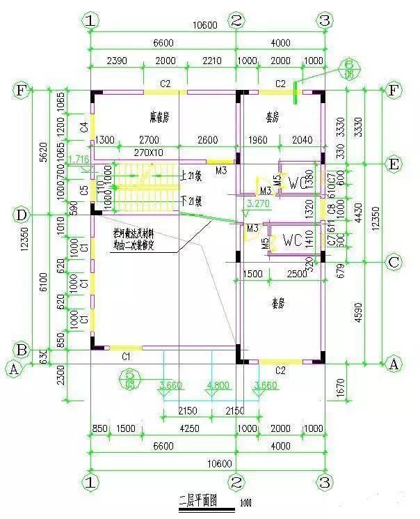
戶型三 長寬:10.66×12.35米; 建筑面積:323平方米;
戶型四 長寬:12×14.6米; 建筑面積:324平方米;
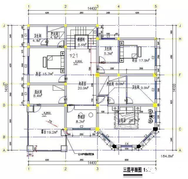
戶型五 長寬:14.4×14.1米; 建筑面積:560平方米;
戶型六 長寬:14.4×13.6米; 建筑面積:268平方米;
戶型七 長寬:13.3×14.6米; 建筑面積:366平方米;
戶型八 長寬:13.1×10.8米; 建筑面積:492平方米;
戶型九 長寬:10.5×10.2米; 建筑面積:265平方米;
戶型十 長寬:10.8×12米; 建筑面積:460平方米;
轉載請注明出自別墅設計網:http://m.bjcyqiyejia.com/ 千套別墅設計帶別墅圖片 |

新農村二層自建房設計圖帶外觀圖片,自建戶型大全
占地:160平方米
帶地下室三層新農村房屋設計圖紙,外觀效果大氣
占地:220平方米
140平二層帶閣樓別墅設計方案圖,外觀圖片色彩明快
占地:140平方米
125平兩層別墅房屋設計圖,帶普通和復式兩個戶型
占地:125平方米
鄉村最美四合院設計圖及外觀效果圖片,國人的理想住宅
占地:280.62平方米
兩層15萬農村自建房設計圖,農村蓋房設計大全圖
占地:130平方米
鄉村中式四合院二層別墅設計圖,中式韻味十足
占地:223平方米左右
三層新農村自建房屋設計圖紙,占地120平米左右
占地:120平方米
90平方米農村二層房屋設計施工圖紙及效果圖,11x8.5米
占地:90平方米
回村蓋一層養老房別墅設計圖紙,面寬16米四開間戶型圖
占地:127平方米左右
好看又簡單的二層樓房設計圖紙,戶型還實用
占地:150平方米
新農村四合院別墅圖片及戶型方案圖,全套圖紙可施工
占地:154平方米左右
造價30萬左右的三層樓房設計圖,占地120平米左右
占地:120平方米
農村二層半兄弟共建房別墅設計圖,復式戶型帶車庫,面寬24米
占地:312平方米左右
150平方米的新農村自建三層小別墅設計施工圖紙及效果圖
占地:150平方米
80平方米鄉村一層半帶閣樓自建別墅設計圖,帶車庫
占地:80平方米
115平方米農村三層別墅設計圖,預算30萬左右
占地:115平方米
帶中式小院的二層仿古別墅設計圖,小戶型自建房設計,外觀美極
占地:82.94
160平方米左右二層自建別墅設計圖,對稱設計,23萬建好!
占地:157平方米左右
160平方米二層平屋頂房屋設計圖紙及效果圖17x11米
占地:164平方米
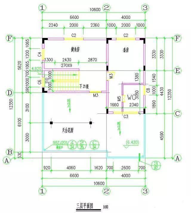
11×10造價25萬帶神位平頂三層自建房設計圖
閱讀次數:29678次
2021年最流行的10套經典農村別墅,最愛那一套?
閱讀次數:25940次
進深8.5米,開間12米,帶堂屋的樓房設計圖怎么做?
閱讀次數:23817次
18萬搞定的農村二層別墅,詳細施工過程實拍!含別墅設計圖!
閱讀次數:17744次
5款帶落地窗的農村別墅,大氣的別墅就應該是這個樣子
閱讀次數:17217次
15套2017年最新潮二層農村別墅,這樣蓋既實用又上檔次!
閱讀次數:12834次
2021農村建的最多的2款二層小別墅戶型,爆款是有理由的
閱讀次數:11876次
農村自建房這樣預埋水電管,老師傅說規范又實用
閱讀次數:11471次
9X12米二層農村別墅,不超過規定面積還能有小院
閱讀次數:10618次
農村自建房打地基的費用是多少,需要注意哪些問題?
閱讀次數:10549次
