
|
平時給大家推薦很多戶型大家反映好看是好看,但是不實用,因為分到的宅基地都是臨街的,而且兩側都是鄰居,不知道該怎么建才好看。在農村這種臨街的宅基地一般都會建成商住兩用房,畢竟門前大馬路這個硬性經濟門道要充分利用好,不建一個商住兩用房簡直就浪費了寶貴了宅地資源。如果你不喜歡做生意,一層出租出去也可以有一筆不錯的收入。 所以今天給大家帶來2套沿街商住兩用房,兩種設計肯定能滿足大多數人的需求。 戶型一:
別墅外觀為中式別墅設計。下層采用灰色文化石鋪設,上層涂刷白色真石漆,分段式的配色更加經典;木質的窗柩和陽臺圍欄凸顯中式的自然和諧,還有側面采用木質裝飾條裝飾給落白的墻面增添設計感。 戶型占地14.5X9m,建筑面積399㎡。1層為門面設計,層高比較高為4.5米,既可以出租也可以當成臨時倉庫;二三層設計為住宅用房。 聯排效果圖:
平面布局圖:
1層為門面,2層為三室兩廳一廚兩廁,足夠大部分農村家庭居住使用。3層與2層設計無異,但是若無兄弟家庭,3層可根據自家情況隨意調整。 戶型二:
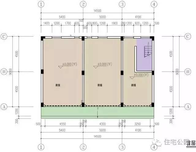
第二套別墅外觀與第一套基本無異,只是做了一些簡化。占地更小符合大部分農村宅基地實況。 戶型占地12X10m,建筑面積395.55㎡。 聯排效果圖:
平面布局圖:
同樣1層作為門面設計,面積更小所以2、3層不考慮主臥帶廁所,其余房間布置同戶型1一樣,只是房間大小面積不一致。 這2套臨街戶型你喜歡嗎? 轉載請注明出自別墅設計網:http://m.bjcyqiyejia.com/ 千套別墅設計帶別墅圖片 |

農村三層雙拼別墅設計圖,帶外觀效果圖,推薦
占地:190平方米
110平方米農村三層自建房設計圖紙帶外觀圖
占地:110平方米
農村四間三層半雙拼樓設計圖,住三帶人都沒有問題!
占地:270平方米
帶車庫簡約二層小別墅房屋設計圖紙,占地120平米,彎彎的樓梯打
占地:120平方米
兩戶190平方米新農村雙拼別墅全套設計方案及效果圖
占地:191平方米
2021年最新三層房屋設計圖紙,12米×11米,實用接地氣
占地:130平方米
歐式豪華三層別墅設計圖,占地面積170平米,高端大氣帶露臺
占地:170平方米
鄉村三層別墅設計圖紙,帶屋頂花園(含效果圖)
占地:150平方米
農村二層半別墅圖片大全,二層半別墅設計圖推薦
占地:160平方米
經典小戶型新農村房屋住宅設計圖,10萬左右
占地:80平方米
四層別墅豪宅外觀效果圖及全套施工圖,高端歐式風格
占地:176.97平方米
帶地下室獨棟三層高端別墅房圖紙設計圖,復式客廳旋轉樓梯
占地:146.145平方米
130平米徽式古典風格的三層自建房屋別墅設計圖紙,戶型合極佳,
占地:130平米
漂亮實用的新農村二層小樓圖,造價20萬左右,超大景觀露臺
占地:130平方米
農村二層四合院設計圖,秒殺各種洋別墅
占地:220平方米
農村三層蓋房設計圖大全,最新的設計,最新的戶型
占地:150平方米
鄉村二層半別墅圖紙設計,歐式風格、錯落有致,150平左右
占地:149.76
一層半小別墅設計圖帶效果圖,農村自建帶閣樓一層半方案
占地:155平方米
140平方米三層豪華新中式別墅設計圖紙帶外觀效果圖
占地:141.35平方米
二層農村雙拼別墅帶露臺設計圖,20×11.8米,單戶110平米
占地:220平方米
11×10造價25萬帶神位平頂三層自建房設計圖
閱讀次數:29678次
2021年最流行的10套經典農村別墅,最愛那一套?
閱讀次數:25940次
進深8.5米,開間12米,帶堂屋的樓房設計圖怎么做?
閱讀次數:23817次
18萬搞定的農村二層別墅,詳細施工過程實拍!含別墅設計圖!
閱讀次數:17744次
5款帶落地窗的農村別墅,大氣的別墅就應該是這個樣子
閱讀次數:17217次
15套2017年最新潮二層農村別墅,這樣蓋既實用又上檔次!
閱讀次數:12834次
2021農村建的最多的2款二層小別墅戶型,爆款是有理由的
閱讀次數:11876次
農村自建房這樣預埋水電管,老師傅說規范又實用
閱讀次數:11471次
9X12米二層農村別墅,不超過規定面積還能有小院
閱讀次數:10618次
農村自建房打地基的費用是多少,需要注意哪些問題?
閱讀次數:10549次
