圖紙介紹:一層平頂磚混別墅設計圖,施工簡單造價美麗,大部分家庭可建,別墅簡單大方。外墻由兩種材料組成。紅色墻磚與米黃色真石漆的巧妙搭配,舒適美觀。越看越有味道。沒有太多的裝飾。整個房子的輪廓用干凈的線條勾勒出來一級棒!房屋類型以實用為主,室內布局合理。平屋頂的設計絕對是該房屋最大的亮點。側梯設計方便上下屋頂。寬敞的屋頂面積還可以增加更多的實用性能。日常干燥功能也可以邀請家人和朋友在這里聚會。非常實用!
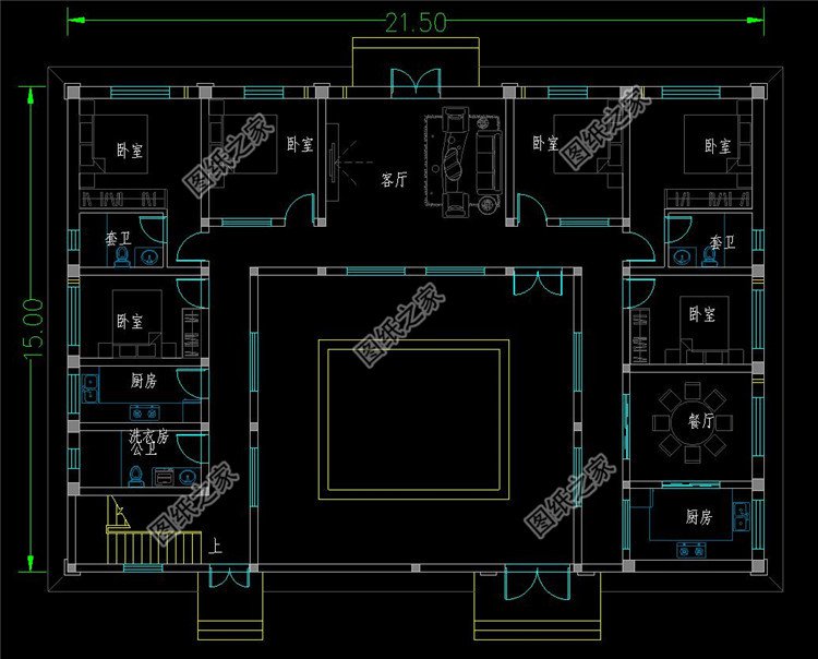
占地面積:21.5m*15m,232.9平方米;
建筑層高:一層;
建筑高度:5米(含屋頂);
設計功能:
一層戶型:客廳、廚房x2、餐廳、臥室(帶衛生間)x2、臥室x4、洗衣房、庭院;
圖紙目錄:
建 筑 圖:建筑設計說明、一層平面圖、屋頂平面圖、正立面圖、背立面圖、左立面圖、右立面圖、1-1剖面圖、樓梯大樣圖、門斗大樣圖、節點大樣圖、門窗詳圖、門窗表等;
結 構 圖:結構設計說明、基礎平面布置圖、基礎大樣圖、一層梁結構平面圖、、屋頂梁結構平面圖、一層板結構平面圖、屋面板結構平面圖、樓梯大樣圖、節點大樣圖等;
給排水圖:給排水設計說明、一層給排水平面圖、屋頂給排水平面圖、衛生間大樣圖、給排水系統圖等;
電 氣 圖:電氣設計說明、配電系統圖、弱電系統圖、配電干線系統圖、一層照明平面圖、一層插座平面圖、一層弱電平面圖、接地平面圖、屋頂防雷平面圖等;
本套方案包含全套A3設計圖+彩色效果圖。





























































































