
|
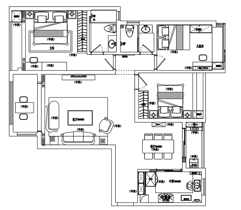
本案是一套130平三室兩廳裝修。由于客戶居住需求,設計選擇混搭風格,以美式沒主基調,局部家具帶有一點新中式的家具,以大體量家具為主,凸顯空間感。 戶型:130平三室 設計風格:美式 裝修模式:669套餐 全包造價:16萬
客廳
玄關
電視背景墻
平面布局方案
餐廳 轉載請注明出自別墅設計網:http://m.bjcyqiyejia.com/ 千套別墅設計帶別墅圖片 |
帶獨立廚房的二層自建房設計圖,大戶型方案
占地:233平方米
經典小戶型雙拼二層新農村房屋住宅設計圖,含效果圖
占地:80平方米
農村20萬左右三層住房設計圖,小宅基地首選
占地:95平方米
160平方米農村二層別墅設計效果圖帶CAD建筑圖
占地:160平方米
120平農村三層自建房屋設計圖,旋轉樓梯復式別墅戶型方案
占地:119.23平方米
歐式兩層別墅設計圖及歐式效果圖,造價25萬左右
占地:150平方米
140平三層自建房別墅設計圖,外觀圖大氣、美觀
占地:140平方米
帶電梯農村建房三層小洋樓,樓中樓結構,帶露臺
占地:110平方米
占地170平米2024新款三層別墅設計圖片及設計方案
占地:170平方米
180平方現代風三層別墅設計圖,經典大氣,百看不厭
占地:180.48平方米
3款挑空客廳的二層小樓房設計圖,款款漂亮
閱讀次數:48516次
立邦油漆哪個系列好?小編一一對比分析
閱讀次數:31501次
2024十大環保油漆,中國十大環保油漆排名榜
閱讀次數:11505次
手上的油漆怎么洗-快速洗掉油漆小竅門
閱讀次數:7981次
無味油漆到底對人有沒有害?真實曝光
閱讀次數:7922次
8款不同風格樓梯設計效果圖,我最喜歡第8款
閱讀次數:7024次
立邦油漆價格表,立邦油漆一般多少錢一桶?
閱讀次數:6809次
為大家分享一套兩層農村自建房裝修案例,15萬搞定裝修
閱讀次數:6111次
2024年紫荊花油漆價格一般是多少錢一桶?品牌怎么樣
閱讀次數:6012次
嘉寶莉油漆價格一般是多少錢一桶?
閱讀次數:5765次
