
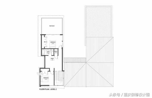
Arpdale 住宅坐落在奧斯汀的 Zilker 社區的一個突出的角落之中。受到中世紀風格的啟發,建筑師在保持周邊區域整體的尺度感與特色協調的同時,通過這個住宅來激活其所在的兩條街道的界面,提升品質。屋頂處裸露的膠合木結構從一個單一鋼柱中輻射出來,在拐角處包裹折疊,形成了一個帶有兩個醒目外立面的房屋。此外,由于二層部分隱藏在地塊的側后方,從而減小了整座建筑在拐角處的比例,為一層的折疊屋頂及其下方的庭院營造絕佳的視野效果。
廚房、客廳、餐廳等公共活動空間在位置上與庭院有著直接的關系,通過這種方式加強了建筑內外之間的聯系。房屋內由于自然光線的過濾,創造出一種通風開放的感覺,仿佛在室外一般自然。而材料由外到內的連續性以及多組滑動玻璃門的使用也有助于加強這種室內外之間的無縫體驗。
由樓梯拾級而下,俯瞰私人泳池景觀的同時,可以獲得極佳的內部庭院景觀。
盡管建筑位于一個私密性較差的角落地段,但是其U形的平面設計在很大程度上維護了業主的隱私
![]() 轉載請注明出自別墅設計網:http://m.bjcyqiyejia.com/ 千套別墅設計帶別墅圖片 |
農村18萬元二層小樓圖,占地120平面,戶型緊湊合理
占地:120平方米
后面帶小院的農村房屋設計圖,適合鄉村自建
占地:300平方米
最新三層農村別墅設計圖紙,推薦農村自建
占地:106平方米
新農村現代簡約別墅建筑設計圖紙(含外觀效果圖),28萬左右
占地:107平方米
復式別墅新農村二層房屋設計圖紙,屋頂錯落有致
占地:157平方米
140平四層復式別墅房屋設計圖,帶外觀效果圖
占地:140平方米
樓中樓客廳挑高二層別墅設計圖,復式別墅方案推薦
占地:122平方米
2024年簡單實用二層農村別墅,經典大氣真的香
占地:165.98平方米
左右對稱的歐式高端三層別墅設計圖,外觀氣派、豪華
占地:200平方米
時尚一層別墅圖,一層這樣蓋房最漂亮
占地:160平方米
3款挑空客廳的二層小樓房設計圖,款款漂亮
閱讀次數:48516次
立邦油漆哪個系列好?小編一一對比分析
閱讀次數:31501次
2024十大環保油漆,中國十大環保油漆排名榜
閱讀次數:11505次
手上的油漆怎么洗-快速洗掉油漆小竅門
閱讀次數:7981次
無味油漆到底對人有沒有害?真實曝光
閱讀次數:7922次
8款不同風格樓梯設計效果圖,我最喜歡第8款
閱讀次數:7024次
立邦油漆價格表,立邦油漆一般多少錢一桶?
閱讀次數:6809次
為大家分享一套兩層農村自建房裝修案例,15萬搞定裝修
閱讀次數:6111次
2024年紫荊花油漆價格一般是多少錢一桶?品牌怎么樣
閱讀次數:6012次
嘉寶莉油漆價格一般是多少錢一桶?
閱讀次數:5765次
