
|
小區名稱:公園道1號 建筑面積:128平 項目性質:四室兩廳 裝修風格:簡歐風格 套餐裝修:10.00萬 個性造價:0.00萬 工程造價:10.00萬(不包含家居、家電) 詳情咨詢:置頂文章朗悅公園道一號128平四室兩廳戶型裝修設計溫馨,實用,與現代家具的混搭,業主是外國語中學的老師,也是兩個孩子的媽媽,對家的定義就要實用,大方,不喜歡花哨的顏色和裝飾。歡迎賞析
鄭州公園道1號128平四室戶型簡歐風格,溫馨,實用、低調的精致————————入戶門與客餐廳布局
鄭州公園道1號128平四室戶型簡歐風格,溫馨,實用、低調的精致———————沙發背景墻,簡歐風格,顏色暖色系,溫馨實用。
鄭州公園道1號128平四室戶型簡歐風格,溫馨,實用、低調的精致———————電視背景墻
鄭州公園道1號128平四室戶型簡歐風格,溫馨,實用、低調的精致———————餐廳效果圖
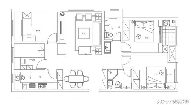
鄭州公園道1號128平四室戶型簡歐風格,溫馨,實用、低調的精致——————平面設計方案
鄭州公園道1號128平四室戶型簡歐風格,溫馨,實用、低調的精致——————客廳全景,結合現代家具配上簡歐線條元素,打造溫馨,實用的儲物空間。 轉載請注明出自別墅設計網:http://m.bjcyqiyejia.com/ 千套別墅設計帶別墅圖片 |
100平米左右簡單實用的二層樓房設計圖,施工簡單造價低
占地:95平方米
農村新戶型房子設計圖二層,占地120平米,布局實用
占地:120.29平方米
新農村二層房屋設計圖紙(全套建筑施工圖紙+外觀效果圖)
占地:85平方米
大氣農村三層歐式雙拼別墅全套施工圖紙,帶堂屋設計,外觀圖片
占地:196.056平方米
12米面寬一層農村別墅設計圖,實用又舒適
占地:110.41平方米
豪華農村帶露臺三層樓房別墅設計圖紙,占地200平方米左右
占地:200平方米
農村小型四合院設計效果圖及施工圖,傳統中式,四面建房
占地:220平方米
簡易農村別墅房子設計圖,好看實惠,施工也簡單
占地:200平方米
155平方米自建二層CAD房屋設計圖紙及效果圖,13X12米
占地:156平方米
簡單漂亮實用的三層自建房設計圖,帶露臺,占地170平方米
占地:170平方米
3款挑空客廳的二層小樓房設計圖,款款漂亮
閱讀次數:48516次
立邦油漆哪個系列好?小編一一對比分析
閱讀次數:31501次
2024十大環保油漆,中國十大環保油漆排名榜
閱讀次數:11505次
手上的油漆怎么洗-快速洗掉油漆小竅門
閱讀次數:7981次
無味油漆到底對人有沒有害?真實曝光
閱讀次數:7922次
8款不同風格樓梯設計效果圖,我最喜歡第8款
閱讀次數:7024次
立邦油漆價格表,立邦油漆一般多少錢一桶?
閱讀次數:6809次
為大家分享一套兩層農村自建房裝修案例,15萬搞定裝修
閱讀次數:6111次
2024年紫荊花油漆價格一般是多少錢一桶?品牌怎么樣
閱讀次數:6012次
嘉寶莉油漆價格一般是多少錢一桶?
閱讀次數:5765次
