圖紙介紹:本戶型為農村自建房10萬以下兩層別墅設計圖,含外觀效果圖,本方案屋頂采用英紅彩瓦,平屋頂與坡屋頂相結合,外觀造型高低錯落,別致大方,采光通風良好,色彩明快,整體平面布局緊湊、功能分區合理,房間尺度設計適宜,空間利用率高。
占地面積:10.9m*9.1m,占地面積105平方米左右;
建筑層高:二層;
建筑高度:9.5米(含屋頂);
設計功能:
一 層:客廳、餐廳、廚房、活動室、老人房、衛生間、配房(可以不建造);
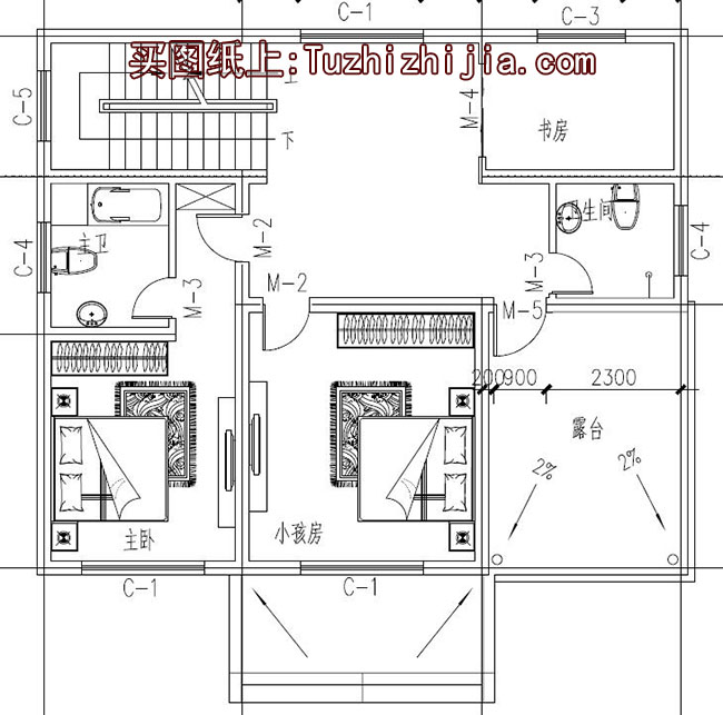
二 層:主臥(帶衛生間)、臥室、書房、衛生間、大露臺;
圖紙目錄:
建 筑 圖:建筑設計說明、一層平面圖、二層平面圖、屋頂平面圖、立面圖x4、剖面圖、樓梯詳圖、大樣圖、門窗詳圖等;
結 構 圖:結構設計說明、基礎平面圖、基礎節點圖、一層梁平面圖、二層梁平面圖、屋頂梁平面圖、一層布筋圖、二層布筋圖、屋頂布筋圖、樓梯結構詳圖、屋頂折角配筋詳圖等;
給排水圖:給排水設計說明、一層給排水平面圖、二層給排水平面圖、屋頂給排水平面圖、衛生間大樣圖、給排水系統圖等;
電 氣 圖:電氣設計說明、一層照明圖、二層照明圖、一層插座圖、二層插座圖、一層弱電圖、二層弱點圖等;
全套A3設計圖+效果圖,拿到即可施工。





























































































