圖紙介紹:新農村兩層半別墅設計方案(全套建筑設計圖紙+效果圖),這款戶型設計的比較時尚,簡約歐式風格,外墻淺黃色的真石漆突顯質感,建筑沉穩,大氣。室內空間的設計中規中矩。設有現代功能的設計,主要是考慮到新農村生活的需要。
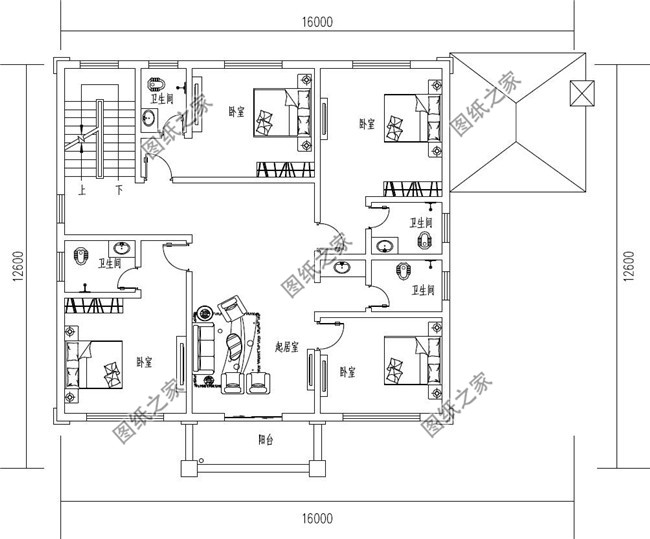
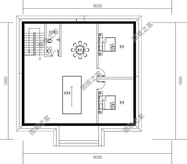
占地面積:16m*12.6m,152平方米左右;
建筑層高:二層;
建筑高度:10.54米(含屋頂);
設計功能:
一層戶型:大廳、客廳、廚房、餐廳、土灶、臥室(帶衛生間)、臥室;
二層戶型:起居室、臥室(帶衛生間)x3、臥室、衛生間、陽臺;
閣樓戶型:娛樂室、臺球室、臥室x2、衛生間;
圖紙目錄:
建 筑 圖:建筑設計說明、一層平面圖、二層平面圖、屋頂平面圖、正立面圖、背立面圖、左立面圖、右立面圖、1-1剖面圖、樓梯大樣圖、門斗大樣圖、節點大樣圖、門窗詳圖、門窗表等;
結 構 圖:結構設計說明、基礎平面布置圖、基礎大樣圖、一層梁結構平面圖、二層梁結構平面圖、、屋頂梁結構平面圖、二層板結構平面圖、屋面板結構平面圖、樓梯大樣圖、節點大樣圖等;
給排水圖:給排水設計說明、一層給排水平面圖、二層給排水平面圖、屋頂給排水平面圖、衛生間大樣圖、給排水系統圖等;
電 氣 圖:電氣設計說明、配電系統圖、弱電系統圖、配電干線系統圖、一層照明平面圖、二層照明平面圖、一層插座平面圖、二層插座平面圖、一層弱電平面圖、二層弱電平面圖、接地平面圖、屋頂防雷平面圖等;
本套方案包含全套A3設計圖+彩色效果圖。




































































































